Добавить в корзинуПозвонить
Найти в Дзене
Маньяк планирования

Дайджест новостей и фото строительства дома: версия "ремонт"

Ровно год прошёл с момента, когда мы вписались в историю с ипотекой и строительством дома! Кажется, срок достаточный и пора подвести промежуточные итоги) в этой публикации собрала основные события и результаты, добавила много-много фотографий, будем сравнивать с вами то, как планировали и то, как получилось в итоге... Так что думаю, статья получится объёмной и интересной, наливайте себе вкусный напиток, садитесь поудобнее и приятного вам прочтения!) С апреля по ноябрь 2025 года мы завершили полный цикл строительства дома: фундамент, стены, кровля, остекление, цоколь, отмостка, дренаж, фасад. Стиль нашего дома - современный минимализм. Поэтому он достаточно простой формы, с плоской кровлей. При проектировании планировки дома мы отталкивались от самых важных именно для нас аспектов: В результате, учтя пожелания каждого члена семьи, планировка нашего дома получилось такой: Вот так дом выглядел на визуализации: И вот каким получается 😍 Фасад мы отделали декоративной штукатуркой двух цвет
Оглавление

Ровно год прошёл с момента, когда мы вписались в историю с ипотекой и строительством дома! Кажется, срок достаточный и пора подвести промежуточные итоги) в этой публикации собрала основные события и результаты, добавила много-много фотографий, будем сравнивать с вами то, как планировали и то, как получилось в итоге... Так что думаю, статья получится объёмной и интересной, наливайте себе вкусный напиток, садитесь поудобнее и приятного вам прочтения!)

1. Дом полностью построен

С апреля по ноябрь 2025 года мы завершили полный цикл строительства дома: фундамент, стены, кровля, остекление, цоколь, отмостка, дренаж, фасад.

Стиль нашего дома - современный минимализм. Поэтому он достаточно простой формы, с плоской кровлей. При проектировании планировки дома мы отталкивались от самых важных именно для нас аспектов:

  • мне было принципиально важно сделать гостиную со вторым светом и красивой лестницей. Для меня это - квинтэссенция дома мечты);
  • а для мужа главным требованием было - сделать просторный и функциональный гараж-студию, который он оборудует для своего хобби (занятий детейлингом);
  • у детей основные пожелания были только иметь свои отдельные комнаты)

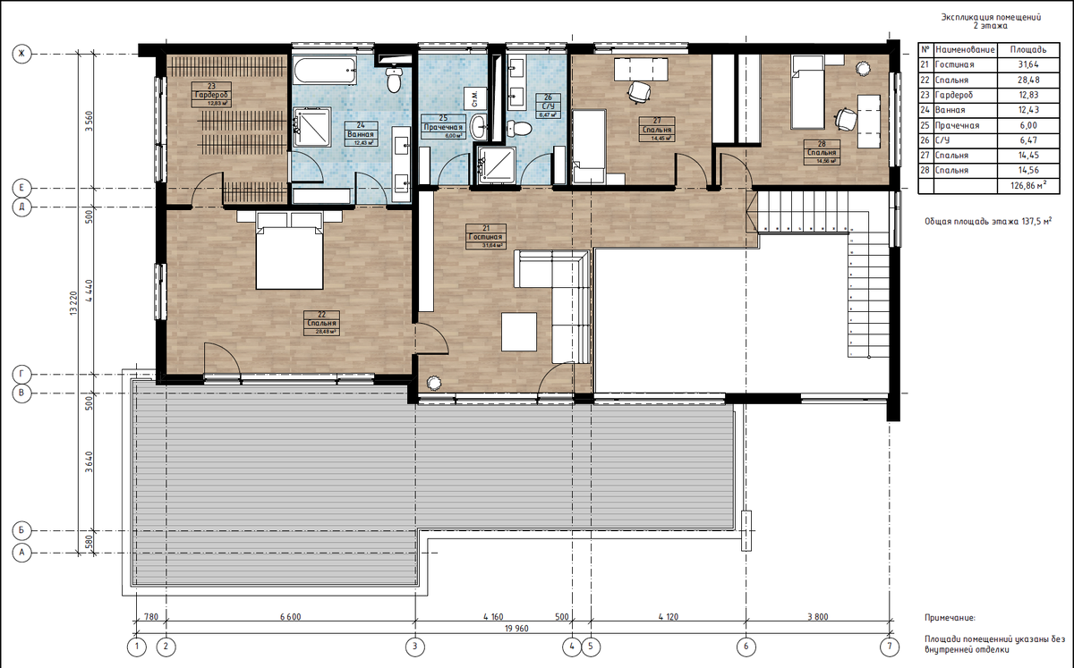
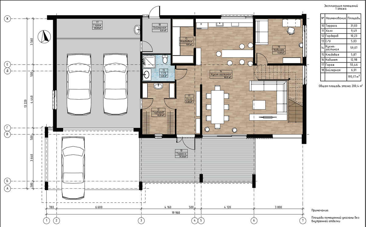
В результате, учтя пожелания каждого члена семьи, планировка нашего дома получилось такой:

  • 1 этаж - котельная, гараж, гардеробная, прихожая, гостевой санузел, большая кухня-гостиная, техническая кухня-кладовка, кабинет
  • 2 этаж - комнаты детей, санузел для мальчишек, постирочная, гостиная, мастер-блок, включающий нашу спальню, гардеробную и санузел.
-2

Вот так дом выглядел на визуализации:

-3

И вот каким получается 😍 Фасад мы отделали декоративной штукатуркой двух цветов и фасадными панелями с вертикальными рейками. Нам очень нравится, как получилось в итоге! Фасадные работы ещё не до конца завершены, предстоит ещё подшить крышу террасы, уложить терассную доску и положить плитку на отмостку. Но общий вид уже можно оценить!

-4

2. Проработан дизайн-проект

Параллельно строительству мы проработали с дизайнером дизайн-проект. Я убеждена, что такое большое и сложное пространство обязательно надо планировать со специалистом, потому что профессионал-дизайнер не просто рисует красивые картинки, а готовит огромное количество технических чертежей, замеров и т.д.

Стиль внутри, по моему мнению, должен продолжать стиль внешнего вида дома. Поэтому в дизайне интерьера мы придерживались минимализма, при этом мне очень нравится, когда есть акцентные цвета (в нашем случае, это преимущественно был зелёный цвет в разных вариациях).

Много фотографий из дизайн-проекта я опубликовала у себя в Pinterest, в том числе те варианты, от которых мы в итоге отказались, здесь публикую несколько сборных картинок:

Кстати, если кому актуален поиск дизайнера - пишите в комментариях, с огромным удовольствием поделюсь контактом нашего, мы с ней делали и ремонт в квартире, и сейчас в доме, и я просто в восторге! Просто умничка) из тех дизайнеров, которые имеют архитектурное образование и мыслят не категориями "красивых картинок", а категорией исполнения и дальнейшего использования.

3. Выполнена половина черновых работ

Все, кто когда-либо делал ремонт, знают, что самое сложное и длительное - это черновые работы) Денег и сил на этот этап уходит очень много, а результат, видимый глазу - отсутствует! И порой бывает психологически сложно смириться с тем, что время идёт, деньги утекают, а на объекте визуально ничего не меняется)

Но мы уже проходили капитальный ремонт в квартире, поэтому на этот этап настроились с безграничным терпением) И, не поверите, он даже принёс нам удовольствие!)

Из черновых работ к текущему моменту у нас выполнено: штукатурка, электрика, вентиляция, собрана котельная, проведена разводка инженерных коммуникаций, заложены инсталляции, конвекторы, уложен тёплый пол, и сейчас приступают уже к стяжке.

4. Закуплена часть чистовых материалов

Параллельно этапу черновых работ мы уже закупили отделочные материалы. Некоторые купили даже сильно заранее, ещё до нового года 2026. Сделали это целенаправленно, так как понимали, что грядёт сильнейшее повышение цен (из-за повышения налогов), и хотели успеть купить многое ещё до скачка цен.

Из забавного у нас уже даже куплены ванные)) Из того, что у нас уже куплено: керамогранит на первый этаж, включая санузел, инженерная доска на 2 этаж, вся сантехника (кроме унитазов).

Вместо заключения

Вот таким активным и, я считаю, результативным у нас выдался прошедший год стройки! Это был ооооочень непростой год, который мы буквально провели "на хлебе и воде", вкладывая почти все доходы в ремонт. Цены сейчас на работы и материалы просто безумные( всё дорожает на глазах, поэтому многие решения мы буквально на ходу оптимизируем, продали квартиру, в которой жили, и сейчас временно переехали в съёмную, много сил и энергии тратим на работу и подработки, чтобы увеличить доходы, и если честно, даётся всё это с гигантским трудом и пробуксовкой( год проехался по нам прям катком стресса на фоне финансов... но, пожалуй, это тема для целой отдельной статьи) Планируем всё же не сбавлять темп и завершить ремонтные работы до конца года. Глобальная цель - встречать новый 2027 год уже переехав в свой дом мечты 😍

Мои дополнительные площадки для общения:

💌 телеграм-канал Маньяк планирования

💌 моя страница в Pinterest