Найти в Дзене
INMYROOM

Как в двушке 55 м² создали стильный небанальный интерьер: 7 классных идей

Решения, которые легко повторить в интерьере вашей квартиры Арендное жилье — зачастую синоним безликости, временности и «дизайна на три года». Но что, если подойти к вопросу иначе? Этот проект на 55 кв. м — наглядный пример того, как квартира для сдачи в аренду обладает характером, индивидуальностью и продумана до мелочей. Заказчица с самого начала дала четкий бриф: никакой универсальной скуки. Результат — живое, эмоциональное пространство, которое сразу находит отклик. Дизайнер Екатерина Загородняя поделилась ключевыми решениями, которые легли в основу проекта. Планировка застройщика была сохранена, что позволило оптимизировать бюджет без ущерба для восприятия пространства. Комментарий дизайнера: «Кухня, аккуратно встроенная в готовую нишу, не перегружает общую зону. Такой подход сохранил ощущение простора и воздушности, что особенно ценно в метраже до 60 кв. м». Стены, потолки, двери — все выдержано в единой светлой гамме. Такой фон не просто зрительно расширяет пространство, но и ст
Оглавление

Решения, которые легко повторить в интерьере вашей квартиры

Арендное жилье — зачастую синоним безликости, временности и «дизайна на три года». Но что, если подойти к вопросу иначе? Этот проект на 55 кв. м — наглядный пример того, как квартира для сдачи в аренду обладает характером, индивидуальностью и продумана до мелочей. Заказчица с самого начала дала четкий бриф: никакой универсальной скуки. Результат — живое, эмоциональное пространство, которое сразу находит отклик.

Дизайнер Екатерина Загородняя поделилась ключевыми решениями, которые легли в основу проекта.

 📷
📷

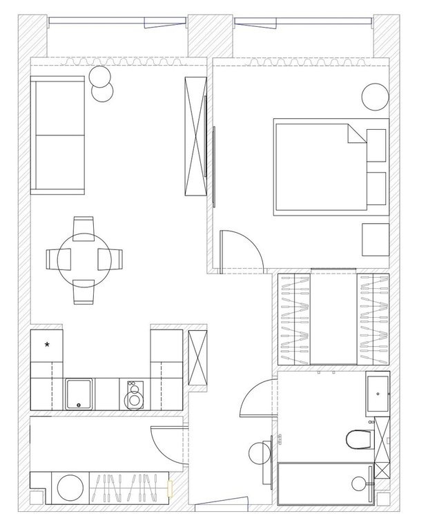
1. Сохранили исходную планировку

Планировка застройщика была сохранена, что позволило оптимизировать бюджет без ущерба для восприятия пространства.

Комментарий дизайнера: «Кухня, аккуратно встроенная в готовую нишу, не перегружает общую зону. Такой подход сохранил ощущение простора и воздушности, что особенно ценно в метраже до 60 кв. м».

 📷
📷

2. Белый — не как отсутствие цвета, а как холст

Стены, потолки, двери — все выдержано в единой светлой гамме. Такой фон не просто зрительно расширяет пространство, но и становится идеальной основой для игры текстур. На белом особенно выразительно смотрятся шпон, стекло, фактурный текстиль и металл — каждый материал получает свой «голос».

 📷
📷

3. Цвет как эмоциональный маркер

Исключением стала зона прихожей: входная дверь и акцентная стена окрашены в глубокий зеленый оттенок.

Комментарий дизайнера: «Этот акцент задает настроение с первых секунд, создавая эффект театрального занавеса, за которым разворачивается основное действие. Цвет здесь работает не как украшение, а как полноценный эмоциональный сигнал».

 📷
📷

4. Глубина через тактильность

Интерьер избегает плоской декоративности благодаря многослойности материалов. Шпон дуба контрастирует с глянцем стеклянных фасадов, плотный лён мягко рассеивает свет, окрашенные стены создают плавные переходы. Пространство интересно не только глазу, но и на ощупь.

 📷
📷

5. Свет, который живет вместе с пространством

Освещение здесь многослойное и сценарное. Встроенная подсветка мебели, акцентные бра, подвесы в ключевых зонах — свет расставлен так, чтобы подчеркивать архитектуру, создавать настроение и работать на функциональность.

 📷
📷

Комментарий дизайнера: «Особенно эффектно это решение смотрится в прихожей: крупное зеркало, стеклянная консоль и подвесной светильник образуют динамичную композицию, визуально углубляя узкое пространство».

 📷
📷

6. Хранение как система, а не послесловие

Вместо того чтобы добавлять шкафы по остаточному принципу, системы хранения были спроектированы на старте. Каждой вещи нашлось свое логичное место: от верхней одежды в прихожей до кухонной утвари. Это не просто удобство для будущих жильцов, это основа организованного быта и чистых линий интерьера.

 📷
📷

7. Бюджет там, где его не видно

Финансы были распределены осмысленно: экономия — на скрытых работах и базовых решениях, вложения — в детали, формирующие впечатление.

Комментарий дизайнера: «Мебель в натуральном шпоне, качественная сантехника, пошитый на заказ текстиль — эти элементы создают ощущение статуса и повышают ценность объекта в глазах потенциальных арендаторов».

 📷
📷

В итоге получился интерьер, который выходит за рамки стандартной арендной квартиры, — продуманный, яркий и при этом удобный для жизни.

Сейчас читают:

Спасибо, что читаете нас! ❤️

Если материал был полезен — поставьте лайк и отправьте другу.

А ещё больше интерьерных идей, советы экспертов и классные румтуры в нашем Telegram-канале. Подписывайтесь, вам точно понравится!