Найти в Дзене
Владислас

Статусная пятикомнатная квартира на Тверской в Москве с окнами на Тверскую площадь

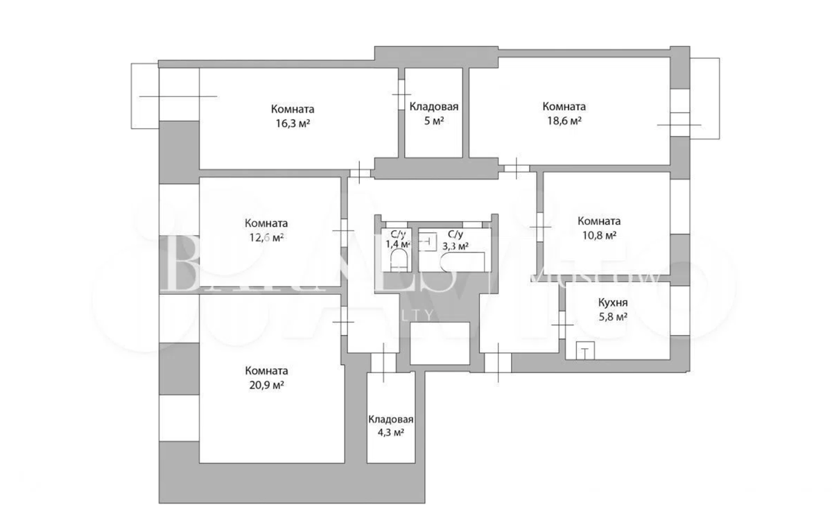
Сегодня у нас не совсем обычная статья. Мы редко выходим за пределы Санкт-Петербурга, но на этот раз маршрут неожиданно привёл нас в Москву. Каким-то почти мистическим образом эта квартира попала ко мне в подборку исторических домов, и я понял — пройти мимо невозможно. Иногда такие находки действительно похожи на судьбу. Речь пойдёт о доме по адресу Тверская улица, 8к1. Здание было построено в 1941 году в стиле сталинского ампира — монументального, уверенного, рассчитанного на эффект и масштаб. Уже по одному этому факту было ясно: объект будет особенным. Дом производит сильное впечатление ещё с улицы. Сталинский ампир здесь читается безошибочно: мощные пропорции, строгая симметрия, ощущение устойчивости и статуса. Это архитектура, которая не заигрывает с прохожим — она просто заявляет о себе. Квартира, о которой сегодня идёт речь, расположена на четвёртом этаже. Её площадь — 125 м², планировка включает пять комнат, а окна выходят сразу на две стороны дома. Уже на пороге возникает редко
Оглавление

Сегодня у нас не совсем обычная статья. Мы редко выходим за пределы Санкт-Петербурга, но на этот раз маршрут неожиданно привёл нас в Москву. Каким-то почти мистическим образом эта квартира попала ко мне в подборку исторических домов, и я понял — пройти мимо невозможно. Иногда такие находки действительно похожи на судьбу.

Речь пойдёт о доме по адресу Тверская улица, 8к1. Здание было построено в 1941 году в стиле сталинского ампира — монументального, уверенного, рассчитанного на эффект и масштаб. Уже по одному этому факту было ясно: объект будет особенным.

Дом и первое впечатление

Дом производит сильное впечатление ещё с улицы. Сталинский ампир здесь читается безошибочно: мощные пропорции, строгая симметрия, ощущение устойчивости и статуса. Это архитектура, которая не заигрывает с прохожим — она просто заявляет о себе.

-2

Квартира, о которой сегодня идёт речь, расположена на четвёртом этаже. Её площадь — 125 м², планировка включает пять комнат, а окна выходят сразу на две стороны дома. Уже на пороге возникает редкое ощущение: здесь одновременно чувствуется и достаток, и домашний уют. Такое сочетание встречается нечасто — обычно одно вытесняет другое.

-3
-4

Кухня и столовая как центр жизни

От входа мы попадаем в прихожую, а затем — в кухонную зону. Здесь реализовано очень элегантное решение: кухня площадью чуть менее 6 м² объединена с комнатой 10 м², образуя полноценную столовую. Это пространство не сдавливает, не заставляет выбирать между удобством и функциональностью.

-5

Интерьер наполнен деталями: старинные подсвечники, статуэтки, посуда, мебель с характером. На первый взгляд может показаться, что предметов слишком много, но удивительным образом всё это складывается в гармоничную картину. Здесь нет хаоса — только ощущение обжитости и времени.

-6

Частная зона и слабое место квартиры

Одну из комнат площадью 18 м² мы сознательно пропустим и перейдём во вторую часть квартиры. Небольшой коридор ведёт нас к раздельному санузлу. И здесь, как это часто бывает, обнаруживается самое уязвимое место интерьера.

-7

Санузлы выглядят аккуратно и вполне достойно, оформлены в классическом стиле, но именно здесь особенно заметно, как время работает против пространства.

-8

Если классическая мебель и лепнина могут стареть благородно, то сантехника и дизайнерские решения в ванных комнатах почти неизбежно устаревают. Это проблема не конкретной квартиры — это общая закономерность.

-9

Комнаты и настроение дома

Следующая комната — 16 м². Здесь обустроена спальня: большой книжный шкаф, пианино, шахматный стол удивительной красоты. На потолке — тонкая контурная лепнина, роскошная люстра и выход на балкон, к видам из которого мы ещё вернёмся.

-10
-11

Самая маленькая комната в квартире — 12 м². Она квадратной формы, с окном, смещённым относительно центра. Это не минус, а скорее возможность, и пространство используется как рабочий кабинет. Сдержанные серые стены, немного декора, раритетная мебель и, конечно, ковёр на полу — источник уюта, который невозможно заменить ничем другим.

-12

Главная комната и вид из окна

Последнее помещение — самое большое: 20 м² и два окна, благодаря которым комната буквально залита светом. Здесь чувствуется тяжёлый люкс, массивная мебель, но — и это удивительно — пространство всё равно остаётся уютным. Я не могу сказать, что это мой стиль, но в данном случае невозможно не признать: интерьер получился по-настоящему живым и тёплым.

-13
-14

И, наконец, вид из окна. Он здесь действительно впечатляющий: Тверская улица, Тверская площадь, а также вид на православный приход храма святых бессребренников Космы и Дамиана в Шубине. Город раскрывается сразу во всей своей многослойности — исторической, архитектурной, человеческой.

-15

Эта квартира — редкий пример того, как масштаб, статус и уют могут сосуществовать в одном пространстве. Сейчас объект оценивается в 105 000 000 рублей, и, как ни странно, в этом случае цена кажется логичной.

-16

Иногда квартиры — это не просто метры и стены. Иногда это история, характер и настроение. И именно такой объект сегодня оказался перед нами. А теперь, когда мы подошли к концу статьи, напомню: уже 6 лет я работаю юристом по недвижимости в Санкт-Петербурге и сейчас принимаю заказы на юридическую проверку недвижимости и сопровождение сделок по всей России.

-17

Я знаю, что меня читают далеко за пределами Санкт-Петербурга, и я искренне хочу быть полезен каждому, кто ко мне обращается. Ознакомиться с моей профессиональной деятельностью вы можете в моем телеграм канале, в котором я также выкладываю обзоры различных квартир (в поиске: Алексейчук Владислас, qr-код ниже):

-18

Прямо сейчас там вы найдете обзор на двухкомнатную квартиру в доходном доме К. М. и К. К. Неллисов 1863 года постройки. Если вам интересна тема недвижимости, архитектуры и реальных историй о квартирах — подписывайтесь и наслаждайтесь: