Найти в Дзене
Эстетика Эпох

Грандиозные ошибки великих архитекторов XX и ХХI века

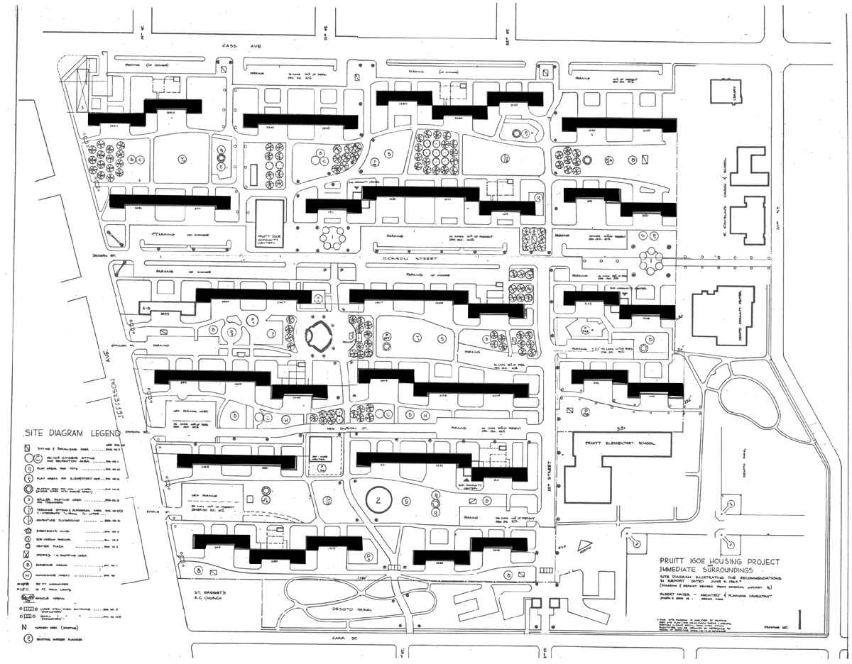
Архитектор: Минору Ямасаки (позже автор башен-близнецов ВТЦ). Ошибка: Социальная инженерия и утопический модернизм, полностью игнорирующий человеческий фактор. Комплекс из 33 идентичных 11-этажных зданий, получивший архитектурные награды, должен был стать «городом в городе» для бедных. Ошибки были системными:
Чтобы снизить стоимость, отказались от кондиционеров, лифты останавливались только на каждом третьем этаже, а материалы были дешёвыми и недолговечными. Проект предусматривал «теорию пустоты» — открытые галереи на каждом этаже для общения. На практике они стали неподконтрольными никому зонами для преступности. Первые жильцы (рабочие семьи) быстро съехали, концентрация бедности и маргинализации стала критической. Комплекс «Пруитт-Игоу» считается одной из провальных попыток реализации градостроительных принципов Ле Корбюзье. В итоге, комплекс, рассчитанный на 12 000 человек, пришёл в упадок уже к концу 1960-х и был печально взорван в 1972 году. Это стал символом краха уто
Оглавление

Панельный жилой комплекс «Пруитт-Игоу», Сент-Луис, США (1954)

Панельный жилой комплекс «Пруитт-Игоу», Сент-Луис, США (1954)
Панельный жилой комплекс «Пруитт-Игоу», Сент-Луис, США (1954)

Архитектор: Минору Ямасаки (позже автор башен-близнецов ВТЦ).

Ошибка: Социальная инженерия и утопический модернизм, полностью игнорирующий человеческий фактор.

Панельный жилой комплекс «Пруитт-Игоу», Сент-Луис, США (1954)
Панельный жилой комплекс «Пруитт-Игоу», Сент-Луис, США (1954)

Комплекс из 33 идентичных 11-этажных зданий, получивший архитектурные награды, должен был стать «городом в городе» для бедных. Ошибки были системными:
Чтобы снизить стоимость, отказались от кондиционеров, лифты останавливались только на каждом третьем этаже, а материалы были дешёвыми и недолговечными.

Панельный жилой комплекс «Пруитт-Игоу», Сент-Луис, США (1954)
Панельный жилой комплекс «Пруитт-Игоу», Сент-Луис, США (1954)

Проект предусматривал «теорию пустоты» — открытые галереи на каждом этаже для общения. На практике они стали неподконтрольными никому зонами для преступности. Первые жильцы (рабочие семьи) быстро съехали, концентрация бедности и маргинализации стала критической.

Панельный жилой комплекс «Пруитт-Игоу», Сент-Луис, США (1954)
Панельный жилой комплекс «Пруитт-Игоу», Сент-Луис, США (1954)

Комплекс «Пруитт-Игоу» считается одной из провальных попыток реализации градостроительных принципов Ле Корбюзье.

Снос
Снос

В итоге, комплекс, рассчитанный на 12 000 человек, пришёл в упадок уже к концу 1960-х и был печально взорван в 1972 году. Это стал символом краха утопических идей модернизма в массовом жилье.

Актуальная иконическая архитектура 21 века
Эстетика Эпох28 ноября 2024

Башня Джона Хэнкока, Бостон, США (1976)

Сегодня Башня Джона Хэнкока в Бостоне — это признанный шедевр архитектуры со множеством наград. Но во время строительства и в первые годы после пришлось столкнуться со множеством проблем и сложностей.

Башня Джона Хэнкока, Бостон, США (1976)
Башня Джона Хэнкока, Бостон, США (1976)

Архитекторы: I.M. Pei & Partners

Ошибка: Инженерно-конструкторский просчёт, ставший нарицательным.

Выпавшие окна, заложенные фанерой. Башня Джона Хэнкока, Бостон, США (1976)
Выпавшие окна, заложенные фанерой. Башня Джона Хэнкока, Бостон, США (1976)

60-этажный небоскрёб с уникальной формой и сплошным остеклением стал знаменит ещё до завершения. Вскоре после установки оконные панели начали выпадать на улицу. Причиной оказался не дефект стекла, а комплексная ошибка:
Слишком гибкая конструкция башни (для экономии стали) сильно раскачивалась на ветру.

Выпавшие окна. Башня Джона Хэнкока, Бостон, США (1976)
Выпавшие окна. Башня Джона Хэнкока, Бостон, США (1976)

Амплитуда колебаний вызывала деформацию оконных рам.
Стеклопакеты были не только внешними, но и частью системы стабилизации давления в здании.
В итоге, под нагрузкой, стекла просто «выдавливало» наружу.

Башня Джона Хэнкока, Бостон, США (1976)
Башня Джона Хэнкока, Бостон, США (1976)

Итог: Пришлось заменить все 10 344 оконных панели на более толстые, временно обшить первый этаж фанерой. Стоимость устранения ошибки выросла с $7 млн до $150+ млн, почти сравнявшись с ценой постройки. Башню прозвали «Говорящим Джоном» из-за комментариев, появлявшихся на досках у строительных лесов.

Оперативный центр банка HSBC, Лондон, Великобритания (1990-е)

Архитектор: Норман Фостер

Оперативный центр банка HSBC, Лондон, Великобритания (1990-е)
Оперативный центр банка HSBC, Лондон, Великобритания (1990-е)

Ошибка: Технологическая инновация, ставшая финансовой ямой.

Оперативный центр банка HSBC, Лондон, Великобритания (1990-е)
Оперативный центр банка HSBC, Лондон, Великобритания (1990-е)

Здание было шедевром экологического подхода: естественная вентиляция, открывающиеся окна, минимум кондиционирования. Однако оно оказалось технологически устаревшим ещё до завершения. Банк HSBC, для которого оно строилось, пережил бум IT-технологий, и к моменту сдачи в 1997 году здание уже не отвечало требованиям к серверным и кабельным системам.

Оперативный центр банка HSBC, Лондон, Великобритания (1990-е)
Оперативный центр банка HSBC, Лондон, Великобритания (1990-е)

Итог: К 2000-м годам банк начал искать новое здание. Огромные инвестиции в «умный» и экологичный дизайн оказались напрасными. Здание было продано с огромным дисконтом и перепрофилировано. Это яркий пример, когда архитектор проектирует для сегодняшних, а не завтрашних технологий.

Здание Ратуши (City Hall), Лондон, Великобритания (2002)

Архитектор: Норман Фостер.

Здание Ратуши (City Hall), Лондон, Великобритания (2002)
Здание Ратуши (City Hall), Лондон, Великобритания (2002)

Ошибка: Неуправляемая энергоэффективность и непрактичность формы.

Футуристическое здание в виде деформированного стеклянного шара должно было стать символом прозрачности демократии и энергоэффективности. На деле:
«Парниковый эффект»: Сложная геометрия и остекление привели к перегреву летом и большим теплопотерям зимой. Расходы на кондиционирование и отопление оказались гигантскими.

Здание Ратуши (City Hall), Лондон, Великобритания (2002)
Здание Ратуши (City Hall), Лондон, Великобритания (2002)

Непрактичность: Огромные затраты на чистку 3000+ уникальных стеклянных панелей (требуется специальный робот) и отмывание граффити.

Здание Ратуши (City Hall), Лондон, Великобритания (2002)
Здание Ратуши (City Hall), Лондон, Великобритания (2002)

Планировка: Кривые стены внутри сделали расстановку мебели кошмаром.

Здание Ратуши (City Hall), Лондон, Великобритания (2002)
Здание Ратуши (City Hall), Лондон, Великобритания (2002)

Итог: Содержание здания стало непосильной ношей для бюджета. В 2021 году было принято решение оставить здание и перевести функции мэрии в более практичные помещения. Это памятник тому, как форма победила функцию и экономику.

Жилой комплекс «Отражения» (Reflections), Сингапур (2011)

Архитектор: Дэниел Либескинд.

Жилой комплекс «Отражения» (Reflections), Сингапур (2011)
Жилой комплекс «Отражения» (Reflections), Сингапур (2011)

Ошибка: Экстремальный деконструктивизм в неподходящих условиях.

Комплекс из 11 башен причудливой угловатой формы, ломающих все представления о параллельности и перпендикулярности.
Сотни квартир страдали от протечек воды в тропическом климате Сингапура из-за сложнейших и ненадёжных стыков между наклонными поверхностями.

Жилой комплекс «Отражения» (Reflections), Сингапур (2011)
Жилой комплекс «Отражения» (Reflections), Сингапур (2011)

Психологический дискомфорт: Многие жильцы жаловались на головокружение и потерю ориентации из-за наклонных стен, окон и кривых коридоров.
Непрактичность: Расставить стандартную мебель в помещениях с острыми углами оказалось почти невозможно.

Жилой комплекс «Отражения» (Reflections), Сингапур (2011)
Жилой комплекс «Отражения» (Reflections), Сингапур (2011)

Итог: Дорогой и статусный проект превратился в головную боль для жильцов и управляющей компании. Яркий пример, когда архитекторская «иконичность» принесла в жертву базовый комфорт.

Музей искусств Милуоки, США (2001)

Архитектор: Сантьяго Калатрава.

Ошибка: Приоритет скульптурности над функцией и бюджетом.

Калатрава — гений кинетических форм. Но его проекты печально известны:
«Крылья-бризолет» в Милуоки — сложнейший механизм, который часто ломался, а его обслуживание стоило целое состояние

Музей искусств Милуоки, США (2001), Сантьяго Калатрава
Музей искусств Милуоки, США (2001), Сантьяго Калатрава

«Белый слон»: Во многих его проектах (Вайсман — яркий пример) белоснежные фасады из стали или плитки оказались непрактичными в местном климате: панели отваливались, поверхности быстро пачкались, а ремонт уникальных элементов был невероятно дорого

Музей искусств Милуоки, США (2001)
Музей искусств Милуоки, США (2001)

Бюджет: Проекты Калатравы почти всегда выходили далеко за рамки сметы, а эксплуатационные расходы оказывались неподъёмными для заказчиков (часто государственных)

Итог: Здание — это шедевры на фотографиях и финансовый кошмар для тех, кто им владеет. Урок о том, что архитектура не заканчивается в день сдачи объекта.

Художественный музей Фредерика Р. Вейсмана, Миннеаполис, США (1993)

Архитектор: Фрэнк Гери.

Ошибка: Скульптурный экстремизм в неподходящем климате и конфликт с функцией.

Музей Вейсмана, построенный на территории Университета Миннесоты, считается одним из первых воплощений знаменитого стиля Фрэнка Гери — взрыва деконструктивистских форм, облицованных сверкающим металлом. Здание, напоминающее абстрактную скульптуру из нержавеющей стали и кирпича, мгновенно стало местной достопримечательностью. Однако за фотогеничным фасадом скрывался ряд фундаментальных проблем.

Художественный музей Фредерика Р. Вейсмана, Миннеаполис (1993). Фрэнк Гери
Художественный музей Фредерика Р. Вейсмана, Миннеаполис (1993). Фрэнк Гери

«Слепые» окна и непрактичные материалы: Стремясь к чистой скульптурной форме, Гери разместил многие окна не для того, чтобы освещать галереи, а как чисто композиционные элементы. В результате некоторые выставочные залы страдали от недостатка естественного света, критически важного для музеев. Фасад из нержавеющей стали, который должен был сверкать, в суровом миннесотском климате с его перепадами температур, снегом и реагентами быстро терял вид, требовал частой и дорогой чистки, а его сложные изогнутые панели были кошмаром для ремонта и обслуживания.

Конфликт формы и содержания: Внутренние пространства, подчинённые внешней геометрии, оказались сложными для размещения классического музейного оборудования. Наклонные стены и неправильные углы создавали проблемы для кураторов при развеске произведений искусства, которые часто требуют нейтрального, «белого куба».

Итог: Музей Вейсмана стал прототипом для более поздних (и более продуманных) работ Гери, вроде музея Гуггенхайма в Бильбао. Он служит наглядным уроком: когда архитектор в погоне за скульптурным жестом приносит в жертву функциональность, климатическую адаптацию и удобство эксплуатации, здание рискует остаться красивой, но проблемной иконой, чья стоимость содержания несоразмерна её публичному образу.

Музей Гуггенхайма в Бильбао (1997). Фрэнк Гери
Музей Гуггенхайма в Бильбао (1997). Фрэнк Гери

Эти ошибки объединяет одно — разрыв между идеей и реальностью. Будь то социальная (Пруитт-Игоу), инженерная (Хэнкок), технологическая (HSBC), экономическая (Лондонская ратуша), практическая (Reflections) или финансовая (Калатрава) ошибка — все они стали частью эволюции архитектурной мысли. Они заставили профессию думать не только о форме и эстетике, но и об устойчивости, жизненном цикле здания, психологии жителей и, в конечном итоге, об ответственности перед обществом, которое будет десятилетиями жить с последствиями этих смелых, но не всегда продуманных решений.

Екатерина Серёжина

Подпишитесь на наш Telegram-канал!