Найти в Дзене
Все о стройке

Где находится самый узкий отель в мире и зачем он нужен

Редакция Всеостройке.рф выяснила, что находится этот отель в Индонезии и ширина здания составляет всего 2,8 метра. Название постройки: PituRooms.
Авторы проекта: Sahabat Selojene.
Год завершения: 2023.
Локация: Салатига, Центральная Ява, Индонезия. В современном мире отельный бизнес чаще ассоциируется с роскошью, масштабом и стремлением к избыточности. Гостиницы соревнуются в числе звёзд, площади номеров и обилии дополнительных услуг. Но архитекторы из индонезийской студии Sahabat Selojene решили пойти против этого потока и доказать: функциональная архитектура может быть не только экономичной, но и поэтичной. Для своего эксперимента они выбрали участок, который многие девелоперы даже не рассматривали бы как пригодный под застройку: узкий прямоугольный клин в центре старого города Салатига. Ширина участка составляла меньше трёх метров. Казалось, что построить на нём полноценное здание невозможно. Но именно в этом ограничении архитекторы увидели потенциал. Основной замысел проекта — иссл
Оглавление

Редакция Всеостройке.рф выяснила, что находится этот отель в Индонезии и ширина здания составляет всего 2,8 метра.

Название постройки: PituRooms.
Авторы проекта:
Sahabat Selojene.
Год завершения:
2023.
Локация:
Салатига, Центральная Ява, Индонезия.

Архитектура вопреки ограничениям

В современном мире отельный бизнес чаще ассоциируется с роскошью, масштабом и стремлением к избыточности. Гостиницы соревнуются в числе звёзд, площади номеров и обилии дополнительных услуг. Но архитекторы из индонезийской студии Sahabat Selojene решили пойти против этого потока и доказать: функциональная архитектура может быть не только экономичной, но и поэтичной.

Для своего эксперимента они выбрали участок, который многие девелоперы даже не рассматривали бы как пригодный под застройку: узкий прямоугольный клин в центре старого города Салатига. Ширина участка составляла меньше трёх метров. Казалось, что построить на нём полноценное здание невозможно. Но именно в этом ограничении архитекторы увидели потенциал.

Философия минимализма и идеи достаточного пространства

Основной замысел проекта — исследование того, сколько пространства действительно нужно человеку для комфорта. В условиях, когда города Азии сталкиваются с нехваткой земли и перенаселением, архитекторы хотели создать пример «умного уплотнения» — здания, где каждый сантиметр продуман и функционален.

«Мы хотели показать, что минимализм не означает лишение, — рассказывают авторы проекта. — Это способ думать об архитектуре как о балансе между необходимым и лишним».

Самый узкий отель в Юго-Восточной Азии

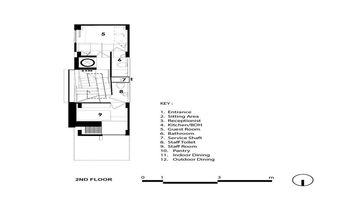
Так появился PituRooms — отель шириной всего 2,8 метра и высотой 17 метров, который стал не просто зданием, а своеобразным архитектурным манифестом. Название происходит от малайского слова «pitu», означающего «семь». Это число выбрано не случайно: внутри действительно находится семь гостиничных номеров, каждый из которых уникален по цвету, планировке и восприятию пространства.

Отель сразу же получил статус самой узкой гостиницы в Индонезии и одной из самых узких в мире, соперничая по параметрам с токийскими микрогостиницами и знаменитым Skinny House в Лондоне.

Инженерный вызов

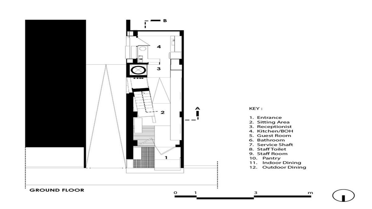
Главной технической проблемой стало устройство фундамента. Из-за сложной геологии участка (мягких и неоднородных слоёв грунта) использование стандартных свай было невозможно. Здание требовало стабильного основания, способного выдержать вертикальную нагрузку при большой высоте и минимальной ширине.

Архитекторы нашли решение в использовании глубоких колодезных фундаментов — редкой для отельной архитектуры технологии. Каждый такой колодец работает как амортизатор, уменьшая крутящие силы и предотвращая деформацию конструкции.

Кроме того, была применена система монолитного армированного бетона, соединяющего все этажи в единый пространственный каркас. Благодаря этому PituRooms воспринимает нагрузки как гибкая, но цельная вертикальная структура — почти как ствол дерева.

Вертикальная логика пространства

При столь скромных габаритах архитекторы вынуждены были переосмыслить понятие планировки. В центре здания разместилась стальная лестница, которая стала не просто элементом перемещения, но и основой композиции.

Лестница визуально делит пространство на две узкие зоны: по одну сторону расположены гостевые номера, по другую — служебные помещения и коммуникации. Вместо массивных перил использована ажурная металлическая сетка, сквозь которую проникают свет и воздух, визуально расширяя пространство.

Рядом со ступенями находится цилиндрический лифт диаметром всего 75 сантиметров — компактное инженерное чудо, рассчитанное на одного пассажира. Лифт стал символом рациональности проекта: он занимает минимальное место, но полностью обеспечивает функциональность здания.

Как рождается уют на двух с половиной метрах

Главный вопрос, который задают посетители: как можно сделать комфортным отель такой узости? Ответ — в мастерстве эргономики и продуманности каждой детали.

Каждый номер площадью около 10 квадратных метров имеет индивидуальную планировку. Встроенная мебель выполняет несколько функций: кровать объединяет спальное место и систему хранения, стеновые панели скрывают коммуникации, а откидные столики заменяют рабочие зоны.

Дизайн выполнен в духе «спокойного минимализма»: дерево тиковых пород, нейтральные ткани, мягкий рассеянный свет. Благодаря этому крошечные комнаты не воспринимаются тесными.

Фасад как дыхание здания

Экстерьер PituRooms стал отдельным произведением архитектуры. Фасад облицован натуральным красным песчаником, добытым в окрестностях города. Его пористая структура не только красива, но и естественно регулирует микроклимат, поглощая влагу и отдавая её при сухом воздухе.

Боковые стены украшены узкими продольными прорезями, напоминающими жабры рыбы. Эти «жабры» — не декоративный элемент, а часть естественной вентиляционной системы, обеспечивающей постоянное движение воздуха. Здание буквально «дышит», что особенно важно для влажного климата Центральной Явы.

Внутренний свет и игра перспектив

Чтобы компенсировать отсутствие боковых окон, архитекторы спроектировали систему вертикальных световых колодцев. Через них солнечный свет мягко проникает на все этажи, создавая ощущение открытости.

Ночью здание превращается в световой маяк: сквозь прорези фасада пробивается тёплый свет, и PituRooms выглядит как гигантский фонарь среди плотной городской застройки.

Городской контекст: Салатига как место эксперимента

Выбор локации был неслучаен. Салатига — один из старейших городов Центральной Явы, где историческая архитектура соседствует с современными постройками. Узкие улицы, плотная застройка и холмистый рельеф создают идеальные условия для эксперимента с «вертикальной плотностью».

Для местных жителей появление отеля стало настоящим событием. PituRooms быстро превратился в новую городскую достопримечательность и площадку для фотосессий. Туристы приезжают сюда не только переночевать, но и просто увидеть, как можно «втиснуть» полноценный отель в пространство шириной с автобус.

Экономика мини-формата

Создатели проекта с самого начала задумывали его как устойчивую бизнес-модель. Минимальный объём здания позволил значительно сократить расходы на строительство и эксплуатацию: меньше площадь — меньше энергии на кондиционирование и освещение.

На верхнем уровне расположился ресторан с террасой. Днём он работает только для гостей отеля, а вечером открыт для всех желающих. Отсюда открывается панорама Салатиги и горы Мербабу — живописного вулкана, видимого из любой точки города. Благодаря ресторану отель стал местом притяжения не только туристов, но и местных жителей.

Культурный код числа «семь»

Название PituRooms — не просто указание на количество номеров. В яванской культуре число семь символизирует совершенство и духовное равновесие. Архитекторы интерпретировали этот символ как стремление к гармонии между пространством и человеком.

Каждый номер имеет свой цвет — от небесно-голубого до глубокого терракотового — и олицетворяет определённое настроение. Таким образом, путешественник, останавливаясь в разных комнатах, переживает семь различных состояний — от покоя до вдохновения.

Функциональность как философия будущего

PituRooms стал своего рода манифестом новой архитектуры. В мире, где мегаполисы растут, а стоимость земли стремительно увеличивается, архитекторы всё чаще вынуждены искать решения для сверхкомпактных пространств.

Sahabat Selojene доказали, что комфорт и эстетика не зависят от метража. Важно, как организовано пространство, как оно дышит, как взаимодействует со светом и человеком.

Этот проект стал напоминанием, что архитектура XXI века — это не только небоскрёбы, но и умение красиво жить на двух с половиной метрах ширины.

Отзывы посетителей на платформах вроде Booking и TripAdvisor отмечают необычное ощущение пространства: «Когда заходишь, ожидаешь клаустрофобии, а ощущаешь покой и уют». Многие гости подчёркивают тишину, мягкое освещение.

Для путешественников, уставших от безликих сетевых гостиниц, PituRooms стал откровением — местом с характером, где чувствуешь не ограничение, а сосредоточенность.

После открытия в 2023 году проект получил широкое освещение в международных архитектурных журналах и азиатских медиа. PituRooms уже рассматривают как образцовый кейс микрогостиницы, объединяющий эстетику, инженерную изобретательность и экономическую рациональность.

История PituRooms учит простому, но важному принципу: архитектура начинается не с метража, а с идеи. Даже узкий участок может стать основой для вдохновляющего пространства, если за проектом стоит мысль, энергия и вера в то, что ограничения — это приглашение к творчеству.

PituRooms как метафора современного города

В каком-то смысле этот отель — метафора урбанистического будущего. Города становятся всё плотнее, жизнь ускоряется, ресурсы сокращаются. Архитектура вынуждена искать новые формы существования — компактные, адаптивные, многофункциональные.

PituRooms показывает, что сокращение не обязательно ведёт к потере. Иногда именно в узости рождается глубина: архитектура становится честной, сконцентрированной, почти интимной.

PituRooms — это не просто гостиница, а исследование возможностей человеческого жилья в условиях ограничений. Он стал доказательством того, что архитектура может быть умной, устойчивой, поэтичной и доступной одновременно.

Проект архитекторов Sahabat Selojene из Салатиги — это не экзотический курьёз, а пророческий пример того, как города будущего могут расти не вширь, а в глубь смысла.

Ранее мы также писали про «Метрополь Парасоль» — самую большую деревянную конструкцию в мире.