Найти в Дзене
INMYROOM

7 вдохновляющих идей, которые мы подсмотрели в трешке 101 м²

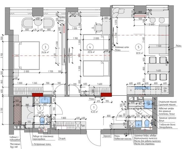
Показываем классные решения, которые стоит взять на заметку! Проект этой трехкомнатной квартиры, расположенной в жилом комплексе «Chicago» в Новосибирске, был создан дизайнером Еленой Вальман с учетом потребностей семьи из четырех человек. Квартира для них стала местом отдыха. Концепция проекта — объединение четырех стихий: земли, огня, воздуха и воды. Показываем ключевые идеи из этого уникального интерьера. Гостиная разделена на функциональные зоны: кухонную, ТВ и лаунж-зону. Каждая из них подчеркнута различными цветовыми решениями и отделками, что позволяет максимально эффективно использовать пространство, сохраняя при этом ощущение свободы. Стихия земли проявляется в интерьере через использование текстурных материалов: шероховатой штукатурки, каменного шпона и керамогранита. Авторское панно «Скала» в спальне добавляет индивидуальности и природной красоты, погружая жильцов в атмосферу расслабления. Высокие потолки и панорамные окна способствуют ощущению простора и легкости, позволяя
Оглавление

Показываем классные решения, которые стоит взять на заметку!

Фото: Наталья Бочкова
Фото: Наталья Бочкова

Проект этой трехкомнатной квартиры, расположенной в жилом комплексе «Chicago» в Новосибирске, был создан дизайнером Еленой Вальман с учетом потребностей семьи из четырех человек. Квартира для них стала местом отдыха. Концепция проекта — объединение четырех стихий: земли, огня, воздуха и воды. Показываем ключевые идеи из этого уникального интерьера.

 📷
📷

1. Умное зонирование

Гостиная разделена на функциональные зоны: кухонную, ТВ и лаунж-зону. Каждая из них подчеркнута различными цветовыми решениями и отделками, что позволяет максимально эффективно использовать пространство, сохраняя при этом ощущение свободы.

 📷
📷

2. Микс природных фактур

Стихия земли проявляется в интерьере через использование текстурных материалов: шероховатой штукатурки, каменного шпона и керамогранита. Авторское панно «Скала» в спальне добавляет индивидуальности и природной красоты, погружая жильцов в атмосферу расслабления.

 📷
📷

3. Панорамные окна

Высокие потолки и панорамные окна способствуют ощущению простора и легкости, позволяя наслаждаться видом на город с высоты. Это решение не только визуально расширяет пространство, но и создает гармоничное взаимодействие между внутренним и внешним мирами.

 📷
📷

4. Камины для комфортного отдыха

Камины в спальне и лаунж-зоне гостиной создают приглушенную атмосферу уюта и приятного расслабления. Они не только служат источником тепла, но и задают тон всем остальным элементам интерьера.

 📷
📷

5. Акценты в прихожей

Прихожая оформлена с акцентом на красную стену и зеркало с подсветкой, что создает потрясающий эффект и визуально объединяет пространства. Скрытые двери делают интерьер более минималистичным, визуально увеличивая высоту потолков.

 📷
📷

6. Спа-зона

В квартире предусмотрена СПА-зона с массажным душем, обеспечивающим максимальное расслабление. Сложные сценарии освещения с возможностью использования красной подсветки создают интимную атмосферу, идеально подходящую для полного релакса.

 📷
📷

7. Функциональный хозблок

Хозяйственная комната спроектирована с учетом функциональности: стиральная и сушильная машины скрыты в шкафу, а столешница над ними предоставляет удобное место для глажки. Это обеспечивает эстетику и организованность пространства.

 📷
📷

Проект этой трехкомнатной квартиры представляет собой идеальный пример того, как можно гармонично объединить стиль, функциональность и атмосферу отдыха. Каждая идея, реализованная в интерьере, помогает создать уникальное жилое пространство, где каждый может насладиться временем, проведенным с семьей и близкими.

Сейчас читают:

Спасибо, что читаете нас! ❤️

Если материал был полезен — поставьте лайк и отправьте другу.

А ещё больше интерьерных идей, советы экспертов и классные румтуры в нашем Telegram-канале. Подписывайтесь, вам точно понравится!