Найти в Дзене
INMYROOM

«Уголок Европы»: как оформили стильную кухню в московской двушке

Белые фасады, стеклянные витрины и встроенная техника помогли сделать пространство удобным и легким

Кухня — сердце любого дома, и даже в небольшой квартире она играет ключевую роль. Здесь важно совместить эстетику и функциональность, чтобы пространство оставалось комфортным и не перегруженным.

Дизайнер Лина Князева из Knyazeva Design Studio в своем проекте опиралась на неоклассические европейские референсы и стремилась создать интерьер, где каждая деталь будет работать на общую идею «уголка Европы». Кухня здесь получилась современной и продуманной до мелочей.

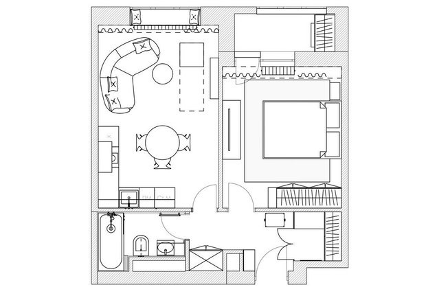
 📷Планировка квартиры
📷Планировка квартиры

Для кухни сделали гарнитур на заказ: нижние фасады выполнены в белых и серых оттенках, подчеркивающих спокойный характер интерьера. Верхние шкафы дополнили стеклянными фасадами — прием позволяет мебели не перегружать пространство. За прозрачными дверцами можно хранить красивую посуду или аксессуары, превращая их в часть декора.

 📷Дизайн: Лина Князева
📷Дизайн: Лина Князева

Несмотря на небольшую площадь кухни, здесь удалось разместить все необходимое. Посудомоечная машина, хоть и компактная, обеспечивает комфорт в быту.

Отдельного внимания заслуживает духовка с функцией СВЧ — удачное решение для небольших кухонь, когда нужно сэкономить место, не жертвуя функциональностью.

 📷
📷

Дизайнеру удалось встроить технику и системы хранения так, чтобы кухня осталась просторной и удобной. Вытяжка с угольным фильтром аккуратно скрыта за панелями в цвет стен, благодаря чему сохраняется целостность образа. Каждый сантиметр продуман так, чтобы хранение не съедало помещение.

 📷
📷

Стены оформлены лаконично, чтобы не отвлекать внимание от ключевых деталей. Бело-серая гамма создает ощущение спокойствия и гармонии, а за счет правильной организации света помещение кажется больше. Даже с учетом ограниченной площади удалось создать полноценное место для приготовления пищи и приема еды.

 📷Дизайн: Лина Князева
📷Дизайн: Лина Князева

Эта кухня — пример, как можно объединить эстетику и удобство на небольшом пространстве, а каждый элемент здесь работает на концепцию «европейского уголка» в московской квартире.

Сейчас читают:

Спасибо, что читаете нас! ❤️

Если материал был полезен — поставьте лайк и отправьте другу.

А ещё больше интерьерных идей, советы экспертов и классные румтуры в нашем Telegram-канале. Подписывайтесь, вам точно понравится!