Добавить в корзинуПозвонить
Найти в Дзене

Импортозамещение: студенты создают отечественные форсунки для охлаждения нефтегазового оборудования

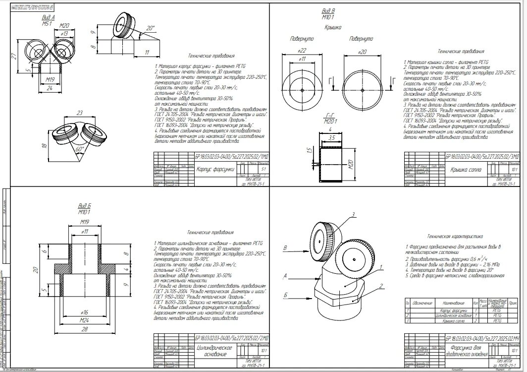
Студенты Тюменского индустриального университета Данил Пуртов и Сергей Тигеев разрабатывают форсунки для адиабатического охлаждения – усовершенствованный отечественный аналог иностранного оборудования. В процессе работы инженерное оборудование нагревается, во избежание перегрева его необходимо постоянно охлаждать, особенно охлаждение требуется для нефтехимического оборудования и аппаратов нефтегазопереработки – ректификационных колонн, где происходит разделение жидких смесей. В процессе работы колонны происходит тепло- и массообмен между потоками пара и жидкости – пар поднимается вверх, а жидкость уходит вниз, при контакте они насыщаются летучими компонентами с разными температурами кипения. В результате теплообмена между жидкостью и паром, с верха ректификационной колонны выделяется дистиллят – паровой поток, который необходимо охлаждать, что происходит с помощью потока воздуха и адиабатического охлаждения – мелкодисперсного распыления воды при помощи форсунок различных конструкций, в

Студенты Тюменского индустриального университета Данил Пуртов и Сергей Тигеев разрабатывают форсунки для адиабатического охлаждения – усовершенствованный отечественный аналог иностранного оборудования.

В процессе работы инженерное оборудование нагревается, во избежание перегрева его необходимо постоянно охлаждать, особенно охлаждение требуется для нефтехимического оборудования и аппаратов нефтегазопереработки – ректификационных колонн, где происходит разделение жидких смесей.

В процессе работы колонны происходит тепло- и массообмен между потоками пара и жидкости – пар поднимается вверх, а жидкость уходит вниз, при контакте они насыщаются летучими компонентами с разными температурами кипения. В результате теплообмена между жидкостью и паром, с верха ректификационной колонны выделяется дистиллят – паровой поток, который необходимо охлаждать, что происходит с помощью потока воздуха и адиабатического охлаждения – мелкодисперсного распыления воды при помощи форсунок различных конструкций, выполненных из сплавов цветных металлов. Форсунки дают мелкую каплю, которая испаряясь, охлаждает воздух.

«В течение последних лет технологические установки нефтегазопереработки и нефтехимии оснащались иностранным оборудованием, отдельные элементы которого, в результате физического и морального износа требуют полноценной замены. Производство таких элементов – дорогостоящее, расход распылителей в процессе эксплуатации – значительный. Мы разработали свой продукт  форсунку для адиабатического охлаждения в аппаратах воздушного охлаждения, как аналог иностранному оборудованию», – рассказывает Данил Пуртов.

Модель распыливающего элемента, разработанная студентами ТИУ, выполнена с применением аддитивных технологий – печать из полимерных материалов, отвечающих условиям и требованиям производственных процессов. Форсунки отличаются универсальностью, высокой производительностью, высокими физическими и химическими свойствами, с низким трением и высокой ударопрочностью.

-2

В отличие от аналогов, представленных зарубежными и отечественными производителями, конструкция выполнена не из металла, при необходимости ее можно усовершенствовать. В будущем авторы планируют изменить геометрию распыления для повышения коэффициента теплообмена и добиться снижения стоимости элемента-форсунки.

По прогнозам разработчиков, оборудование будет пользоваться большим спросом на предприятиях нефтегазового сектора, производствах переработки углеводородного сырья, организациях здравоохранения и других.

«В отрасли реализуются производственные (технологические) процессы газофракционирования, переработки нефти и газа, включающие в своих технологических схемах десятки и сотни аппаратов воздушного охлаждения. Каждый аппарат оснащен узлом увлажнения, в составе которой от 15 до 20 (и более) распылителей (форсунок) воды. Поэтому наш проект окупаем в будущем и незаменим в условиях санкций», – считают молодые разработчики ТИУ.

Проект разработан по заказу компании Сибур, выполняется под руководством заведующего кафедрой переработки нефти и газа, кандидата технических наук Андрея Геннадьевича Мозырева в рамках программы сопровождения и защиты выпускных квалификационных работ «Стартап как диплом».

Центр по внешним коммуникациям ТИУ