Найти в Дзене
INMYROOM

Смелые и нестандартные решения в яркой трешке 80 м²

Шторы вместо фасадов, ванна в спальне у окна, фартук из алюкобонда Дизайнер и архитектор Сабина Неровня создала яркий и комфортный интерьер для молодой семьи с ребенком. Она использовала яркие цвета и нестандартные решения в отделке, превратив обычную новостройку в смелый арт-объект. Трехкомнатная квартира находится в московской новостройке недалеко от Павелецкой площади. В ней достаточно пространства для удобной жизни: есть кухня-гостиная, спальня и детская комната. Также предусмотрены гардеробная и прихожая, а два санузла делают повседневный быт более комфортными. На полу в жилых комнатах уложен кварцевый паркет с приятной фактурой дерева. Стены окрашены в белый цвет — он визуально расширяет пространство и придает ему легкость. Малиновый кант по периметру комнат добавляет яркий акцент и задает настроение всему интерьеру. Черные плинтусы перекликаются с черными наличниками межкомнатных дверей, создавая гармоничное сочетание с остальными элементами. Кухня совмещена с гостиной, поэтому
Оглавление

Шторы вместо фасадов, ванна в спальне у окна, фартук из алюкобонда

Дизайнер и архитектор Сабина Неровня создала яркий и комфортный интерьер для молодой семьи с ребенком. Она использовала яркие цвета и нестандартные решения в отделке, превратив обычную новостройку в смелый арт-объект.

Румтур этой квартиры (40 минут)

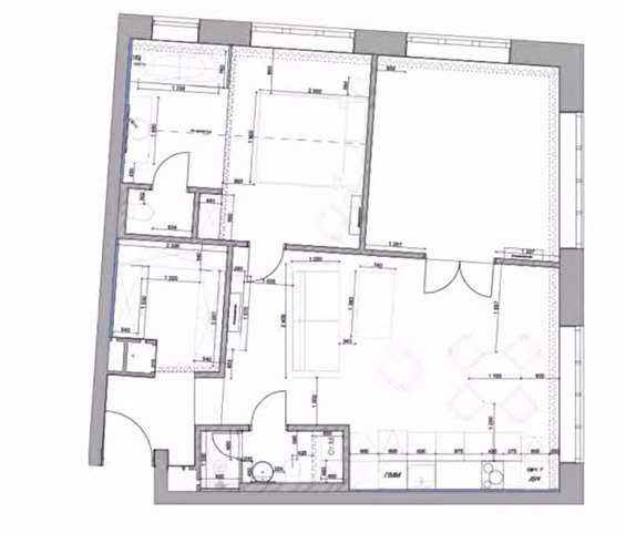
О планировке

Трехкомнатная квартира находится в московской новостройке недалеко от Павелецкой площади. В ней достаточно пространства для удобной жизни: есть кухня-гостиная, спальня и детская комната. Также предусмотрены гардеробная и прихожая, а два санузла делают повседневный быт более комфортными.

 📷
📷

О кухне-гостиной

На полу в жилых комнатах уложен кварцевый паркет с приятной фактурой дерева. Стены окрашены в белый цвет — он визуально расширяет пространство и придает ему легкость. Малиновый кант по периметру комнат добавляет яркий акцент и задает настроение всему интерьеру. Черные плинтусы перекликаются с черными наличниками межкомнатных дверей, создавая гармоничное сочетание с остальными элементами.

 📷
📷

Кухня совмещена с гостиной, поэтому основное внимание было уделено ее оформлению. Лаконичные фасады шкафов красиво гармонируют с фартуком из алюкобонда. Вместо верхних шкафов установлены открытые полки с эффектной подсветкой. Столешница выполнена из искусственного камня и имеет раковину подстольного монтажа, что значительно упрощает уход за рабочей зоной.

 📷
📷
 📷
📷

Обеденный стол, созданный по эскизу дизайнера, стал центральным элементом столовой зоны и был дополнен современными стульями в винтажном стиле. На полу располагается дагестанский ковер килим, добавляющий теплоты. В уголке для чтения стоит яркое кресло, которое, благодаря своей легкости, можно легко передвигать. Диванная зона оформлена ярким раскладным диваном. Журнальный столик выполнен из черно-белой керамической плитки в шахматной раскладке, что добавляет динамичности в общий стиль.

 📷
📷
 📷
📷
Межкомнатные двери продолжают тему кругов и арок, дополняя интерьер изысканным дизайном и подчеркивая общую концепцию пространства.
 📷
📷

О спальне

В спальне предусмотрена лишь комфортная мягкая кровать, дополненная двумя прикроватными столиками разного дизайна. Кровать оснащена подъемным механизмом, скрывающим большой короб для хранения, что особенно удобно для поддержания порядка. Гардеробная, скрытая за яркой малиновой шторой, служит не только практичным решением, но и ярким акцентом, создавая уютную атмосферу и гармонично сочетаясь с остальными элементами интерьера.

 📷
📷

Смелое решение — ванная комната, размещенная на подиуме у второго окна. Она стала оригинальным уголком для релаксации и отдыха, который прекрасно дополняет атмосферу уюта и комфорта в спальне.

 📷
📷
 📷
📷

О санузле

Второй санузел расположен при входе. Здесь предусмотрена современная душевая кабина, а также мойка-стакан, которая гармонично вписывается в общий дизайн. Завершается композиция красивым зеркалом и стильными бра, добавляющими легкость и изысканный визуальный акцент.

 📷
📷

О прихожей

Прихожая, площадью всего 3,9 кв. м, оформлена в глубоком малиновом оттенке, что придает ей яркость и оригинальность. Здесь предусмотрена еще одна гардеробная, скрытая за шторой. Одна из стен оформлена алюкобондом, таким же материалом, как и фартук на кухне, что создает единое стилистическое решение во всей квартире. На этой стене расположены удобные крючки для одежды, обеспечивающие функциональность и практичность.

 📷
📷

Еще одна комната в квартире остается пустой, предоставляя будущим жильцам возможность самостоятельно наполнить ее мебелью по своему усмотрению. Эта комната может стать уютным кабинетом для работы или же светлой детской, в зависимости от потребностей и предпочтений семьи.

 📷
📷

Хотите, чтобы ваш проект был опубликован на INMYROOM? Присылайте фотографии интерьера на wow@inmyroom.ru.

Сейчас читают:

Спасибо, что читаете нас! ❤️

Если материал был полезен — поставьте лайк и отправьте другу.

А ещё больше интерьерных идей, советы экспертов и классные румтуры в нашем Telegram-канале. Подписывайтесь, вам точно понравится!