Найти в Дзене
INMYROOM

Сама себе архитектор и дизайнер: как наша героиня построила дом мечты

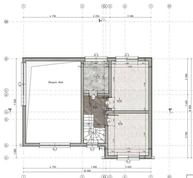
Стильный уютный интерьер своими силами Дом в подмосковной «Западной усадьбе» Наталья строила буквально с нуля — без застройщика, с чертежами в руках, сама вникала во все этапы. Выбирала материалы, искала подрядчиков, сама же красила, пилила, а кое-где и мебель собирала. Сейчас в этом доме живет она, две собаки и два кота. «Это был сложный, но кайфовый процесс», — говорит Наталья. И действительно, получилось очень по-человечески: просторно, светло, без пафоса — но в каждой детали чувствуется душа. Кухню, например, она собрала за 40 тысяч рублей, а стол в столовой сколотила сама. Но особенно гордится террасой — там она проводит почти все лето. Утром — кофе и любимая музыка, вечером — друзья и разговоры под шум ветра. Этот дом — двухэтажный каркасник с необычной планировкой. Потолки в комнатах варьируются от 1,8 до 3 метров, но самое впечатляющее — это пространство первого этажа со вторым светом и потолком в целых 6 метров. Внутри поместились три спальни, просторная кухня-гостиная и уютна
Оглавление

Стильный уютный интерьер своими силами

Дом в подмосковной «Западной усадьбе» Наталья строила буквально с нуля — без застройщика, с чертежами в руках, сама вникала во все этапы. Выбирала материалы, искала подрядчиков, сама же красила, пилила, а кое-где и мебель собирала. Сейчас в этом доме живет она, две собаки и два кота. «Это был сложный, но кайфовый процесс», — говорит Наталья.

И действительно, получилось очень по-человечески: просторно, светло, без пафоса — но в каждой детали чувствуется душа. Кухню, например, она собрала за 40 тысяч рублей, а стол в столовой сколотила сама. Но особенно гордится террасой — там она проводит почти все лето. Утром — кофе и любимая музыка, вечером — друзья и разговоры под шум ветра.

О планировке и ремонте

Этот дом — двухэтажный каркасник с необычной планировкой. Потолки в комнатах варьируются от 1,8 до 3 метров, но самое впечатляющее — это пространство первого этажа со вторым светом и потолком в целых 6 метров. Внутри поместились три спальни, просторная кухня-гостиная и уютная терраса.

Однако на этапе строительства возникла настоящая проблема: застройщик сильно затянул сроки, а потом вовсе отказался продолжать работу. Наталье пришлось взять все в свои руки и самостоятельно завершать отделку, чтобы успеть подать документы в банк по ипотеке — сроки там были строгими.

Внутри дом обшит имитацией бруса, кроме санузла, где подруга Натальи предложила бюджетный вариант с плиточным клеем для отделки. Пол на первом этаже выложен керамогранитом, а на втором, вместе с лестницей, — из натурального дерева.

 📷
📷
 📷
📷

О террасе

Наталья решила, что для своей террасы нужно создать что-то особенное. Она сама сделала уютные кресла и диванчик с деревянным каркасом, дополнив их мягкими подушками, которые теперь радуют глаз. Маленький столик Наталья тоже соорудила своими руками. Терраса стала комфортным уголком для отдыха и общения с близкими — идеальным местом, чтобы пить утренний кофе, наслаждаться хорошей книгой или просто болтать с друзьями под ярким солнцем.

О кухне-гостиной

Большие панорамные окна на кухне-гостиной делают пространство очень светлым и просторным. Когда заходишь, сразу чувствуешь, как солнечные лучи заполняют каждую уголок. Кухня расположена в углу, Наталья выбрала бюджетный вариант — без верхних фасадов, с минималистичным дизайном, который выглядит стильно. Вся кухня обошлась ей в 40 тысяч рублей, включая доставку и сборку.

 📷
📷
 📷
📷

Столешница сделана из массива сосны и покрыта лаком, на что Наталья потратила еще 10 тысяч рублей на материалы и установку. А барный стол-остров — это ее собственное творение! Он не только увеличивает рабочую поверхность, но и становится отличным местом для хранения — настоящая находка для компактной кухни. Бытовая техника выбрана в белом цвете, что как нельзя лучше вписывается в общий стиль, создавая атмосферу легкости и гармонии.

 📷
📷
 📷
📷

Рядом с большим окном Наталья разместила солидный обеденный стол и две уютные лавки, которые сделала своими руками. Они привносят теплоту и уют, подчеркивая индивидуальность этого места.

Для зоны гостиной Наталья выбрала угловой диван без подлокотников, чтобы сохранить легкость в дизайне. Мягкие формы дивана отлично смотрятся в сочетании с минималистичным журнальным столиком и креслом-качалкой, которое так и манит расслабиться с книгой. Все элементы интерьера прекрасно дополняют друг друга, создавая теплую и дружелюбную атмосферу, в которой хочется оставаться подолгу.

 📷
📷
 📷
📷
 📷
📷

О спальнях

Спальни отлично вписываются в общую атмосферу. Они полностью соответствуют минималистическому стилю, где все сделано с умом и функционально. Каждый предмет здесь на своем месте, ничего лишнего. В двух спальнях стоят двуспальные кровати — они удобные и уютные, а прикроватные тумбы Наталья сделала своими руками. В третьей спальне находятся две односпальные кровати. Это идеальное решение для размещения гостей — всем хватит места, и каждый сможет чувствовать себя комфортно.

 📷
📷
 📷
📷

Ошибки и уроки на будущее

Несмотря на успехи, Наталья допустила несколько ошибок. Самой досадной оказалась неправильная выборка застройщика и недостаточное продумывание проекта с точки зрения планировки и освещения. Однако, уроки, извлеченные из этого опыта, стали бесценными:

 📷
📷
  • Выбор надежного застройщика: обязательный момент, который стоит проверять на основе рекомендаций.
  • Вникать в каждую деталь: контроль на каждом этапе строительства поможет избежать недоразумений.
  • Качественный проект: важно тщательно проработать архитектурный, дизайнерский и инженерный проект, не торопясь. Лучше потратить больше времени на начальном этапе, чем переделывать позднее.

В результате дом получился уютным и функциональным, в нем каждая деталь продумана. Каждое помещение, будь то спальня или терраса, создает комфортную атмосферу для жизни и отдыха.

 📷
📷

Сейчас читают:

Спасибо, что читаете нас! ❤️

Если материал был полезен — поставьте лайк и отправьте другу.

А ещё больше интерьерных идей, советы экспертов и классные румтуры в нашем Telegram-канале. Подписывайтесь, вам точно понравится!