Найти в Дзене
INMYROOM

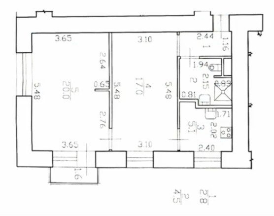
Бюджетная реновация «брежневки»: на чем можно и нельзя экономить при капитальном ремонте

Пример того, как можно создать стильный и функциональный интерьер, если грамотно распределить бюджет Страшный сон любого обладателя квартиры — услышать фразу «капитальный ремонт». На ум сразу приходят бесконечные нули в смете, десятки тысяч образцов плитки, месяцы жизни на чемоданах и седые волосы от стресса. Но история петербурженки Ксении доказывает: привести в порядок типовую «брежневку» можно за вполне разумные деньги. Двухкомнатная квартира площадью 51,6 м² в доме серии 528 кп40 (в народе — «точка Надежина») преобразилась всего за 3 миллиона рублей. При этом были полностью перепланированы все помещения, заменены коммуникации и обновлена отделка. Как удалось уложиться в такой бюджет и на чем точно нельзя срезать углы? Тип дома: брежневка Метраж: 51,6 м² Высота потолков: 2,7 м Дизайн: Ксения Рассказывая про свой ремонт, Ксения особо отмечает важность выбора строительной бригады: «Я меняла бригаду на начальных этапах ремонта. И вторую бригаду я практически устраивала целый кастинг на
Оглавление

Пример того, как можно создать стильный и функциональный интерьер, если грамотно распределить бюджет

Страшный сон любого обладателя квартиры — услышать фразу «капитальный ремонт». На ум сразу приходят бесконечные нули в смете, десятки тысяч образцов плитки, месяцы жизни на чемоданах и седые волосы от стресса. Но история петербурженки Ксении доказывает: привести в порядок типовую «брежневку» можно за вполне разумные деньги. Двухкомнатная квартира площадью 51,6 м² в доме серии 528 кп40 (в народе — «точка Надежина») преобразилась всего за 3 миллиона рублей. При этом были полностью перепланированы все помещения, заменены коммуникации и обновлена отделка. Как удалось уложиться в такой бюджет и на чем точно нельзя срезать углы?

 📷
📷
Тип дома: брежневка
Метраж: 51,6 м²
Высота потолков: 2,7 м
Дизайн: Ксения

Главное из статьи:

  • Успешный ремонт начинается с детального планирования и приоритезации расходов;
  • Экономия на строителях может обернуться двойными тратами — лучше тщательно выбирать бригаду с договором и сметой;
  • На электрике, сантехнике и окнах экономить не стоит — это базовые системы, от которых зависит безопасность и комфорт;
  • Дизайн интерьера можно сделать самостоятельно, используя онлайн-планировщики и обычные программы для презентаций;
  • Многие элементы декора, включая винтажную мебель, можно найти на вторичном рынке и отреставрировать;
  • Разные сценарии освещения создают разную атмосферу — это относительно недорогой способ преобразить пространство.

Важно выбрать правильных мастеров: кастинг для строителей

Рассказывая про свой ремонт, Ксения особо отмечает важность выбора строительной бригады: «Я меняла бригаду на начальных этапах ремонта. И вторую бригаду я практически устраивала целый кастинг на то, чтобы выбрать ее — примерно из шести разных бригад».

Казалось бы, наем более дешевых неквалифицированных рабочих может сэкономить деньги. Но опыт Ксении показывает обратное — недобросовестные строители на начальном этапе привели к необходимости переделывать работу, что в итоге только увеличило затраты и удлинило сроки.

Как юрист, Ксения подошла к выбору исполнителей с соответствующей тщательностью: «Для меня важно официальное оформление, чтобы был договор, была четкая понятная смета по работам и техническим нюансам. Мы с ними общались, как они будут делать работы, они мне отвечали. Их видение процесса совпало с моим».

Отказ от услуг «мастеров-шабашников» в пользу официально оформленной бригады — это не экономия, а инвестиция. Правильно составленные договор и смета защитят от лишних расходов и обеспечат возможность контролировать процесс работы.

Фото до ремонта:

-3
-4
-5
-6
-7
-8

На чем нельзя экономить: базовые системы жизнеобеспечения

Анализируя ремонт Ксении, можно выделить несколько базовых систем, на которых точно не стоит пытаться сэкономить.

  • Окна. В квартире были заменены все окна, включая балконное остекление: «В квартире стояли изначально двухрамные такие деревянные окна, некоторые даже были финские со стеклопакетами, но я решила полностью все поменять, потому что проще, чтобы был везде единый стиль».Особое внимание уделено балкону — здесь появилось панорамное остекление: «Когда я сделала это панорамное остекление, это очень много света в квартиру добавило, и вот конкретно в эту комнату. Она в целом самая светлая».
  • Электрика. В спальне Ксения рассказывает о продуманной системе выключателей: «У кровати есть мастер-выключатели. То есть можно выключить свет сразу во всей квартире, если вы легли спать, вдруг забыли где-то что-то выключить».Это говорит о полной замене электропроводки и установке современной системы управления освещением. Такие решения стоят недешево, но они обеспечивают безопасность и комфорт на долгие годы.
  • Сантехника и коммуникации. В санузле полностью перенесены точки подключения сантехники: «Ванна там всегда раньше стояла, поэтому мы это все развернули». Системы подачи воды и канализации были заменены полностью, что позволило реализовать новую планировку.Также в ванной установлен теплый пол: «Пол — тот же кафель, что в прихожей, плюс теплый пол». Это еще одна статья расходов, на которой лучше не экономить, особенно в холодном климате.
  • Кондиционеры. В квартире установлены кондиционеры с внешним блоком: «Внешний блок кондиционера — он один, он обслуживает сразу два кондиционера внутренних. У кондиционера в гостиной была возможность вывести трубку на улицу, а здесь это было невозможно технически. Поэтому из этого кондиционера трубочка ведет прямо в канализацию».

Климатическая система — дорогостоящее, но необходимое решение для комфортной жизни.

 📷
📷
 📷
📷

Где можно сэкономить: дизайн и проектирование

Одна из самых значительных статей экономии у Ксении — отказ от услуг профессионального дизайнера интерьера на большей части проекта.

«Я пользовалась стандартным онлайн-планировщиком, где отрисовала технический проект. А вот уже визуальную часть — это такой мой лайфхак, можно сказать — я пользовалась стандартным приложением, где готовят презентации. Я просто очень хорошо умею пользоваться этим приложением, и собственно там делала всевозможные коллажи, вырезала какие-то тумбочки, телевизоры, диваны, все это подставляла по цветам, накидывала оформление стен», — рассказывает Ксения.

Однако полностью отказываться от помощи профессионалов она не стала. На финальном этапе был привлечен дизайнер для проектирования сложных систем хранения: «Дизайнер, которая мне на последнем этапе помогала, отрисовала мебель, которой мне не хватало в квартире — это шкаф в прихожей, отрисовка по моим чертежам шкафа в спальне и оформление зоны в ванной».

Такой подход — самостоятельное проектирование с точечным привлечением специалистов для сложных задач — позволяет существенно сэкономить, но при этом получить профессиональный результат в критически важных местах.

 📷
📷
 📷
📷
 📷
📷

Умная экономия на мебели и декоре

Создать стильный интерьер можно и без покупки дорогой дизайнерской мебели. Ксения разумно сочетает новые предметы со старыми, отреставрированными вещами.

В гостиной особое место занимает винтажная техника: «Это замечательная радиола 'Ригонда', которую петербургские умельцы прикрутили к Bluetooth. Поэтому музыку можно раздавать прямо с телефона. Это примерно шестьдесят восьмой год».

Рядом — советская цветомузыка: «Она светится разными цветами, понимает звучание радиолы и подсвечивает разные цвета в ритм. Такая советская дискотека интеллигентов».

В зоне кабинета Ксения разместила отреставрированную винтажную мебель: «Здесь есть и винтажные восстановленный стол чехословацкий, и винтажное кресло «гно», которое тоже было с рук, потом я его на реставрацию отдавала. Стул этот тоже такой известный представитель шестидесятых, баухаус направления».

Покупка старой мебели с рук и последующая реставрация часто обходится дешевле, чем приобретение новых предметов аналогичного качества. При этом винтажные вещи добавляют интерьеру характер и индивидуальность.

В спальне кровать вообще сделана своими руками: «Кровать полностью сделана своими руками. Эту кровать делал мой папа. То есть мы закупали материалы отдельно, закупали ткань, обивку, и весь каркас, все было создано вот с его руками. Единственное, понятно, матрас и подъемный механизм — это покупное».

 📷
📷
 📷
📷
 📷
📷

Нестандартные решения для экономии пространства и денег

В маленькой квартире важно использовать каждый сантиметр пространства. Ксения нашла несколько интересных решений, которые помогли сделать интерьер более функциональным без дополнительных затрат.

На кухне роль обеденного стола выполняет широкий подоконник: «Поскольку кухню я уменьшила, встал вопрос: где будет зона для приема пищи? Для каждодневного, такого быстрого использования я сделала просто очень широкий подоконник. Здесь спокойно можно сидеть с ногами вдвоем, даже принести стул или табурет».

В ванной комнате пространство над инсталляцией используется для хранения: «Здесь зашит узел с коммуникациями, собственно здесь есть спокойный доступ ко всем кранам, к датчикам протечки, фильтрам, к бойлеру. Плюс дополнительно мы сделали здесь хранение — там какие-то оставшиеся ремонтные вещички и прочее».

Интересное решение — использование встроенных ниш для шкафов. В спальне спроектирована специальная ниша для гардероба: «Специально заранее была заложена вот эта ниша, и внутри здесь по сути рейлинги».

Такие решения не требуют больших затрат, но значительно увеличивают функциональность пространства.

Как создать разные сценарии освещения без лишних трат

Освещение играет ключевую роль в создании атмосферы, и здесь Ксения не поскупилась на разнообразие, при этом не выходя за рамки разумного бюджета.

В гостиной предусмотрено несколько сценариев света: «Здесь много сценариев освещения. Есть основной свет, есть подсветка боковая, есть боковые бра, есть светильник около телевизора, есть еще дополнительная подсветка персонально для цветов».

Даже на небольшой кухне есть три варианта освещения: «Здесь по сути три сценария: есть верхний свет, есть свет, который подсвечивает стену с цветами и окном, и есть свет от вытяжки».

Разнообразие световых сценариев — это относительно недорогой способ кардинально изменить восприятие пространства. Вместо одного дорогого центрального светильника лучше установить несколько бюджетных источников света в разных зонах комнаты.

 📷
📷

Чему можно поучиться у юриста, делающего ремонт

История Ксении показывает, что даже без специального образования можно создать стильный и функциональный интерьер, если грамотно распределить бюджет.

Главные выводы:

  • Основательно подойдите к выбору строителей — это сэкономит деньги и нервы в долгосрочной перспективе;
  • Не экономьте на базовых системах: окнах, электрике, сантехнике;
  • Дизайн-проект можно сделать самостоятельно, привлекая специалистов только для сложных задач;
  • Комбинируйте новую мебель с отреставрированной винтажной;
  • Используйте нестандартные решения для экономии пространства;
  • Разнообразьте освещение — это недорого, но эффективно.

Ремонт квартиры площадью 51,6 м² за 3 миллиона рублей — это доказательство того, что бюджетная реновация «брежневки» вполне возможна. Главное — правильно расставить приоритеты и не экономить на действительно важных вещах.

Румтур этой квартиры:

Сейчас читают: