Добавить в корзинуПозвонить
Найти в Дзене
INMYROOM

Архитектор взялась за ремонт квартиры 1857 года, и вот что получилось

Настоящий пример сочетания истории с современными потребностями Исторический дом 1857 года постройки в центре Петербурга и современная жизнь молодой семьи с ребенком — казалось бы, их сложно совместить. Но архитектору и дизайнеру Ольге Золотухиной из Poplavsky Group удалось невозможное. Она спроектировала для своей семьи квартиру, где классические элементы и 3,4-метровые потолки органично сочетаются с функциональными решениями для комфортной жизни. Место: Санкт-Петербург Метраж: 104 м² Высота потолков: 3,4 м Дизайн: Ольга Золотухина, Poplavsky Group Несмотря на то, что дом был построен в середине XIX века, квартира досталась хозяевам с типовой планировкой и блоком санузлов «хрущевского» типа — результат реконструкции 1986 года. «Изначально в доме была типовая планировка с блоком санузлов «хрущевского» типа, такая планировка возникла после реконструкции в 1986 году», — рассказывает дизайнер. Во время ремонта обнаружились интересные исторические детали. «При работах по демонтажу штукатур
Оглавление

Настоящий пример сочетания истории с современными потребностями

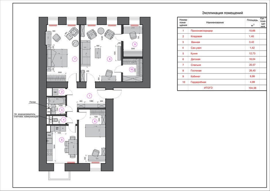
Исторический дом 1857 года постройки в центре Петербурга и современная жизнь молодой семьи с ребенком — казалось бы, их сложно совместить. Но архитектору и дизайнеру Ольге Золотухиной из Poplavsky Group удалось невозможное. Она спроектировала для своей семьи квартиру, где классические элементы и 3,4-метровые потолки органично сочетаются с функциональными решениями для комфортной жизни.

Место: Санкт-Петербург
Метраж: 104 м²
Высота потолков: 3,4 м
Дизайн: Ольга Золотухина, Poplavsky Group
 📷
📷

Главное из статьи:

  • Квартира с историей: в доме обнаружились заложенные проходы в другое здание и следы арочных сводов;
  • Проходную гостиную превратили в парадное пространство со скрытыми дверями в кабинет и гардеробную;
  • Спокойная цветовая гамма стен сочетается с яркими акцентами: изумрудным диваном и бордовыми креслами;
  • Детская спроектирована «на вырост» — легко трансформируется в подростковую комнату.

От «хрущевки» к историческому величию

Несмотря на то, что дом был построен в середине XIX века, квартира досталась хозяевам с типовой планировкой и блоком санузлов «хрущевского» типа — результат реконструкции 1986 года.

«Изначально в доме была типовая планировка с блоком санузлов «хрущевского» типа, такая планировка возникла после реконструкции в 1986 году», — рассказывает дизайнер.

Во время ремонта обнаружились интересные исторические детали. «При работах по демонтажу штукатурки обнаружились особенности кладки, свидетельствующие о неоднократной реконструкции дома, в частности на фасаде были обнаружены арочные своды на 2 этажа. По обеим сторонам квартиры имеются заложенные проходы в другое здание, свидетельствующие о первоначальной планировке анфиладного типа», — отмечает Ольга.

Одна из таких исторических особенностей — ниша у окна в спальне, которая оказалась заложенным проходом в другое здание.

Фото до ремонта:

-3
-4
-5

Гостиная с секретом

Одним из самых интересных планировочных решений стала работа с проходной гостиной.

«Изначально гостиная в квартире была проходной, через нее мы попадали в небольшую вытянутую комнату два метра шириной и шесть метров в длину. Помещение было совершенно не функционально», — вспоминает Ольга.

Дизайнер разделила вытянутое пространство примерно пополам, получив два полноценных помещения — кабинет для хозяина квартиры и гардеробную. Но как быть с тем, что это комнаты личного пользования, а гостиная является центральным, парадным помещением?

Решение оказалось элегантным: две скрытые двери были расположены симметрично относительно центральной оси гостиной и задекорированы системой молдингов. Теперь гости даже не догадываются о наличии дополнительных помещений за стенами гостиной.

 📷
📷
 📷
📷

Отделка и цвет: от нюансов к ярким акцентам

В отделке квартиры использованы композиции из молдингов и потолочные карнизы, подчеркивающие высоту потолков и масштабность интерьера. Все стены покрашены качественными английскими красками.

«В колористике спокойные тона перекликаются с яркими цветовыми акцентами, отражающими настроение и характер хозяев квартиры», — объясняет дизайнер. «Дизайнер часто отдает предпочтение стенам под покраску — легко мыть и ремонтировать».

Пол в коридоре и мокрые зоны отделаны керамогранитом, что в первую очередь обусловлено практичностью. В жилых комнатах и на кухне уложен дубовый паркет теплого оттенка, добавляющий яркости в спокойную гамму стен.

 📷
📷
 📷
📷
 📷
📷

Гостиная: центр притяжения

Центральным пространством квартиры стала парадная гостиная, разделенная на две функциональные зоны: собственно гостевую и небольшое рабочее место.

«Там нас встречают насыщенные бордовые кресла и изумрудный диван, золотые оттенки в предметах мебели и декора, которые по воле дизайнера привносят элемент торжественности в пространство», — описывает интерьер Ольга.

Яркий изумрудный диван перекликается с цветом стен в кабинете хозяина квартиры. «Сложный зеленый оттенок дополнен мебельным гарнитуром из натурального дерева. Стол выполнен по индивидуальному заказу, имеет очень интересную систему открывания ящиков», — рассказывает дизайнер.

 📷
📷

Спальня: две зоны, объединенные цветом

Главная спальня хозяев композиционно разделена на две зоны при помощи цвета и латунных полос, а также разных сценариев освещения. Это позволило создать визуально более уютный масштаб в высоком помещении.

Интересной деталью спальни стала картина, которую Ольга написала сама. «Ольга — творческий человек и, конечно, не равнодушна к живописи. Картину в спальне она написала сама, так как не видела там ничего другого, более подходящего. Это подтолкнуло ее на душевный порыв, в результате которого появился автопортрет ее семьи», — рассказывают коллеги дизайнера.

В спальню также органично вписалась скульптурная копия любимого питомца — французского бульдога.

 📷
📷

Детская: растет вместе с ребенком

При планировке детской для двухлетней дочери дизайнер думала на перспективу. «Изначально хотелось, чтобы она была универсальной. Без лишней детской мебели, удобно трансформируемая впоследствии в подростковую, с нормальной, полноценной кроватью», — объясняет Ольга.

«Убираем балдахин, убираем птичек — и получаем уже взрослую сдержанную подростковую комнату. При желании можно будет поменять цвет стен под дальнейшие вкусовые предпочтения ребенка», — продолжает она.

Компактный детский столик и стеллаж впоследствии можно будет заменить на полноценную рабочую зону.

 📷
📷
 📷
📷
 📷
📷

Кухня: классика и функциональность

Кухня осталась в прежних границах, сохранилась даже газовая плита. Интересное решение — доступ к газовому счетчику осуществляется через нижний ящик кухонного гарнитура.

Кухонный гарнитур изготавливался на заказ, со стандартными размерами шкафчиков. Здесь есть встроенная посудомоечная машина, встроенная газовая плита, а электрические духовой шкаф и микроволновка расположены рядом с холодильником.

«Контрастным акцентом является блок под электрические приборы (кофемашина, чайник)», — отмечает дизайнер.

 📷
📷
 📷
📷

Санузел: компактный, но продуманный

Из-за невозможности изменить размеры санузлов, дизайнер максимально эффективно использовала имеющееся пространство.

«Дизайнер не имела возможности поменять размеры и габариты санузлов, поэтому компактно разместила здесь исключительно все самое необходимое: ванную из литьевого мрамора, раковину, системы хранения в нишах и, конечно, зеркало, подсветка которого включается по датчику», — рассказывают в студии.

Использована встроенная инсталляция для подвесного унитаза, что позволило сэкономить несколько драгоценных сантиметров пространства. В отделке применена комбинация из керамогранита.

 📷
📷
 📷
📷
 📷
📷

Системы хранения: незаметные, но вместительные

«Все системы хранения изготавливались под заказ по эскизам дизайнера. Да, это увеличило бюджет реализации, но незначительно», — отмечает Ольга. В каждой комнате есть шкаф для личных вещей хозяина.

В детской встроенная гардеробная система органично вписана в пространство. «Хотелось высокие шкафы до самого потолка, органично вписанные в пространство», — объясняет дизайнер.

Шкаф в спальне разделен на две зоны — для хозяина и хозяйки, с системой выдвижных ящиков для белья посередине.

Особенность гарнитура в прихожей в том, что шкаф и консоль выполнены строго в цвет стен. «Не хотелось акцентировать внимание на этих предметах мебели», — поясняет Ольга.

Просторная гардеробная, появившаяся в результате перепланировки, стала дополнительной системой хранения для бытовых предметов, отпаривателя, гладильной доски и сезонных вещей.

Геополитика и русские производители

Проект реализовывался в непростое время, что наложило свой отпечаток на выбор мебели и материалов.

«Стояла задача максимально быстро приобрести мебель в сложных геополитических условиях, поэтому в квартире в основном использованы мебель и материалы русских производителей», — объясняет дизайнер.

Этот вынужденный выбор оказался удачным — качество отечественной мебели и материалов полностью соответствовало высоким требованиям проекта.

Достоинство и практичность

Проект квартиры на Литейном демонстрирует, как можно органично сочетать историческое наследие с современными потребностями молодой семьи. Высокие потолки, молдинги и дубовый паркет создают достойное обрамление для яркой и функциональной мебели, а скрытые двери и продуманные системы хранения делают жизнь комфортной и организованной.

«Вдохновением послужил исторический статус объекта и его особенная атмосфера», — признается Ольга. И это вдохновение чувствуется в каждой детали интерьера, преображенного талантливым дизайнером для себя и своей семьи.

Сейчас читают: