Добавить в корзинуПозвонить
Найти в Дзене

Какие новости по проекту на Козленской 78, в которой мы ведем ремонт и подготовку в посуточную аренду

Какие новости по проекту на Козленской 78, в которой мы ведем ремонт и подготовку в посуточную аренду? Предыдущая публикация тут. Приступили к монтажу сантехники в санузле и нас ждал сюрприз. На плане красиво все стоит в ванной - раковина помещается, унитаз тоже. А по факту - нет. То есть настолько тесно, что точно неудобно. И это все из-за того, что мы собирались стиральную машину поставить под раковину. В итоге принимаем решение о переносе стиралки на кухню и перепланируем расстановку мебели иначе. Самое главное - комфорт в санузле. Туда встанет более узкая раковина. Именно так все встанет с максимальным комфортом. Ремонт - интересное приключение. Где-то всегда поджидают сюрпризы.

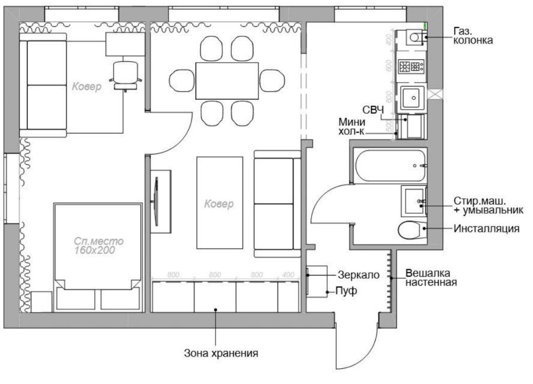
Какие новости по проекту на Козленской 78, в которой мы ведем ремонт и подготовку в посуточную аренду?

Предыдущая публикация тут.

Приступили к монтажу сантехники в санузле и нас ждал сюрприз.

На плане красиво все стоит в ванной - раковина помещается, унитаз тоже.

А по факту - нет. То есть настолько тесно, что точно неудобно. И это все из-за того, что мы собирались стиральную машину поставить под раковину.

В итоге принимаем решение о переносе стиралки на кухню и перепланируем расстановку мебели иначе. Самое главное - комфорт в санузле. Туда встанет более узкая раковина. Именно так все встанет с максимальным комфортом.

Ремонт - интересное приключение.

Где-то всегда поджидают сюрпризы.