Найти в Дзене
INMYROOM

Как обустроили уютный загородный домик 30 м² у реки (фото до и после)

Без дизайнера оформили светлое функциональное пространство в скандинавском стиле Светлана Белова приобрела небольшой домик на берегу реки, чтобы в дальнейшем сдавать его в аренду семье с одним или двумя детьми и всем, кому интересен отдых за городом в живописной локации рядом с рекой. Основная задача — разместить весь необходимый функционал на маленькой площади так, чтобы интерьер выглядел просторно. За основу Светлана взяла скандинавский стиль с элементами минимализма. Место: Московская область, д. Бурмакино
Тип дома: дом, построенный по каркасной технологии
Метраж: 30 м²
Высота потолков: 2,7 м
Количество комнат: 1
Санузел: 1
Бюджет: 2 млн руб.
Дизайн: Светлана Белова Изначально в доме было общее помещение кухни-гостиной, две небольшие спальни, тесный санузел и техническое помещение. Базовую планировку оставили без изменений, только демонтировали перегородку между двумя спальнями и расширили санузел, забрав часть площади у техкомнаты. Чтобы уйти от стандартного желтого цвета вагонки,
Оглавление

Без дизайнера оформили светлое функциональное пространство в скандинавском стиле

Светлана Белова приобрела небольшой домик на берегу реки, чтобы в дальнейшем сдавать его в аренду семье с одним или двумя детьми и всем, кому интересен отдых за городом в живописной локации рядом с рекой. Основная задача — разместить весь необходимый функционал на маленькой площади так, чтобы интерьер выглядел просторно. За основу Светлана взяла скандинавский стиль с элементами минимализма.

Место: Московская область, д. Бурмакино
Тип дома: дом, построенный по каркасной технологии
Метраж: 30 м²
Высота потолков: 2,7 м
Количество комнат: 1
Санузел: 1
Бюджет: 2 млн руб.
Дизайн: Светлана Белова

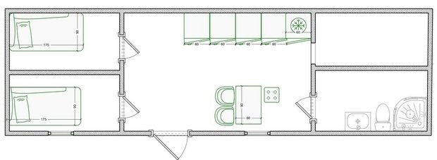
Изначально в доме было общее помещение кухни-гостиной, две небольшие спальни, тесный санузел и техническое помещение. Базовую планировку оставили без изменений, только демонтировали перегородку между двумя спальнями и расширили санузел, забрав часть площади у техкомнаты.

 📷Планировка до
📷Планировка до
 📷Планировка После
📷Планировка После
 📷
📷

Чтобы уйти от стандартного желтого цвета вагонки, стены в кухне-гостиной и спальне перекрасили в белый цвет — это сразу освежило пространство, оно стало казаться шире. На полу — ламинат более высокой ценовой категории. На пол приходится основная нагрузка, хотелось максимально долго сохранить его в отличном виде.

 📷
📷

Кухня небольшая, без верхних модулей, так как предполагается, что здесь много готовить не будут. Гарнитур комфортно расположен вдоль стены, в нем предусмотрено все самое необходимое: посудомойка на 45 см, небольшой холодильник, СВЧ, варочная панель на две конфорки.

 📷
📷
 📷
📷

Для обеденной зоны выбрали полубарный стол — его высота рассчитана на то, чтобы было удобно наблюдать из окна вид на противоположный берег реки. Компактный диван легко трансформируется в спальное место — на нем комфортно могут разместиться два человека.

 📷
📷
 📷
📷

Несмотря на маленькую площадь, задачу по организации систем хранения решили успешно. При входе находится большой шкаф с дверцами и выдвижными ящиками, в спальне есть отдельная вешалка для одежды и прикроватный столик, в ванной — подвесная тумба.

 📷
📷

В результате сноса перегородки две спальни объединили в одну комнату. Спальня предназначается для сна и отдыха, поэтому здесь есть только кровать, застеленная белоснежным бельем. Белый цвет наполняет комнату светом, отражая его от поверхностей, и делает помещение более объемным и воздушным. Яркие акценты — синие декоративные подушки и синее покрывало. Синий привносит свежесть и снимает напряжение, способствуя комфортному отдыху.

Спальню намеренно оформили в минималистичном стиле, чтобы за счет хоумстейджинга можно было периодически менять ее вид: обновить постеры, текстиль на кровати и растения.

 📷
📷
 📷
📷

Домик расположен на высоком берегу реки, поэтому еще на этапе черновых работ заменили окна на максимально большие, подходящие по конструктиву. Это визуально увеличило помещение и позволило любоваться красивыми видами, не вставая с постели.

 📷
📷

Санузел получился нетипичным для деревянного дома — его сделали полностью из плитки. Водонагреватель, гидроаккумулятор и другие коммуникации скрыли в отдельном техническом помещении.

 📷
📷
 📷
📷
 📷
📷

Фото до ремонта

 📷
📷
 📷
📷
 📷
📷

Бренды, представленные в проекте

Кухня-гостиная
Отделка: краска, Tikkurila
Напольное покрытие: ламинат, My step
Мебель: шкаф, 
СТЕНДМЕБЕЛЬ; стол, Woodville
Бытовая техника: варочная панель, Hansa

Санузел
Отделка: плитка, Laparet West
Напольное покрытие: керамогранит, Laparet West
Мебель: тумба, Vincea Chiara; зеркало, Cersanit
Сантехника: раковина, 
Vincea
Смеситель: 
Jacob Delafon

Сейчас читают: