Добавить в корзинуПозвонить
Найти в Дзене
INMYROOM

Мини-студия 25 м² с удачными решениями

Кухня без плиты, мазанка на стенах, бетонные блоки вместо кашпо и очень много самоделок Дизайнер-декоратор Юлия Филимонова сделала квартиру под себя и свой аскетичный образ жизни. Она сама продумала планировку, дизайн и многое сделала своими руками. С помощью стильных монохромных оттенков Юлия создала уютную и комфортную обстановку, полностью отражающую ее образ жизни. Место: г. Москва
Тип дома: новостройка
Метраж: 25 м²
Высота потолков: 2,7 м
Количество комнат: 1
Санузел: 1
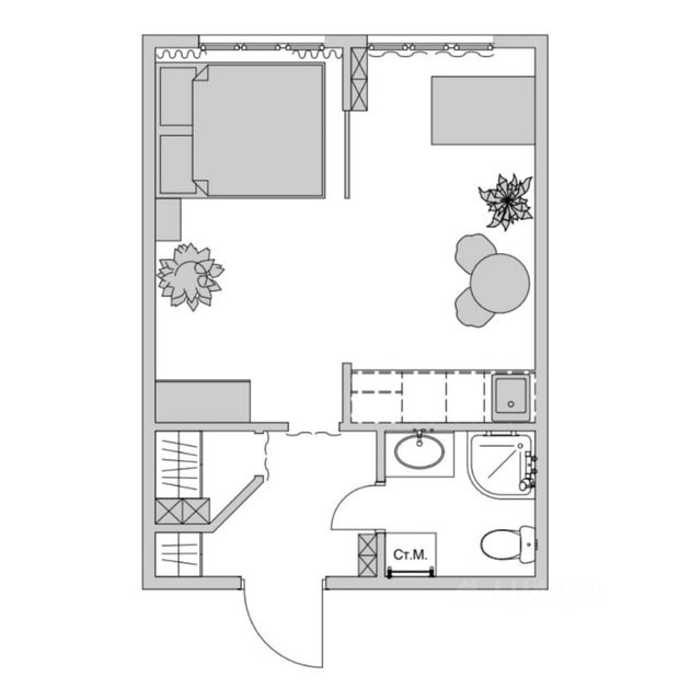
Дизайн: Юлия Филимонова Эта небольшая студия находится в Красногорском районе Московской области. На момент покупки квартира была «в бетоне». Юлия выделила несколько зон: прихожую с маленькой гардеробной, санузел, спальню, рабочее место и кухню-столовую. Для интерьера Юлия выбрала разные оттенки серого и использовала разные декоративные приемы. Стена над кухонным гарнитуром и часть стены в спальной зоне выкрашены в темно-серый, в кабинете и столовой оштукатурены цементной смесью с легкой фактурой (таким же образом
Оглавление

Кухня без плиты, мазанка на стенах, бетонные блоки вместо кашпо и очень много самоделок

Дизайнер-декоратор Юлия Филимонова сделала квартиру под себя и свой аскетичный образ жизни. Она сама продумала планировку, дизайн и многое сделала своими руками. С помощью стильных монохромных оттенков Юлия создала уютную и комфортную обстановку, полностью отражающую ее образ жизни.

Место: г. Москва
Тип дома: новостройка
Метраж: 25 м²
Высота потолков: 2,7 м
Количество комнат: 1
Санузел: 1
Дизайн: Юлия Филимонова

Румтур этой квартиры (30 минут)

Эта небольшая студия находится в Красногорском районе Московской области. На момент покупки квартира была «в бетоне». Юлия выделила несколько зон: прихожую с маленькой гардеробной, санузел, спальню, рабочее место и кухню-столовую.

 📷
📷

Для интерьера Юлия выбрала разные оттенки серого и использовала разные декоративные приемы. Стена над кухонным гарнитуром и часть стены в спальной зоне выкрашены в темно-серый, в кабинете и столовой оштукатурены цементной смесью с легкой фактурой (таким же образом оформлен потолок), а стена рядом с диваном выполнена с эффектом мазанки. Разные фактурные поверхности смотрятся очень стильно, делают обстановку выразительной и интересной.

 📷
📷

Главная особенность кухни — отсутствие плиты. Юлия вегетарианка, плита ей попросту не нужна. Гарнитур состоит из готовых стандартных модулей. Нижние фасады девушка самостоятельно окрасила в темный цвет, а верхний шкафчик сделала светлым. Столешница выполнена из эпоксидной смолы — ее Юлия тоже заливала сама на плиту OSB, вырезанную по нужным размерам.

Акцентами в кухне стали холодильник и яркий фартук. Цвет плитки на фартук Юлия подбирала к ковру в столовой. Именно ковер стал отправной точкой цветового решения для всей квартиры. Фартук Юлия тоже выложа сама, предварительно смонтировав на стену плиту OSB.

 📷
📷
 📷
📷

Столовая зона напоминает уютное французское кафе. Подстолье для круглого столика сделано из чугуна, а столешницу Юлия выкрасила в темный цвет. Винтажный веер над столом куплен на блошином рынке «Левша» всего за 600 рублей. Рядом со столом располагается интересная цветочная композиция. Подставками для цветов стали обычные строительные блоки разного размера.

 📷
📷
 📷
📷

Рабочий стол Юлия собрала сама, столешницу перекрасила в темный оттенок. Ее наклон можно регулировать, что очень удобно. Экран под радиатор тоже сделан хозяйкой квартиры из узких реек.

 📷
📷
 📷
📷

Место для отдыха и сна отделено от рабочей зоны с помощью красивой ажурной перегородки. Юлия заказала ее на производстве под нужные размеры и покрасила в цвет холодильника и фартука на кухне.

 📷
📷

Для отдыха и сна Юля выбрала диван и разместила его в небольшой нише, стена которой окрашена в темно-серой цвет. Люстру девушка тоже сделала сама — на каркас прикрепила пальмовые декоративные листы и покрасила их в темный цвет. Для хранения служит винтажный дубовый комод. Юлия его отреставрировала, заменила столешницу и покрасила маслом.

 📷
📷
 📷
📷
 📷
📷

Комнату от прихожей отделяет текстильная черная шторка. Она экономит пространство и придает помещению уют. Такой же шторкой закрыт вход в гардеробную.

 📷
📷

Для отделки санузла использовали керамогранит двух оттенков. На небольшой площади удалось разместить душевую кабинку, инсталляцию, раковину с тумбой и стиральную машину. Консоль под машинку Юлия тоже сделала сама из мебельного щита и основания для полубарного стола.

 📷
📷
 📷
📷

Сейчас читают: