Добавить в корзинуПозвонить
Найти в Дзене
INMYROOM

7 удачных решений для красивой и функциональной ванной комнаты

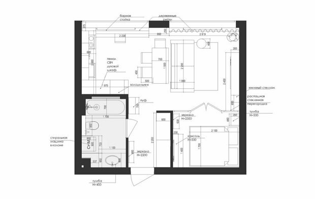
Классные идеи, которые мы подсмотрели в проекте дизайнера Этот яркий и стильный санузел оформила дизайнер Лили Кайсарова из студии Sloyarch в однокомнатной московской квартире 38 кв. м. Вдохновением для всего интерьера стали природные мотивы и атмосфера моря. Собрали модные и практичные решения, которые вдохновят вас на переделки. Разная отделка стен в зоне туалета и ванны визуально зонирует комнату. Заказчица любит синий цвет, поэтому стены над ванной и над раковиной облицевали плиткой в глубоком синем оттенке. Яркий насыщенный тон добавляет помещению свежести и напоминает о лазурном побережье. Смиксовали не только отделку и цвета, но и текстуры. Фактурная плитка, деревянные поверхности, фрезерованные фасады, латунная сантехника — интерьер выглядит интересно, динамично и дарит разнообразие тактильных ощущений. Над инсталляцией и на стене в зоне ванны спроектировали глубокие ниши. Это хороший способ максимально эффективно использовать площадь. На них удобно класть гигиенические принадл
Оглавление

Классные идеи, которые мы подсмотрели в проекте дизайнера

Этот яркий и стильный санузел оформила дизайнер Лили Кайсарова из студии Sloyarch в однокомнатной московской квартире 38 кв. м. Вдохновением для всего интерьера стали природные мотивы и атмосфера моря. Собрали модные и практичные решения, которые вдохновят вас на переделки.

 📷
📷

1. Зонирование отделкой

Разная отделка стен в зоне туалета и ванны визуально зонирует комнату. Заказчица любит синий цвет, поэтому стены над ванной и над раковиной облицевали плиткой в глубоком синем оттенке. Яркий насыщенный тон добавляет помещению свежести и напоминает о лазурном побережье.

2. Комбинирование текстур

Смиксовали не только отделку и цвета, но и текстуры. Фактурная плитка, деревянные поверхности, фрезерованные фасады, латунная сантехника — интерьер выглядит интересно, динамично и дарит разнообразие тактильных ощущений.

 📷
📷

3. Полки в нише

Над инсталляцией и на стене в зоне ванны спроектировали глубокие ниши. Это хороший способ максимально эффективно использовать площадь. На них удобно класть гигиенические принадлежности и ставить косметику.

 📷
📷

4. Стеклянная перегородка

Альтернативой мягкой занавеске стала современная стеклянная шторка. Она выглядит стильно, пропускает свет, делая санузел визуально легче и воздушнее. Стеклянная перегородка зонирует пространство и защищает полы от брызг воды и мыла.

 📷
📷

5. Хранение до потолка

Основное хранение в ванной организовали во вместительной системе хранения до потолка. Это закрытый деревянный шкаф и открытые полки в цвет стен рядом с раковиной. Благодаря большому количеству мест для хранения есть возможность разместить все необходимые вещи и красиво расставить декор.

 📷
📷

6. Гигиенический душ

Это функциональное и удобное дополнение к унитазу применяется во время уборки и в разы повышает качество личной гигиены. Гигиенический душ становится незаменимым помощником в доме с детьми, животными и пожилыми людьми. А еще он стильно дополняет интерьер.

7. Шкаф на постаменте

Чтобы разместить стиральную машину, в шкафу поставили постамент. Скрытая за фасадом техника поддерживает единый стиль оформления без выбивающихся элементов. За машинкой, внутри шкафа, предусмотрели вентиляцию с принудительным включением.

 📷
📷

Сейчас читают: