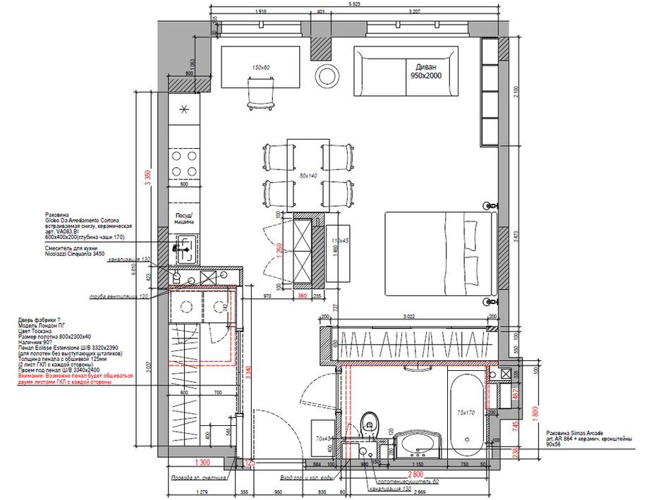
Вкратце В этой квартире живет Олеся Шляхтина, дизайнер и архитектор. При оформлении интерьера Олеся не стала дробить небольшое пространство квартиры на маленькие помещения. В итоге интерьер получился с минимальным количеством дверей, обилием света и воздуха. Достаточно здесь и цвета: дизайнер наполнила квартиру яркой мебелью и декором. К слову, большинство предметов Олеся сделала сама или привезла из разных уголков мира. Подробности При покупке этой квартиры Олеся и не подозревала, что помимо небольшого и уютного пространства ее ждет еще один бонус: панорамный вид на город. Но главная фишка — конструктивный пилон, который удачно делит пространство на четыре зоны: кухню, гостиную, спальню и прихожую. «Я выбирала квартиру с четкой геометрией пространства, так что сложностей с согласованием планировки у меня не возникло. Все основные зоны остались на своих местах. Пространство открытое, но пилон скрывает от глаз кухню, когда находишься в спальне, и наоборот», — говорит Олеся. На отд
Стильная квартира 47 м², которую дизайнер оформила для себя
8 октября 20228 окт 2022
15,7 тыс
2 мин
