Найти в Дзене
Клавдия Князева

Сборы на новую квартиру в деревне.

Привет, друзья. Я никуда не исчезла, у меня все хорошо. Но пока у меня редко бывает вдохновение что-то выкладывать о своей жизни, и тем более о духах. Интерес к духам у меня почти пропал. Как почитаю новости с утра, так и не до духов. Никакого настроения нет делать покупки подобного плана. Хотя на этой неделе муж купил мне дорогущие серьги с натуральными рубинами, и бриллиантами. В комплект к подаренному ранее колечку с рубином. Я поняла, что рубин это мой любимый камень. Я редко пишу в этом месяце, потому что готовлюсь к переезду, муж купил для меня квартиру в деревне, чтобы я занималась живописью на свежем воздухе. На этой неделе я поеду туда, с первой партией мебели и с приятельницей, которая умеет клеить обои. Нужно будет поклеить обои хотя бы на кухне и в коридоре. Обои я приобрела наши, Саратовские, моющиеся, под дерево. В деревенской квартире они будут выглядеть актуально. В спальню я заказала обои Rasch с рыбками, если я успею выкупить этот заказ, будет здорово. Если нет, т

Это вид на маленькую кухню. Главное чтобы на кухне была кофемашина.
Это вид на маленькую кухню. Главное чтобы на кухне была кофемашина.
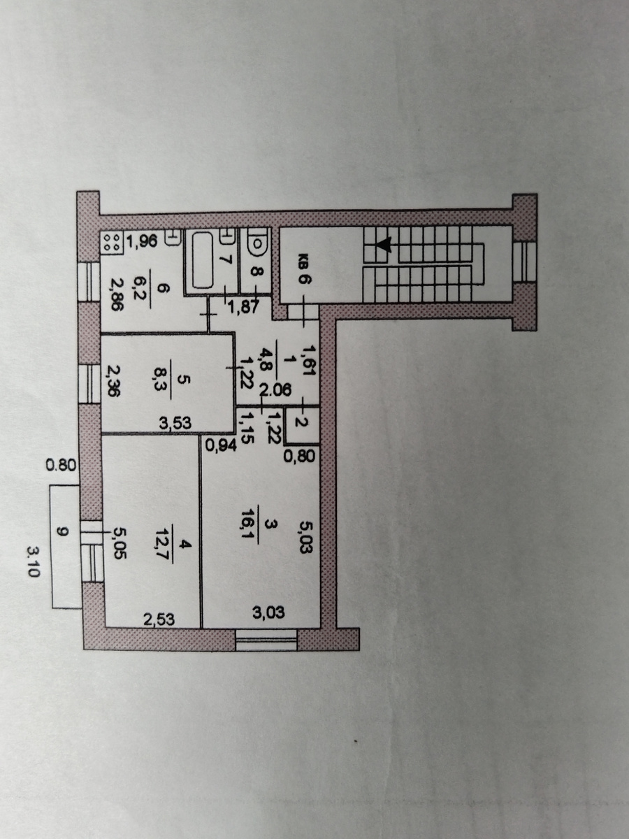
Это из техпаспорта.
Это из техпаспорта.

Привет, друзья. Я никуда не исчезла, у меня все хорошо. Но пока у меня редко бывает вдохновение что-то выкладывать о своей жизни, и тем более о духах. Интерес к духам у меня почти пропал. Как почитаю новости с утра, так и не до духов. Никакого настроения нет делать покупки подобного плана. Хотя на этой неделе муж купил мне дорогущие серьги с натуральными рубинами, и бриллиантами. В комплект к подаренному ранее колечку с рубином. Я поняла, что рубин это мой любимый камень.

Это вид из спальни на лоджию. Я из этой спаленки сделаю конфетку.
Это вид из спальни на лоджию. Я из этой спаленки сделаю конфетку.

Я редко пишу в этом месяце, потому что готовлюсь к переезду, муж купил для меня квартиру в деревне, чтобы я занималась живописью на свежем воздухе. На этой неделе я поеду туда, с первой партией мебели и с приятельницей, которая умеет клеить обои. Нужно будет поклеить обои хотя бы на кухне и в коридоре. Обои я приобрела наши, Саратовские, моющиеся, под дерево. В деревенской квартире они будут выглядеть актуально. В спальню я заказала обои Rasch с рыбками, если я успею выкупить этот заказ, будет здорово. Если нет, то спальня будет оформлена также в какие-нибудь Саратовские обои. Смысл делать дорогой ремонт в студии отсутствует, главное, чтобы было чисто и чтобы все сочеталось между собой. Я выбрала для всех комнат обои желтых, бежевых и коричневатых оттенков. Полы в этой квартире в плачевном состоянии, я купила квартирку после потопа. Муж сказал, чтобы я не тратилась особо на эту квартиру. Тогда залью полы какой-нибудь пропиткой от плесени и застелю полы ДВП, муж обещал сам постелить это все, как мы делали во времена СССР, а сверху куплю ковролин и линолеум. Вообще то место, где я купила квартиру, имеет статус города. Хотя у нашего дома, при осмотре квартиры, паслась милая корова. Городок, в котором находится моя "художественная студия", это небольшое поселение в Челябинской области, Миньяр.

Миньяр в переводе с башкирского языка означает «тысяча обрывов».
Это маленький городок на западе Челябинской области, в самом центре Уральских гор.
Это страница из техпаспорта, моя новая квартира.
Это страница из техпаспорта, моя новая квартира.

Наверное, москвичи и питерцы из таких же соображений называют Уфу "деревней", ну что ж, в этом смысле конечно!

Посмотрите какая красотища. Уже хочется взять краски и писать с изображения.
Посмотрите какая красотища. Уже хочется взять краски и писать с изображения.

Какой восхитительный пейзаж!
Какой восхитительный пейзаж!

Живописный Миньярский мостик
Живописный Миньярский мостик

Романтическая железная дорога проходит сквозь этот маленький горный городок
Романтическая железная дорога проходит сквозь этот маленький горный городок

Невероятная красота зимнего миньярского пейзажа
Невероятная красота зимнего миньярского пейзажа

Люблю Урал
Люблю Урал

Так красиво, как в сказке
Так красиво, как в сказке

Было несколько причин купить квартиру именно там.

Первая причина, это хорошая транспортная доступность. У нас в семье за рулем только дочь, поэтому я должна была купить такую квартиру, чтобы иметь в эту недвижимость свободный доступ на транспорте, из Уфы. В Миньяр ходят электрички, каждый день, и можно легко и спокойно уехать туда на автобусе. Время в дороге из Уфы до Миньяра составляет около двух с половиной часов. Это как раз то время, которое требуется мне для чтения художественной литературы. Дома я никак не могу сесть и насладиться чтением. А по пути в Миньяр и обратно я смогу прочитать целую книгу. И это меня очень радует. Тем более тропинка уже протоптана. В первый заезд я прочитала в электричке целый роман!

Вторая причина покупки недвижимости именно там, это невероятная, колдовская, Аксаковская природа! Сказочно-торжественная, величественная, где сосны упираются в небо и где горы настолько красивы, что у меня как у художника просто нет слов! А как бы моей мамочке понравилось бы это место, если бы она вдруг ожила! Она бы сказала, что одобряет покупку, она так любила красивые пейзажи. Насколько роскошны там ландшафты! Муж хотел, чтобы я купила квартиру где-то рядом с Инзером, в Башкирии, он любит эти края, но я отказалась, потому что туда добираться дольше и сложнее. Я как раз покупала эту квартиру с прицелом пописать горные пейзажи). Даже не представляете, какая я счастливая, что муж купил мне эту квартиру. В субботу я еду за ключами, делаю дубликаты мужу, сыну и дочери, пусть ездят туда на природу, свежим воздухом подышать! Там воздух можно пить. Я когда первый раз приехала в Миньяр, я поняла, что мы в Уфе дышим воздухом очень сомнительного качества.

Айгир, Белорецкий район  Холст, акрил
Айгир, Белорецкий район Холст, акрил

Вид с горы Янгантау в Башкирии  Холст, акрил
Вид с горы Янгантау в Башкирии Холст, акрил

Зима на реке Сим холст, акрил
Зима на реке Сим холст, акрил

Река Большой Кебеж в Сибири, Ермаковский район  Холст, акрил
Река Большой Кебеж в Сибири, Ермаковский район Холст, акрил

Атомный ледокол  Холст, масло
Атомный ледокол Холст, масло
Болото Мерисуо в Карелии  Холст, акрил
Болото Мерисуо в Карелии Холст, акрил

Третья причина, теперь есть куда сбежать на выходные дни. "Мы в деревню поехали", и вместе с супругом сесть на электричку и укатить по грибы и по ягоды. А еще в нашем городке есть горнолыжный комплекс! Так что лыжи будут приобретены, и не только лыжи, я мечтаю об удочках. Ну а пописать на пленэре, это отдельный кайф, который могут понять только коллеги. И самое главное, у меня все есть для этого, я закупилась небывалым количеством красок, при приобретении этой квартиры. Муж спрашивает, купила ли я удочки. Нет, любимый, но обязательно куплю! И даже червяков куплю.

Мой муж- красавчик слева, на работе в порту
Мой муж- красавчик слева, на работе в порту

Четвертая причина: жилье в Челябинской области дешевле, чем в Башкирии, квартиру можно купить в районе миллиона рублей. Это, конечно, очень недорого. Кое-где в Башкирии тоже были недорогие квартиры, но по направлению в сторону Чишмов нет таких захватывающих душу пейзажей, а в сторону Инзера долго добираться. В Агидели были роскошные квартиры с евроремонтом. Можно бы было плюнуть на эти пейзажи, но я не стала этого делать, мне было важно, чтобы было живописно вокруг, чтобы мне нравилась эта прекрасная земля. Были недорогие квартиры в ЗАТО Межгорье, это город закрытого типа, но я подумала, что туда, из-за статуса секретности, не приедут знакомые художники пописать картины, да и дорога туда по времени будет дольше в два раза, а еще там может из леса выскочить медведь... Если пойти в те края с этюдником. Как-то страшновато. Я решила не рисковать, риск это не мое. Я так поняла, что Миньяр был мне по судьбе, лучше местечка для своих творческих планов я бы не нашла. В Миньяре даже пункты доставки есть, и Озон, И Вайлдберриз, и Яндекс-Маркет, вот только Яндекс-такси там нет, чему я была очень удивлена. Поселение не маленькое, из одного конца поселения в другой я дошла за полтора часа, это когда возвращалась домой в Уфу. Мне нужно было добраться до станции к семи утра, а яндекс-такси в этом поселении отсутствует. Я так поняла, что жители этого городка в булочную на такси не ездят. Ну что ж, свои плюсы в этом есть, буду ходить пешком по Миньяру и учитывать это. Мне сказали в отеле, что нужно договариваться с частниками, чтобы они подвезли, и я решила не заморачиваться с поиском частных такси. Я спокойно рассчитала время, которое требуется пройти до станции, встала в пять утра и прошлась, заодно фотографируя окрестности.

Я столько дифирамбов написала в честь уральских пейзажей, а фото остались в старом телефоне. Поеду в следующий раз, за ключами, обязательно сфотографирую

Пятая причина, свежий воздух. Божественный воздух.

Вот, кстати, кто хочет купить недорогую недвижимость в России, рекомендую челябинскую область.

Конечно, такие маленькие захолустные городишки придутся не всем по нраву, нужно иметь систему ценностей, похожую на мою, чтобы испытывать радость, глядя на окружающую природу. Потому что некоторым людям вообще неинтересны эти пейзажи, им нужны удобства цивилизации, а в Миньяре всего по минимуму. Никаких кафе и ресторанов, небольшое количество магазинов, пойти особо некуда, если только в лес по грибы. Вроде бы там есть один спортивный клуб. И то хорошо.

В Миньяре есть не только частный сектор, там есть многоэтажки, вот там я и купила квартиру, потому что муж очень просил меня не связываться с частным домом. Элементарно чтобы снег вокруг дома каждый день зимой не чистить, в частном доме работы всегда много, а нам эта квартира нужна для отдыха, а не для работы. Лыжи куплю в этом году.

Пока я выбирала квартиру, я посетила местное кафе. Там оно одно-единственное, и находится это кафе при гостинице, неподалеку от горнолыжного курорта. На выбор мне были предложены следующие блюда: борщ, щи, картошка жареная, пюре, сосиски, яичница. Жареную картошку худеющим есть не рекомендуется. Я выбрала яичницу, с сосисками, это беспроигрышный вариант подкрепиться, я вообще требовательна к чужим супам. Я не каждый суп буду есть. Яичница везде одинакова, а сосиски повсюду отвратительны, так что ожидания сошлись с реальностью. На рецепшене в гостинице девушка сказала мне, что в Миньярскую гостиницу каждый год приезжают организованные группы художников, из различных регионов, они любят это место. Еще бы!

Фотографий квартиры пока нет, я при осмотре не сделала фото, так как думала, что возьму другую квартиру, но в итоге купила эту, и оно к лучшему. Та недвижимость, которую я изначально планировала приобрести, была с ремонтом, но двухкомнатная. Мне не хотелось на тот момент делать ремонт, но сегодня я думаю, как хорошо, что я купила трехкомнатную квартиру.

Уфимская  квартира, мамина комната в процессе ремонта
Уфимская квартира, мамина комната в процессе ремонта

Была у меня мысль переписать уфимскую квартиру на дочку и на сына, потом я подумала, а как же муж, надо на троих писать. А сегодня решила, что пока оставлю все квартиры как есть на себе, так как я дама огнеупорная- закаленная, и документами в семье занимаюсь обыкновенно я, так повелось. Хотя тот вариант, на троих, я все еще рассматриваю.

Если бы не чудачества сына, я бы уже написала уфимскую квартиру на них троих, на сына, на мужа и на дочь. Картина Рембрандта, "Возвращение блудного сына" маслом, сын вернулся домой. При том, что оплатил жилье в СПБ вперед за пару месяцев.

Он вдруг ни с того ни с сего вернулся из Питера, сказал, что переедет туда по весне. Хорошо, буду ждать весну, но было бы лучше, если бы он обосновался в Питере, это город возможностей для молодежи. Теперь не знаю, можно ли ему доверить уфимскую квартиру или нет, при таких эмоциональных качелях. Но и обделять сына я тоже не буду. Если писать, то на всех троих.

Дочка на днях вернулась из Адлера.

Они уезжали в Адлер на несколько дней. Настя отдыхала в Адлере с женихом Саней, с подругой -тезкой Настенькой, с Настенькиной мамой Наташей и с Наташиными внуками, такая большая в Адлере компания собралась.

Саня и Настя оставили мне свою кошку Мусю. Муся, чтобы вы понимали, это пятая кошка в моей уфимской квартире. Четыре родных кота это тяжело, но пять котов это почти невыносимо, еще и в момент перевозки мебели и коробок, хотя Муся оказалась ласковой, хоть и пугливой кошечкой. Дети, заберите Мусю домой. И прихватите кого-нибудь из моих котов, в пару к Мусеньке))).

С вами была Клавдия Князева,
До новых встреч на моем канале!