Добавить в корзинуПозвонить
Найти в Дзене
INMYROOM

Как бюджетно обновили уставшую двушку 38 м² в брежневке (фото до и после)

Из скучного типового ремонта — в уютный интерьер за 700 тысяч рублей Последний ремонт в этой московской двушке был 16 лет назад. Перед дизайнером Ольгой Пушкаревой стояла задача привести жилье в порядок с минимальными затратами и без перепланировки: обновить отделку стен, линолеум на кухне, заменить некоторую сантехнику, купить новую мебель и технику. В квартире есть отдельная кухня, гостиная, спальня, прихожая с гардеробной и совмещенный санузел. Главная гордость — паркет советских времен, который сохранили и привели в порядок. Место: г. Москва
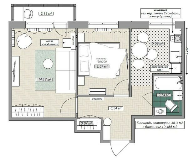
Метраж: 38,3 м²
Количество комнат: 2
Высота потолка: 2,5 м
Санузел: 1
Дизайн: Ольга Пушкарева
Фото: Дмитриева Ольга
Бюджет: 790 тыс. рублей Кухня очень маленькая, перегружать и без того небольшое пространство не стали. Модульный гарнитур расположили вдоль одной стены, предусмотрев всю необходимую бытовую технику: компактный холодильник с морозильной камерой в стиле ретро, СВЧ, духовой шкаф, варочную панель на две конфорки, вытяжку. Квартиру пла
Оглавление

Из скучного типового ремонта — в уютный интерьер за 700 тысяч рублей

Последний ремонт в этой московской двушке был 16 лет назад. Перед дизайнером Ольгой Пушкаревой стояла задача привести жилье в порядок с минимальными затратами и без перепланировки: обновить отделку стен, линолеум на кухне, заменить некоторую сантехнику, купить новую мебель и технику. В квартире есть отдельная кухня, гостиная, спальня, прихожая с гардеробной и совмещенный санузел. Главная гордость — паркет советских времен, который сохранили и привели в порядок.

Место: г. Москва
Метраж: 38,3 м²
Количество комнат: 2
Высота потолка: 2,5 м
Санузел: 1
Дизайн: Ольга Пушкарева
Фото: Дмитриева Ольга
Бюджет: 790 тыс. рублей

 📷Планировочное решение
📷Планировочное решение

Кухня после ремонта

Кухня очень маленькая, перегружать и без того небольшое пространство не стали. Модульный гарнитур расположили вдоль одной стены, предусмотрев всю необходимую бытовую технику: компактный холодильник с морозильной камерой в стиле ретро, СВЧ, духовой шкаф, варочную панель на две конфорки, вытяжку. Квартиру планируют сдавать в посуточную аренду, этого будет достаточно для комфортного размещения гостей на несколько дней.

 📷
📷
 📷
📷

Гостиная после ремонта

В жилых помещениях сохранили натуральный дубовый паркет советских времен: отциклевали его и покрыли бесцветным матовым лаком. Стены в гостиной оклеили флизелиновыми бежевыми обоями. На их фоне ярким акцентом стал синий мягкий диван. Он легко трансформируется в комфортное спальное место. Рядом с диваном поставили холодильник, выполняющий функцию мини-бара.

 📷
📷

В комнате есть большой шкаф для хранения, ТВ-тумба, кресло-стул в синей обивке, которую намеренно подобрали в тон дивана. Внимание привлекает цветной ковер, выполненный из турецкого хлопка. Он легок в уходе, его можно стирать в машинке. Вдоль стены, где располагается зона ТВ, под потолком пустили подсветку. Световая линия создает мягкое вечернее освещение, которое придает помещению дополнительный комфорт.

 📷
📷
 📷
📷
 📷
📷

Спальня после ремонта

Для спальни выбрали обои пыльно-зеленого оттенка. Одну стену выделили акцентным панно с тропическим сюжетом — это виниловые фотообои на флизелиновой основе. Вдоль этой стены под потолком пустили контурную подсветку. Площадь спальни небольшая, поэтому здесь только кровать с мягким изголовьем и пара прикроватных тумб. Тумбы намеренно выбрали на высоких тонких опорах — они смотрятся легко, изящно и облегчают процесс уборки. Бледно-розовый текстиль не акцентирует на себе внимание, не раздражает и делает комнату уютнее.

 📷
📷
 📷
📷
 📷
📷
 📷
📷

Санузел после ремонта

Отделку санузла не меняли, так как плитка и швы были в идеальном состоянии. Повесили новую штангу с тканевой шторкой, установили новую раковину с пьедесталом, зеркальный шкаф с подсветкой, а на пол постелили акцентный коврик из хлопка.

 📷
📷

Важно заранее позаботиться о системе защиты от потопа в квартире. Разгерметизация водопроводных труб часто становится причиной финансовых издержек. Виновники ремонтируют свою квартиру и оплачивают нанесенный соседям ущерб. Избежать подобных проблем возможно с системой защиты от протечек воды.

 📷
📷

Прихожая после ремонта

Входная зона оформлена в таком же стиле, как и гостиная: бежевые обои, белые фасады системы хранения, синий акцент. В прихожей есть подвесная обувница, зеркало и открытая вешалка для повседневной одежды и сумок. Фасады гардеробной оформили белыми жалюзийными дверцами. Они придают помещению легкость и обеспечивают хорошую циркуляцию воздуха внутри шкафа. Завершающим штрихом стал акцентный синий пуф, который по цвету перекликается с мягкой мебелью в гостиной.

 📷
📷
 📷
📷

Смета проекта

2,5 месяца ремонт (включая проект):

Материалы — 199 503 руб.
Мебель — 185 300 руб. 
Техника — 112 110 руб.
Свет — 15 326 руб. (+ 10 000 руб. за диодную подсветку потолка в спальне и гостиной) 
Декор/текстиль — 29 244 руб. 
Вывоз мусора — 17 000 руб. 
Доставки — 9 924 руб.

Работы — 323 650 руб.

ИТОГО: 791 945 руб.

Фото квартиры До

 📷
📷
 📷
📷
 📷
📷
 📷
📷
 📷
📷
 📷
📷
 📷
📷
 📷
📷
 📷
📷

Бренды, представленные в проекте

Кухня

Отделка: обои, Erismann Anny; фартук, Kerama Marazzi
Напольное покрытие: керамогранит, LB Ceramics Play
Мебель: гарнитур, Vivat; стол, Woodstyle
Техника: холодильник, TESLER

Гостиная

Отделка: обои, Erismann Anny
Напольное покрытие: паркет советских времен
Мебель: диван, Divanoff; ТВ-тумба, Puzzlemebel

Сейчас читают: