Найти в Дзене
DARIA ELNIKOVA INTERIORS

Фототур: пентхаус 140 м² в Москве

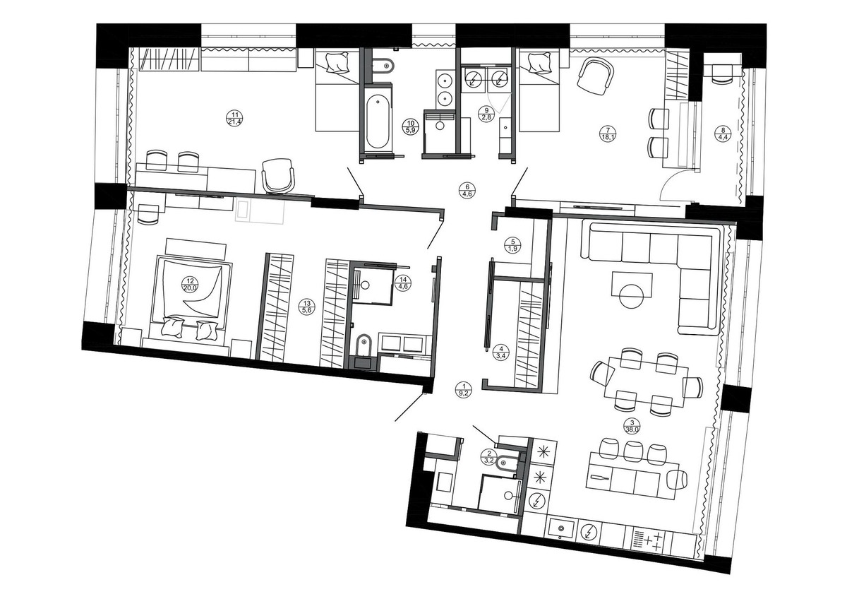
Эта квартира особенная: просторная, светлая, она расположена на верхнем этаже жилого комплекса, с потрясающими видами на Москву. Часть фасадных стен квартиры представляли собой дугу, потому как с одной стороны фасад слегка закруглен. Некоторые несущие перегородки были тоже под небольшим углом, раскрывающиеся словно лучи к фасаду.
Конечно, это создало некие сложности, но благодаря дизайнерским и архитектурным решениям в интерьере этого абсолютно не видно.
Мы не пытались скрыть сложности линий, мы делали функциональный и эргономичный интерьер, вписанный в заданную архитектуру. Заказчики этой квартиры молодая семья с дочкой-первоклассницей, здесь в скором времени появится еще один малыш, а во время ремонта у дочки появился мохнатый друг – спаниель Майкл. Квартира от застройщика была куплена без отделки, а это наш любимый вариант – ведь можно сделать все или почти, конечно же в рамках действующих норм и правил.
По помещениям важно было выделить: общую гардеробную, кладовую, постирочную,

Эта квартира особенная: просторная, светлая, она расположена на верхнем этаже жилого комплекса, с потрясающими видами на Москву. Часть фасадных стен квартиры представляли собой дугу, потому как с одной стороны фасад слегка закруглен. Некоторые несущие перегородки были тоже под небольшим углом, раскрывающиеся словно лучи к фасаду.
Конечно, это создало некие сложности, но благодаря дизайнерским и архитектурным решениям в интерьере этого абсолютно не видно.

Мы не пытались скрыть сложности линий, мы делали функциональный и эргономичный интерьер, вписанный в заданную архитектуру.

-2

Заказчики этой квартиры молодая семья с дочкой-первоклассницей, здесь в скором времени появится еще один малыш, а во время ремонта у дочки появился мохнатый друг – спаниель Майкл.

Квартира от застройщика была куплена без отделки, а это наш любимый вариант – ведь можно сделать все или почти, конечно же в рамках действующих норм и правил.

По помещениям важно было выделить: общую гардеробную, кладовую, постирочную, гостевой санузел, кухню-гостиную, мастер-спальню со своей гардеробной и санузлом, комнату для дочки, комнату для будущего малыша, детский санузел и мини-кабинет на лоджии. Когда пожелания и возможности совпадают – получается наилучший результат, именно поэтому нам удалось гармонично разместить эти помещения.

Стилистика квартиры была выбрана современная, основное цветовое решение светлое, теплая и нейтральная цветовая гамма. Основные цвета: бежевый, серый. В качестве акцентов: синий, золотой, коричневый. В комнате дочки – персиковый. Основная отделка стен – краска, в качестве декора: панели из керамики, мягкие панели, декоративная штукатурка, обои. На полу паркетная доска и керамогранит.

Кухня-гостиная, S=38 м²

Просторная и комфортная гостиная, объединенная с кухней и обеденной зоной, спроектирована с учетом всех пожеланий заказчиков. Это не только помещение для отдыха и расслабления после трудового дня, это пространство для общения, встреч с друзьями и близкими. В результате получился функциональный и элегантный интерьер, который идеально подходит стилю и образу жизни семьи.

Вид на столовую зону и кухню с островом.
Вид на столовую зону и кухню с островом.
Столовая группа на 6 персон и далее зона отдыха.
Столовая группа на 6 персон и далее зона отдыха.
Просторная кухня-гостиная: вид от кухни на столовую зону, место отдыха и хранение с зоной ТВ.
Просторная кухня-гостиная: вид от кухни на столовую зону, место отдыха и хранение с зоной ТВ.
Кухня с островом с фасадами из алюминия.
Кухня с островом с фасадами из алюминия.
Столовая группа, зона ТВ и мягкая зона отдыха в гостиной.
Столовая группа, зона ТВ и мягкая зона отдыха в гостиной.
Отделка стены за диваном - керамика под мрамор.
Отделка стены за диваном - керамика под мрамор.
ТВ-зона с хранением, отделка МДФ в эмали и натуральном шпоне.
ТВ-зона с хранением, отделка МДФ в эмали и натуральном шпоне.
Вид на столовую зону и кухню с островом. Справа хранение в ТВ-зоне и выход в прихожую.
Вид на столовую зону и кухню с островом. Справа хранение в ТВ-зоне и выход в прихожую.
Стол с керамической поверхностью, стильные культовые стулья, правильное освещение за едой – всё это создает позитивную и приятную атмосферу в доме.
Стол с керамической поверхностью, стильные культовые стулья, правильное освещение за едой – всё это создает позитивную и приятную атмосферу в доме.
Кухня с островом на 4 посадочных места, удобно для завтраков и быстрых перекусов.
Кухня с островом на 4 посадочных места, удобно для завтраков и быстрых перекусов.
Фасады шкафов кухни в эмали, средний ряд шкафов под алюминий.
Фасады шкафов кухни в эмали, средний ряд шкафов под алюминий.
Отделка кухни белый матовый лак, фартук и столешницы в кварце под мрамор.
Отделка кухни белый матовый лак, фартук и столешницы в кварце под мрамор.
Архитектор и автор проекта Дарья Ельникова.
Архитектор и автор проекта Дарья Ельникова.
Интерьер обеденной группы гармоничен, выверен и идеально вписан в пространство объединенной кухни-гостиной.
Интерьер обеденной группы гармоничен, выверен и идеально вписан в пространство объединенной кухни-гостиной.
Вид на выход из кухни-гостиной в прихожую.
Вид на выход из кухни-гостиной в прихожую.

Прихожая и коридор, S=9,2 м²

В прихожей мы разместили только необходимую мебель: банкетку с хранением для обуви, мягкими панелями и навесным шкафчиком сверху.

Вид на входную группу, отделка стен краска, на полу паркетная доска.
Вид на входную группу, отделка стен краска, на полу паркетная доска.

Напротив зеркальной стены от пола до потолка установили открытый стеллаж с полками с подсветкой для того, чтобы выровнять зону коридора и добавить декоративный элемент.

Слева зеркальная стена, справа стеллаж с открытыми полками с подсветкой.
Слева зеркальная стена, справа стеллаж с открытыми полками с подсветкой.
Очень красивый стеллаж при входе в кухню-гостиную.
Очень красивый стеллаж при входе в кухню-гостиную.

Основное хранение вещей подразумевается в гардеробной, расположенной далее по коридору.

Гардеробная площадью 3,4м² размещена за сдвижной дверью в пенал.
Гардеробная площадью 3,4м² размещена за сдвижной дверью в пенал.
Наполнение гардеробной - открытые и закрытые полки для одежды и обуви, а также штанги-вешала и полки для коробок/чемоданов для всей семьи.
Наполнение гардеробной - открытые и закрытые полки для одежды и обуви, а также штанги-вешала и полки для коробок/чемоданов для всей семьи.
Отделка наполнения гардеробной МДФ в шпоне ореха, все шкафы с подсветкой, удобно и красиво.
Отделка наполнения гардеробной МДФ в шпоне ореха, все шкафы с подсветкой, удобно и красиво.

Мастер-спальня, S=20 м²

Спальня с собственной гардеробной и санузлом объединены в приватную мастер-зону, где всё подчинено главной цели – комфорту и уюту заказчиков. Комната меблирована довольно минималистично: кровать под матрас 180х200 см, прикроватные тумбы, мягкая прикроватная банкетка, макияжный столик и комод.

Отделка стен декоративная штукатурка, на полу паркетная доска.
Отделка стен декоративная штукатурка, на полу паркетная доска.
Тумба прикроватная подвесная выполнена в шпоне американского ореха.
Тумба прикроватная подвесная выполнена в шпоне американского ореха.
Консольный макияжный столик в шпоне ореха, зеркало с подсветкой и комод в эмали.
Консольный макияжный столик в шпоне ореха, зеркало с подсветкой и комод в эмали.
Кровать с мягким изголовьем и подъемным механизмом от DITRE ITALIA.
Кровать с мягким изголовьем и подъемным механизмом от DITRE ITALIA.
Мягкая прикроватная банкетка от DITRE ITALIA.
Мягкая прикроватная банкетка от DITRE ITALIA.
Столик для макияжа и зеркало с подсветкой плюс удобное кресло = любимое место любой женщины;))) Может использоваться в качестве рабочего места.
Столик для макияжа и зеркало с подсветкой плюс удобное кресло = любимое место любой женщины;))) Может использоваться в качестве рабочего места.
Вид на выход из мастер-спальни: справа за стеной гардероб и далее мастер-санузел.
Вид на выход из мастер-спальни: справа за стеной гардероб и далее мастер-санузел.

Мастер-санузел, S=4,6 м²

Отделка санузла выполнена с использованием керамогранита под мрамор и природный камень, в качестве эстетичных акцентов золотые матовые смесители для раковины и душа.

Тумба под раковину изготовлена из МДФ в шпоне, столешница керамогранит.
Тумба под раковину изготовлена из МДФ в шпоне, столешница керамогранит.
Шкафчик над инсталляцией и полочки слева от раковины в отделке из шпона.
Шкафчик над инсталляцией и полочки слева от раковины в отделке из шпона.
Отделка стен и пола керамогранит и плитка керамическая светлых природных оттенков, акцентная стена - под мрамор.
Отделка стен и пола керамогранит и плитка керамическая светлых природных оттенков, акцентная стена - под мрамор.
Дополнительное хранение в отделке из шпона американского ореха.
Дополнительное хранение в отделке из шпона американского ореха.

Детская комната для девочки, S=21,4 м²

Дизайн комнаты для дочки заказчиков выполнен в мягких пастельных оттенках, отделка стен декоративная штукатурка, в качестве декора на стенах используется светлое дерево и рейки; на полу паркетная доска. Мебель изготовлена на заказ по эскизам архитектора Дарьи Ельниковой. Интерьер можно будет легко изменить по мере взросления девочки. А пока что здесь уютная и комфортная детская территория.

Кровать под матрас 100х200 см с мягким изголовьем, подъемным механизмом и контейнером для белья изготовлена на заказ.
Кровать под матрас 100х200 см с мягким изголовьем, подъемным механизмом и контейнером для белья изготовлена на заказ.
Мягкий подоконник с хранением выполнен из МДФ в эмали, тумба прикроватная в шпоне.
Мягкий подоконник с хранением выполнен из МДФ в эмали, тумба прикроватная в шпоне.
Вид на хранение и рабочее место, материалы отделки - МДФ в эмали и в шпоне.
Вид на хранение и рабочее место, материалы отделки - МДФ в эмали и в шпоне.
Рабочее место достаточно просторно и удобно для занятий с репетитором. Или с подружкой)
Рабочее место достаточно просторно и удобно для занятий с репетитором. Или с подружкой)

Детская для малыша, S=18 м²

Интерьер этой просторной комнаты сделан на вырост, при этом он подходит и для малыша, и для мамы. Комната может быть также использована в качестве гостевой или как кабинет. Основными оттенками в цветовой гамме выступают мягкие пастельные тона. Здесь предусмотрено спальное место, удобный рабочий стол-подоконник с эргономичными креслами. В качестве хранения – шкаф, полки и довольно вместительный стеллаж в зоне ТВ.

Универсальность цветового решения делает детскую одинаково подходящей как для мальчика, так и для девочки.
Универсальность цветового решения делает детскую одинаково подходящей как для мальчика, так и для девочки.
Место для сна и отдыха - кровать с высокими мягкими панелями за изголовьем, рядом полочки для хранения и стеллаж, а также удобное кресло.
Место для сна и отдыха - кровать с высокими мягкими панелями за изголовьем, рядом полочки для хранения и стеллаж, а также удобное кресло.
Вид на рабочее место и зону ТВ с просторным хранением.
Вид на рабочее место и зону ТВ с просторным хранением.
Из комнаты есть выход на тёплый балкон площадью 4,4 м² - здесь размещён небольшой кабинет с панорамным остеклением и видом на Москву.
Из комнаты есть выход на тёплый балкон площадью 4,4 м² - здесь размещён небольшой кабинет с панорамным остеклением и видом на Москву.

Детский санузел, S=5,9 м²

В этом санузле есть окно, что конечно же всегда очень красиво смотрится в интерьере и в качестве бонуса дополняет детский санузел естественным освещением, а шторы фисташкового оттенка придают уюта. Здесь мы разместили и ванную, и душевую. Основное хранение организовано в тумбе с двумя раковинами и в шкафчике над инсталляцией.

Возле окна размещена подвесная тумба с двумя раковинами.
Возле окна размещена подвесная тумба с двумя раковинами.
Отделка стен и пола керамогранит.
Отделка стен и пола керамогранит.
Хранение над инсталляцией - открытая полка и шкафчик.
Хранение над инсталляцией - открытая полка и шкафчик.
Вид от входа с санузел.
Вид от входа с санузел.

Гостевой санузел с душем, S=3,2 м²

Гостевой санузел выполнен в более темной цветовой гамме, расположен прямо при входе в квартиру. Хранение организовано в тумбе под раковиной и над инсталляцией.

Тумба в отделке из шпона, столешница из керамогранита с интегрированной раковиной.
Тумба в отделке из шпона, столешница из керамогранита с интегрированной раковиной.
Отделка стен керамогранит, в душевой цвет тёмный бетон, за инсталляцией - медный. Смесители и аксессуары черные матовые.
Отделка стен керамогранит, в душевой цвет тёмный бетон, за инсталляцией - медный. Смесители и аксессуары черные матовые.

Архитектор и автор проекта DARIA ELNIKOVA

Проект реализован студией архитектуры и дизайна DARIA ELNIKOVA INTERIORS

Фото из статьи можно сравнить с 3d-визуализацией :)

Разработаем для вас индивидуальный дизайн-проект, пишите нам ВКОНТАКТЕ, звоните по тел. +7 (995) 115-23-20 или оставляйте запрос на сайте Еlnikova.com через форму обратной связи.