Найти в Дзене
DARIA ELNIKOVA INTERIORS

Пентхаус 140 м² в Москве

Эта квартира особенная: просторная, светлая, она расположена на верхнем этаже жилого комплекса, с потрясающими видами на Москву. Часть фасадных стен квартиры имели форму дуги, потому как с одной стороны фасад слегка закруглен. Некоторые несущие перегородки были тоже под небольшим углом, раскрывающиеся словно лучи, к фасаду. Конечно это создало некие сложности, но благодаря дизайнерским и архитектурным решениям в интерьере этого абсолютно не видно. Мы не старались скрыть сложности линий, мы создавали функциональный и эргономичный интерьер, вписывая его в заданную архитектуру. Заказчики этой квартиры молодая семья с дочкой-первоклассницей, здесь в скором времени появится еще один малыш, а во время ремонта у дочки завелся мохнатый друг – собака Дэни. Квартира от застройщика была куплена без отделки, а это наш любимый вариант – ведь можно сделать все или почти, конечно же в рамках действующих норм и правил. По помещениям важно было выделить: общую гардеробную, кладовую, постирочную, гос

Эта квартира особенная: просторная, светлая, она расположена на верхнем этаже жилого комплекса, с потрясающими видами на Москву. Часть фасадных стен квартиры имели форму дуги, потому как с одной стороны фасад слегка закруглен. Некоторые несущие перегородки были тоже под небольшим углом, раскрывающиеся словно лучи, к фасаду. Конечно это создало некие сложности, но благодаря дизайнерским и архитектурным решениям в интерьере этого абсолютно не видно.

Мы не старались скрыть сложности линий, мы создавали функциональный и эргономичный интерьер, вписывая его в заданную архитектуру.

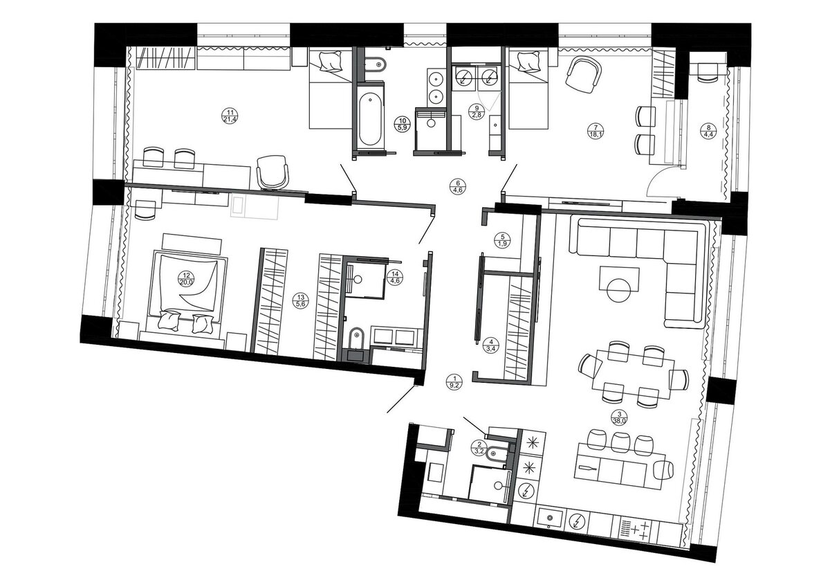
Планировочное решение
Планировочное решение

Заказчики этой квартиры молодая семья с дочкой-первоклассницей, здесь в скором времени появится еще один малыш, а во время ремонта у дочки завелся мохнатый друг – собака Дэни.

Квартира от застройщика была куплена без отделки, а это наш любимый вариант – ведь можно сделать все или почти, конечно же в рамках действующих норм и правил.

По помещениям важно было выделить: общую гардеробную, кладовую, постирочную, гостевой санузел, кухню-гостиную, мастер-спальню со своей гардеробной и санузлом, комнату для дочки, комнату для будущего малыша, детский санузел и мини-кабинет на лоджии. Когда пожелания и возможности совпадают – получается наилучший результат, именно поэтому нам удалось гармонично разместить эти помещения.

Стилистика квартиры была выбрана современная, основное цветовое решение светлое, теплая и нейтральная цветовая гамма. Основные цвета: бежевый, серый. В качестве акцентов: синий, золотой, коричневый. В комнате дочки – персиковый. Основная отделка стен – краска, в качестве декора: панели из керамики, мягкие панели, декоративная штукатурка, обои. На полу паркетная доска и керамогранит.

Кухня-гостиная-прихожая.

Просторную гостиную-кухню можно с легкостью разделить по функциональным зонам с общим стилевым характером. Ровные линии, светлые тона, натуральные материалы и оригинальные дизайнерские решения создают приятную гармонию в этом современном жилье.

Кухня с островом с фасадами из алюминия.
Кухня с островом с фасадами из алюминия.
Мягкая зона отдыха в гостиной. Отделка стены за диваном - керамика под мрамор.
Мягкая зона отдыха в гостиной. Отделка стены за диваном - керамика под мрамор.
Зона ТВ с большим стеллажом для хранения.
Зона ТВ с большим стеллажом для хранения.
Обеденная группа на шесть персон и кухня с островом.
Обеденная группа на шесть персон и кухня с островом.
Вид на столовую зону и кухню.
Вид на столовую зону и кухню.
Отделка фартука и столешниц кухни и острова - кварц.
Отделка фартука и столешниц кухни и острова - кварц.
Вид на столовую зону.
Вид на столовую зону.
Кухня с островом.
Кухня с островом.
Вид из гостиной на входную зону.
Вид из гостиной на входную зону.

В прихожей мы разместили только необходимую мебель: банкетку с хранением для обуви, мягкими панелями и навесным шкафчиком сверху. Напротив зеркальной стены от пола до потолка установили открытый стеллаж с полками с подсветкой для того, чтобы выровнять зону коридора и добавить декоративный элемент. Основное хранение вещей подразумевается в гардеробной, расположенной далее по коридору.

Банкетка с хранением, мягкие панели и антресоль.
Банкетка с хранением, мягкие панели и антресоль.

Зеркальная стена в прихожей.
Зеркальная стена в прихожей.
Вид на входную зону.
Вид на входную зону.

Коридор, отделка стен краска, на полу паркетная доска.
Коридор, отделка стен краска, на полу паркетная доска.

Гостевой санузел.

Гостевой санузел выполнен в более темной цветовой гамме, расположен прямо при входе в квартиру. Хранение организовано в тумбе под раковиной и над инсталляцией.

Отделка стен и пола керамогранит
Отделка стен и пола керамогранит
Подвесная тумба с интегрированной раковиной и подсветкой снизу.
Подвесная тумба с интегрированной раковиной и подсветкой снизу.
Над раковиной зеркало с подсветкой по периметру. Около зеркала скрытое хранение в нише.
Над раковиной зеркало с подсветкой по периметру. Около зеркала скрытое хранение в нише.
Гостевой санузел, вид сверху.
Гостевой санузел, вид сверху.

Мастер-спальня.

Спальня с собственной гардеробной и санузлом объединены в приватную мастер-зону, где всё подчинено главной цели – комфорту и уюту заказчиков. Комната меблирована довольно минималистично: кровать под матрас 180х200 см, прикроватные тумбы, банкетка, макияжный стол и комод.

-20
Вид на спальню от гардеробной.
Вид на спальню от гардеробной.
Вид от окна на вход в комнату.
Вид от окна на вход в комнату.
-23
Подвесные прикроватные тумбы в отделке из натурального шпона.
Подвесные прикроватные тумбы в отделке из натурального шпона.
Консольный столик может использоваться как макияжный или в качестве рабочего места.
Консольный столик может использоваться как макияжный или в качестве рабочего места.
Вид на выход из спальни, справа гардеробная с зеркалом напротив и далее дверь в санузел.
Вид на выход из спальни, справа гардеробная с зеркалом напротив и далее дверь в санузел.

Мастер-санузел.

Отделка санузла решена в светлых тонах с использованием керамогранита под мрамор и природный камень, в качестве эстетичных акцентов золотые матовые смесители для раковины и душа.

Подвесная тумба с двумя раковинами, полочки и шкафчик над инсталляцией в шпоне.
Подвесная тумба с двумя раковинами, полочки и шкафчик над инсталляцией в шпоне.
-28
Стены - керамогранит под мрамор.
Стены - керамогранит под мрамор.
-30
-31

Детская комната.

Дизайн комнаты для дочки заказчиков выполнен в мягких пастельных оттенках, в качестве декора на стенах используется светлое дерево и мрамор. Интерьер можно будет легко изменить по мере взросления девочки. А пока что здесь уютная и комфортная детская территория.

Зона ТВ и рабочее место.
Зона ТВ и рабочее место.
Просторный платяной шкаф, «мягкий подоконник» и кровать
Просторный платяной шкаф, «мягкий подоконник» и кровать
Зона ТВ, далее шкаф с хранением и рабочее место
Зона ТВ, далее шкаф с хранением и рабочее место
Мягкий подоконник и спальное место.
Мягкий подоконник и спальное место.
Рабочее место.
Рабочее место.
Вид на детскую от окна.
Вид на детскую от окна.

Детский санузел

В этом санузле есть окно, что конечно же всегда очень красиво смотрится в интерьере и в качестве бонуса дополняет детский санузел естественным освещением, а шторы фисташкового оттенка придают уюта. Здесь мы разместили и ванную, и душевую. Основное хранение организовано в тумбе с двумя раковинами и в шкафчике над инсталляцией.

Вид на окно от входа в санузел.
Вид на окно от входа в санузел.
Подвесная тумба с двумя раковинами и подсветкой снизу.
Подвесная тумба с двумя раковинами и подсветкой снизу.
Отделка стен и пола керамогранит.
Отделка стен и пола керамогранит.
Отделка стены за ванной керамогранит под мрамор.
Отделка стены за ванной керамогранит под мрамор.
Вид на санузел от окна.
Вид на санузел от окна.

Детская для малыша.

Интерьер этой просторной комнаты сделан на вырост, при этом он подходит и для малыша и для мамы. Цветовая гамма комнаты решена в пастельных бежевых тонах.

Отделка стен краска и обои возле кровати.
Отделка стен краска и обои возле кровати.
Вид на рабочее место.
Вид на рабочее место.
Зона ТВ с вместительным хранением.
Зона ТВ с вместительным хранением.
Кровать с мягким изголовьем и дополнительным хранением в зоне изголовья.
Кровать с мягким изголовьем и дополнительным хранением в зоне изголовья.
Рабочее место для двоих.
Рабочее место для двоих.

Проект создан командой DARIA ELNIKOVA INTERIORS 💫

Архитектор и автор проекта DARIA ELNIKOVA

Подписывайтесь на наш канал, мы обязательно покажем фото реализованного интерьера. 🧡

Заказать дизайн-проект можно по тел. +7(995)115-23-20 и на сайте Еlnikova.com через форму обратной связи.