Найти в Дзене

Конфликты с дизайнером интерьера. КАЧЕСТВО ПРОЕКТА.

Начиная работать и выбирая себе дизайнера интерьера, прежде всего нужно основываться на портфолио дизайнера, его цене, а также рекомендациях. Если вы подошли серьезно к этому вопросу, то все равно, у вас будут сомнения до конца ремонта... Особенно если вы не специалист и если не делали ранее проект. «Звоночки», что все-таки вы ошиблись и перед вами непрофессионал: ⚠ Вы долго и упорно обсуждаете проект, но вас не слышат. Например, вы просите душ, вам предлагают ванну, вы хотите кровать 180 - вам ставят диван-трансформер. И так не один раз! … Скорее всего у дизайнера много проектов и просто тяжело сосредоточится, именно на ваших желаниях. Лечение тут одно: писать и фиксировать замечания, заполнять ТЗ (у дизайнера обязана быть анкета, для заполнения заказчиком), чтобы было время вернуться и посмотреть в заметках. ⚠ Про снос несущих стен-говорить не буду... тут и так все понятно.. Это скорее из страшилок 😈, не встречала такого. А вот что точно бывает: ради красивой и креативной подачи
  • Как определить, что дизайн проект, который вы заказали- хороший и стоит своих денег?

Начиная работать и выбирая себе дизайнера интерьера, прежде всего нужно основываться на портфолио дизайнера, его цене, а также рекомендациях. Если вы подошли серьезно к этому вопросу, то все равно, у вас будут сомнения до конца ремонта... Особенно если вы не специалист и если не делали ранее проект.

И помните : главное не нарисовать, главное -реализовать
И помните : главное не нарисовать, главное -реализовать

«Звоночки», что все-таки вы ошиблись и перед вами непрофессионал:

⚠ Вы долго и упорно обсуждаете проект, но вас не слышат. Например, вы просите душ, вам предлагают ванну, вы хотите кровать 180 - вам ставят диван-трансформер. И так не один раз! … Скорее всего у дизайнера много проектов и просто тяжело сосредоточится, именно на ваших желаниях. Лечение тут одно: писать и фиксировать замечания, заполнять ТЗ (у дизайнера обязана быть анкета, для заполнения заказчиком), чтобы было время вернуться и посмотреть в заметках.

⚠ Про снос несущих стен-говорить не буду... тут и так все понятно.. Это скорее из страшилок 😈, не встречала такого. А вот что точно бывает: ради красивой и креативной подачи, дизайнер может предложить в планировке стены, расположенные под углом (особенно острым))) или радиусные перегородки… Вообще, максимально возможно, лучше такие решения избегать. Любой человек, который знаком с ремонтом знает чем это грозит и какие это неудобства: в отделке, и в заказе и установке мебели. Я не говорю, что нельзя ставить необычные решения, просто иногда дизайнер, мягко говоря, увлекается и такие предложения ничем не оправданы, минусов гораздо больше, чем плюсов.

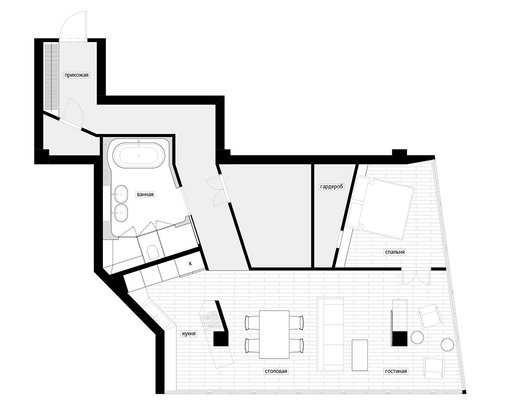
⚠ Вам предлагают не совсем корректную планировку. Узкие проходы( менее 60см), дверцы открывания дверей/мебели не показаны, а это необходимо , чтобы было понимание работы с пространством. Часто ставят кровати 180х200 , не учитывая, что это просто матрас, а у мебели есть спинка и бортики и на это тоже нужно место…. И тд и тп. Заказчикам рекомендую не только смотреть красивые картинки, но и внимательно изучать и планы и развертки помещения. Если проект хороший показана каждая стена с розетками, выключателями и светильниками в масштабе и разрезах. Уже сразу можно понять и увидеть будет ли двери мешать люстра и наоборот. Также можно попросить дизайнера расположить в масштабе человека на развертку чтобы было легче ориентироваться.

⚠ Качественный проект должен включать ведомость проекта! Т.е. у вас должно быть посчитано сколько какого материала необходимо для чистовой отделки Необязательно с артикулами и точными названиями (это не входит в простой проект), но, как минимум , чтобы было понятно сколько нужно покупать ламината и плинтуса и др. Без этого проект-в принципе неполноценный.

Но на стадии проектирования выявить недочеты не так страшно, ведь пока это просто бумага.. И, при грамотном подходе любого, даже самого слабого дизайнера можно довести до того, что он исправит все, посчитает и нарисует красиво, и вам понравится. Это точно!

но… Конечно, самое интересное впереди. Ведь именно ремонт как раз расставляет точки над ℹ.. Заходя на объект, строители смотрят внимательно проект и делают по нему смету. Выбирая профессиональных строителей, вы также сможете уберечь себя от ошибок. Прораб с наметанным взглядом увидит и недочёты, если они имеются, сразу же и предупредит Вас. Ведь даже великие дизайнеры могут сделать ошибки и помарки, человечески фактор тут играет важную роль и он не 😇 Главное чтобы эти ошибки не были неисправимыми и дизайнер нёс ответственность, выходил на связь и мог внести исправления. Это тоже говорит, о его "зрелости" и адекватности.

-4

А были ли у вас конфликты с дизайнером, из-за того что проект сделан плохо? Или все это страшилки из интернета?)) И помните : главное не нарисовать, главное -реализовать.

Про другие конфликты можно почитать тут ВРЕМЯ и ДЕНЬГИ

Заходите на мой сайт, посмотрите мои проекты: https://overadesign.com/portfolio/