Найти в Дзене

Баня в загородном доме VS отдельно стоящая баня. Какой вариант стоит предпочесть?

Баня – это неотъемлемая часть русской культуры и традиций. Многие собственники загородных домов задаются вопросом о том, что лучше: иметь баню внутри дома или отдельно стоящую баню на участке. Оба решения находят своих сторонников, и для того, чтобы сделать правильный выбор, важно знать основные преимущества и недостатки обоих вариантов. Главное преимущество бани внутри дома – это удобство. Доступ к бане изнутри дома делает ее использование более комфортным и удобным для всех членов семьи. В любое время можно пользоваться баней, не выходя из дома. Это особенно удобно в холодное время года. Другое преимущество связано с экономией средств. Для бани внутри дома не нужно прокладывать отдельные коммуникации. Общая крыша и фундамент снижают затраты на строительство, на дополнительную теплоизоляцию и отопление. Зимой нагретая баня отдаёт тепло в соседние помещения, что позволяет экономить на отоплении. Третье преимущество – эксплуатационное. Баня в доме всегда готова к использованию. Не нужно

Баня – это неотъемлемая часть русской культуры и традиций. Многие собственники загородных домов задаются вопросом о том, что лучше: иметь баню внутри дома или отдельно стоящую баню на участке. Оба решения находят своих сторонников, и для того, чтобы сделать правильный выбор, важно знать основные преимущества и недостатки обоих вариантов.

Главное преимущество бани внутри дома – это удобство. Доступ к бане изнутри дома делает ее использование более комфортным и удобным для всех членов семьи. В любое время можно пользоваться баней, не выходя из дома. Это особенно удобно в холодное время года.

Другое преимущество связано с экономией средств. Для бани внутри дома не нужно прокладывать отдельные коммуникации. Общая крыша и фундамент снижают затраты на строительство, на дополнительную теплоизоляцию и отопление. Зимой нагретая баня отдаёт тепло в соседние помещения, что позволяет экономить на отоплении.

Третье преимущество – эксплуатационное. Баня в доме всегда готова к использованию. Не нужно заранее протапливать помещение бани и ждать, пока оно прогреется.

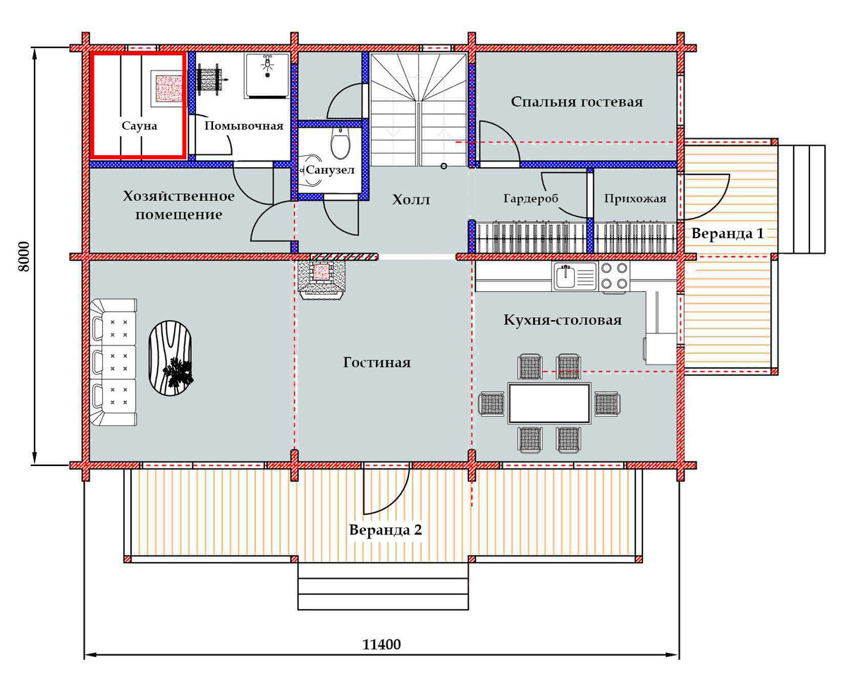
Устройство бани внутри дома позволяет также экономить пространство на загородном участке. Баня интегрируется в общую планировку дома и не занимает много места. Например, в двухэтажном загородном доме, построенном нашей компанией «Raivola House» в поселке Орехово Ленинградской области, баня занимает всего 6 м2 при общей площади дома 186 м2.

План первого этажа загородного дома в поселке Орехово
План первого этажа загородного дома в поселке Орехово

Но при всех своих достоинствах устройство бани непосредственно в загородном доме имеет ряд существенных недостатков. Главный из них – повышенная влажность. Регулярное использование бани, находящейся внутри дома, негативно влияет на элементы конструкции дома, поэтому требуется дополнительная обработка конструкций и контроль за уровнем влажности. Чтобы избежать такого негативного действия, следует отдать предпочтение финской сауне, в которой пар имеет низкую влажность (около 10-20%).

При устройстве бани в доме необходимо также уделить особое внимание противопожарной защите и вентиляции, следить за исправностью проводки. Важно помнить, что баня на дровах создает угрозу отравления угарным газом всех лиц, находящихся в доме.

Учитывая недостатки бани в доме, многие выбирают вариант отдельно стоящей бани. В этом варианте привлекает то, что банные процедуры становятся отдельным ритуалом, не связанным с обычной домашней жизнью. Создается эффект уединения и отрыва от повседневной суеты. Сам загородный дом не подвергается действию повышенной влажности в отдельно стоящей бане. Запахи, возникающие во время банных процедур, не проникают в дом.

Некоторых привлекает архитектурный акцент: отдельно стоящая баня может стать дополнительным элементом дизайна участка и придать ему уникальность.

Наконец, если с загородного участка есть выход на берег водоема – реки или озера, то выбор отдельно стоящей бани становится более предпочтительным.

-2

Против варианта отдельно стоящей бани могут выступить экономические соображения – необходимость строить отдельное здание, прокладывать отдельные коммуникации и т.п. Отдельно стоящую баню надо специально готовить к банным процедурам, протапливать. В холодное время года приходится ждать, пока баня нагреется до нужной температуры. Если участок небольшой, то отдельно стоящая баня может занимать значительную часть участка.

Выбор между баней внутри дома и отдельно стоящей баней на участке зависит от индивидуальных предпочтений, бюджета, потребностей и возможностей семьи. Оба варианта имеют свои плюсы и минусы, и важно взвесить все аспекты перед принятием решения.

-3
-4
-5
-6

«Raivola House» – строительство и реновация загородных домов.

Источники фото: собственная коллекция компании «Raivola House».