Добавить в корзинуПозвонить
Найти в Дзене

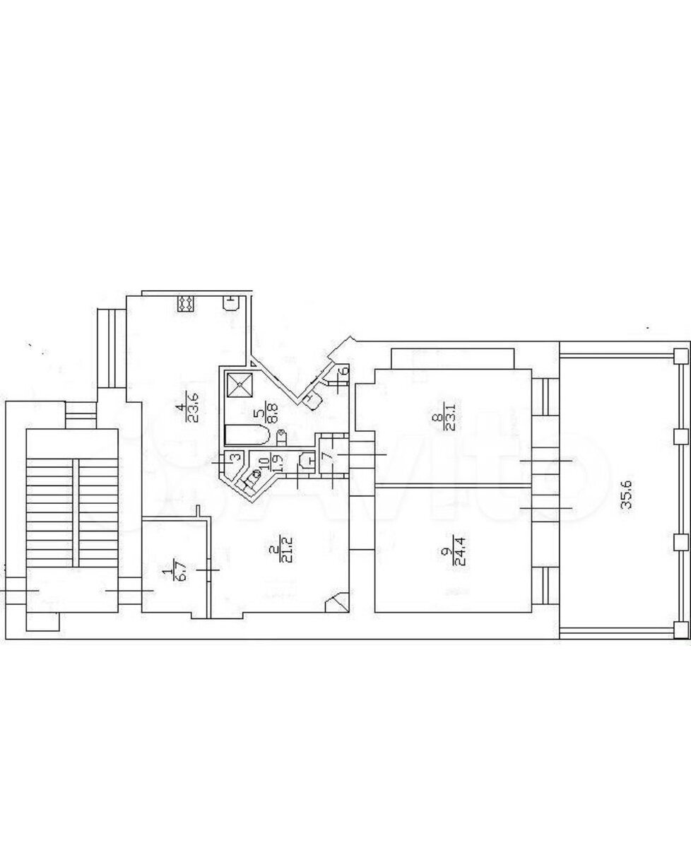
Царская терраса на Таврической дом 5.

Террасы в Петербурге очень спорная история, но иногда было бы приятно посидеть вечерком, с видом на исторический центр, и следующая квартира обладает, пожалуй, лучшим предложением для этих целей. Квартира располагается в Доходном доме архитектора Хренова, на Таврической улице дом 5. Очень красивое здание в стиле модерн, было построено в 1908 году. Это место знаменито своей шикарной парадной и лифтом в цилиндрической шахте, но увы, из квартиры, о которой пойдет речь, вы в нее не попадете... Квартира находится на пятом этаже, и попасть в нее можно с очень мрачной и крутой черной лестницы. На 122м² располагаются две комнаты с огромным камином. Высокие потолки 3.6 метра высотой, окна выходящие на фасад здания. Кухня и ванная ничем выдающимся не выделяются. Да, каких-то элементов исторического декора в квартире не осталось, но все это с лихвой компенсируется террасой... Огромное пространство 35.6 метров... таких огромных террас в историческом центре я ещё не встречал. По разгов

Террасы в Петербурге очень спорная история, но иногда было бы приятно посидеть вечерком, с видом на исторический центр, и следующая квартира обладает, пожалуй, лучшим предложением для этих целей.

Квартира располагается в Доходном доме архитектора Хренова, на Таврической улице дом 5. Очень красивое здание в стиле модерн, было построено в 1908 году. Это место знаменито своей шикарной парадной и лифтом в цилиндрической шахте, но увы, из квартиры, о которой пойдет речь, вы в нее не попадете...

Квартира находится на пятом этаже, и попасть в нее можно с очень мрачной и крутой черной лестницы. На 122м² располагаются две комнаты с огромным камином. Высокие потолки 3.6 метра высотой, окна выходящие на фасад здания.

-2

-3

-4

-5

-6

-7

Кухня и ванная ничем выдающимся не выделяются.

-8

-9

Да, каких-то элементов исторического декора в квартире не осталось, но все это с лихвой компенсируется террасой...

-10

Огромное пространство 35.6 метров... таких огромных террас в историческом центре я ещё не встречал.

-11

-12

-13

-14

По разговорам в разных блогах о недвижимости - квартиру продают уже лет 10...и не удивительно , ведь собственник хочет цену в 37.1 миллион рублей. Огромные деньги даже при всех плюсах такой квартиры. Если вдруг вас заинтересовало это предложение:

2-к. квартира, 122 м², 5/6 эт. на продажу в Санкт-Петербурге | Купить квартиру | Авито

Если вы любите террасы - вот ещё несколько красивых квартир с ними:

Фотографии квартиры взяты из открытых источников на сайтах недвижимости Петербурга.