Найти в Дзене

Как построить бытовку (гостевой дом) своими руками. Работа над ошибками

Это продолжение серии статей про мой опыт строительства на участке ИЖС: следите за выпусками и подписывайтесь на канал, чтобы не пропустить новые статьи! Начал я строительство с установки свайного фундамента: про этот первый этап читайте здесь. Продолжение строительства: собираю каркас здесь. Зима закончилась так же неожиданно, как и началась. Моя бытовка (гостевой дом) отлично перенесла зиму и начало весны. Винтовые сваи не изменили своего положения и это очень радует. Моему соседу повезло чуть меньше. Он построил себе хозблок из газобетонных блоков на МЗЛФ, но поленился сделать дренаж вокруг фундамента. У нас на участках высокий уровень грунтовых вод и как результат - две стены хозблока дали трещины. Но это его ошибки. Я же хочу рассказать о своих. 1. При проектировании бытовки за отправную точку я взял рекомендуемые параметры из интернета и оттолкнулся от размеров утеплителя. Поэтому шаг между вертикальными стойками я сделал равный 600 мм. И это была моя первая ошибка. При строител

Это продолжение серии статей про мой опыт строительства на участке ИЖС: следите за выпусками и подписывайтесь на канал, чтобы не пропустить новые статьи!

Начал я строительство с установки свайного фундамента: про этот первый этап читайте здесь.

Продолжение строительства: собираю каркас здесь.

Зима закончилась так же неожиданно, как и началась.

Моя бытовка (гостевой дом) отлично перенесла зиму и начало весны. Винтовые сваи не изменили своего положения и это очень радует. Моему соседу повезло чуть меньше. Он построил себе хозблок из газобетонных блоков на МЗЛФ, но поленился сделать дренаж вокруг фундамента. У нас на участках высокий уровень грунтовых вод и как результат - две стены хозблока дали трещины. Но это его ошибки. Я же хочу рассказать о своих.

1. При проектировании бытовки за отправную точку я взял рекомендуемые параметры из интернета и оттолкнулся от размеров утеплителя. Поэтому шаг между вертикальными стойками я сделал равный 600 мм.

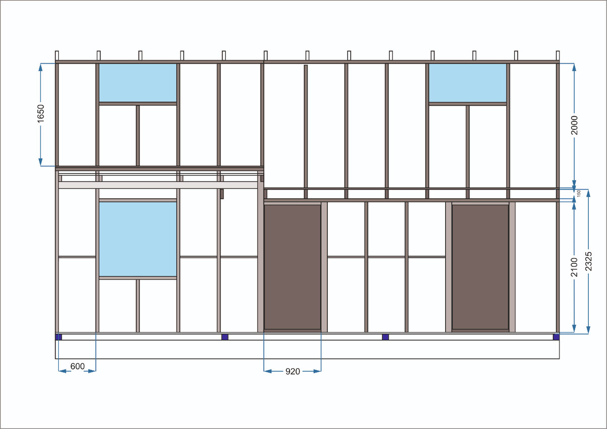
Это проект фронтальной стены бытовки
Это проект фронтальной стены бытовки

И это была моя первая ошибка. При строительстве я не придал этому большого значения, но в дальнейшем пожалел.

Сделав шаг в 568 мм можно было значительно упростить себе задачу в дальнейшем
Сделав шаг в 568 мм можно было значительно упростить себе задачу в дальнейшем

На момент проектирования я уже знал, что буду обшивать бытовку плитами ОСП-3. Поэтому при проектировании мне надо было отталкиваться от размеров плит. Тогда бы я избежал установку дополнительных элементов для сращивания стыков плит. Да и жесткость конструкции была бы выше.

Теперь все эти щели необходимо срастить
Теперь все эти щели необходимо срастить

Сэкономив на количестве вертикальных стоек, я значительно увеличил бюджет строительства из-за закупки материала для заделки-сращивания стыков плит ОСП.

2. Утеплитель имеет свойство постепенно сползать по вертикали вниз. Чтобы как-то избежать этого, я установил горизонтальные перемычки из доски толщиной 25 мм.

Вот так выглядит очередной "косяк"
Вот так выглядит очередной "косяк"

И вот же незадача. Материал отличался по ширине. Стойки были шириной по 100 мм, а вот 25 доска гуляла в размере от 100 до 115 мм. Со словами, а потом выровняю я продолжил стройку. Но потом оказалось сделать это крайне проблематично. Рубанком не подлезть. Ножовкой тоже не вариант.

Направляющая из ОСП плиты - ее задача задать фрезеру нужную глубину
Направляющая из ОСП плиты - ее задача задать фрезеру нужную глубину

Пришлось прибегнуть к помощи ручного фрезера. Неудобно, тонкая работа и не просто пыльно, а ооочень пыльно, но мы справились.

Фрезер со своей задачей справился
Фрезер со своей задачей справился

Эту проблему мне удалось решить, но как итог: минус один день работ. И если взять во внимание, что работать на участке я могу только по выходным, то этот день очень ценен.

А теперь вывод: начиная строить даже маленькое сооружение, нужно иметь на руках проект. Пусть он не будет сделан на компьютере, а нарисован на листе бумаге карандашом, но он должен быть. И в нем должно быть учтено ВСЁ. Мелочей в строительстве не бывает. Необходимо учитывать все и вся и самое главное не допускать ни каких - "потом". Когда строишь сам, требования к самому себе должны быть жестче, иначе включается лень и прокрастинатор.

Впереди еще много интересного: установка санузла и септика. Прокладка отопительной вентиляции от печи и многое другое.

Не пропустите. Продолжение следует! Ваш Петрович.