Найти в Дзене
ДОМ с умом

Уютный дом в традиционном стиле: 3 спальни и кухня-гостиная

Оглавление

Проект «Доломит» - простой снаружи и при этом удобный внутри. Дом имеет лаконичный дизайн, отсюда 2-скатная крыша с нависающим карнизом, спокойные оттенки фасадов, а дополнительное украшение дома - большая крытая терраса.

Характеристики:

Общая площадь: 150,8 кв.м
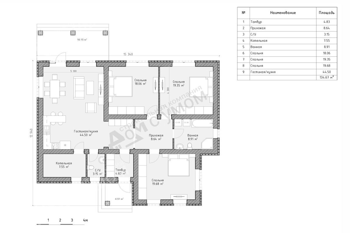
Жилая площадь: 134,7 кв.м
Габариты: 15,4 м х 15,8 м
Фундамент: ростверк на буронабивных сваях
Стены: газобетонный блок 400 мм
Отделка фасада: облицовочный кирпич
Перекрытия цоколя - полы по грунтам
Чердачное перекрытие - по деревянным балкам

Планировка:

Дом рассчитан на семью из трех-четырех человек и имеет площадь 134 кв.м. Центральная часть дома - просторная кухня-гостиная с большими окнами и выходом на террасу. Спальная зона включает в себя 3 спальни, одну из которых можно оборудовать под рабочий кабинет.

-2

▪️▪️▪️▪️▪️▪️▪️▪️▪️▪️▪️▪️▪️▪️▪️▪️▪️▪️▪️▪️▪️▪️▪️▪️▪️▪️▪️▪️▪️▪️▪️▪️▪️
📌Кухня-гостиная - 44,5 кв.м
📌Спальни – 3 шт.
📌Санузлы – 2 шт.
📌Терраса - 16,1 кв.м
▪️▪️▪️▪️▪️▪️▪️▪️▪️▪️▪️▪️▪️▪️▪️▪️▪️▪️▪️▪️▪️▪️▪️▪️▪️▪️▪️▪️▪️▪️▪️▪️▪️
Стоимость проектной документации (серии АР, КР) - 25 000 руб.