Найти в Дзене
Беседка

Планировка нашего загородного дома

Раньше мы уже выкладывали планировку нашей бани на дачи. Теперь попросили показать планировку нашего дома на даче. Ну что ж, смотрите, нам не жалко)) На первом этаж большая кухня-столовая-зал. В общем, общая комната)) Общий санузел, прихожая и спальня для родителей. Застекленная холодная веранда. На 2 этаже 4 одинаковые комнаты-спальни, туалет и огромный застекленный но холодный балкон (3х7 метров), которым мы не пользуемся - летом жарковато, зимой холодно. Посидеть попить чай два раза в год? Ну есть веранда и беседка)) Сейчас бы не стали делать.)) А еще лучше в эту же площадь вписать баню, и беседку, расположив все под одной крышей. Алексей

Раньше мы уже выкладывали планировку нашей бани на дачи.

Теперь попросили показать планировку нашего дома на даче.

Ну что ж, смотрите, нам не жалко))

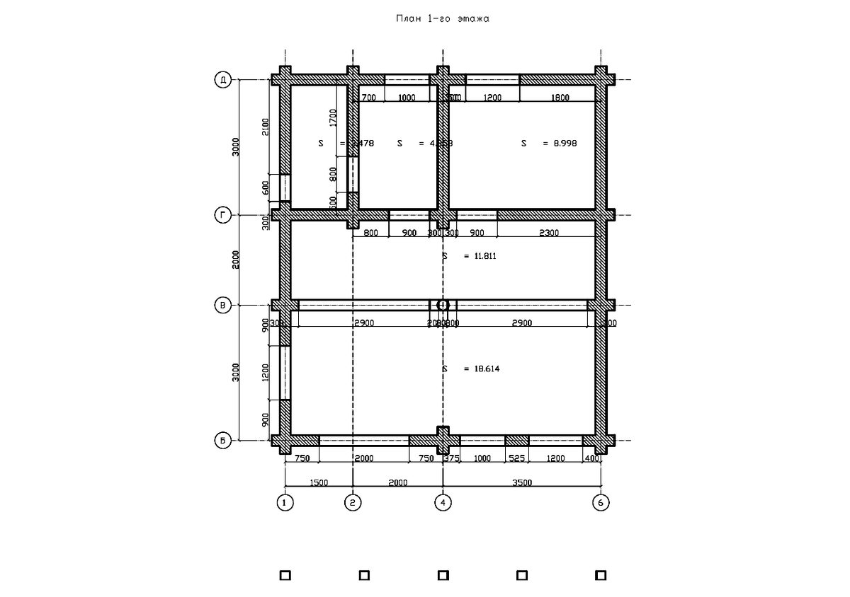
На первом этаж большая кухня-столовая-зал. В общем, общая комната)) Общий санузел, прихожая и спальня для родителей. Застекленная холодная веранда.

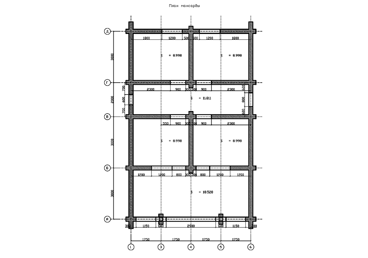
На 2 этаже 4 одинаковые комнаты-спальни, туалет и огромный застекленный но холодный балкон (3х7 метров), которым мы не пользуемся - летом жарковато, зимой холодно. Посидеть попить чай два раза в год? Ну есть веранда и беседка))

Сейчас бы не стали делать.)) А еще лучше в эту же площадь вписать баню, и беседку, расположив все под одной крышей.

Алексей