Добавить в корзинуПозвонить
Найти в Дзене
Беседка

Минусы, которые "вылезли" спустя 3 года эксплуатации бани

Или то, что мы бы сейчас сделали по другому!
Оглавление

Всем привет!

В комментариях меня давно уже просят написать про нашу баню. А то про дом статей много, а про баню ни одной!

Давайте начнем с самого интересного) С недостатков, или если вернее сказать, с того, чтобы мы сейчас, спустя три года, сделали по другому.

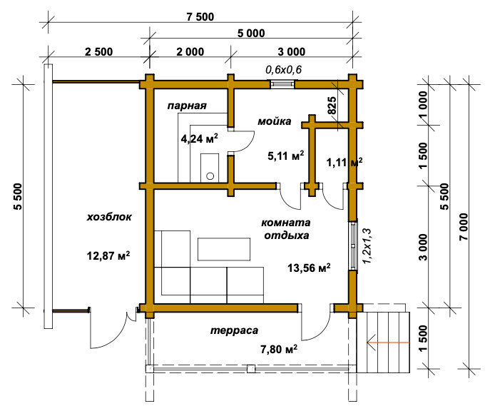
Какая у нас баня

Баня у нас 40 кв.м. (отапливаемый контур), из 220 бревна.

Комната отдыха - (3х5 по осям) 13,5 кв.м. , помывочная -( 2,5х2) и душевая (1х1) всего 5 кв.м., парилка -(2,5х2) 4 кв.м. и туалет - (1,5х1) 1 кв.м.,

План бани
План бани

Установлена дровяная печь.

Печь
Печь

Когда баней мы не пользуемся, поддерживаем там небольшой плюс электрическими обогревателями и теплыми полами, подключенными к системе Умный дом.

Более подробно об устройстве нашей бани я напишу отдельно, сегодня другая тема.

Минусы, которые мы обнаружили

⚠️ Промерзает железная и вторая деревянная дверь. Из-за промерзания деревянная дверь разбухает и не закрывается.

Двери в баню
Двери в баню

Весной мы планируем утеплить двери, по отработанной схеме в доме. Утеплять будем очень хорошо, чтобы нигде ничего не поддувало и дверь не разбухала.

А вообще проблема усугублялась тем, что после мытья в бане, внутри становилось очень влажно. Влага, естественно, оседает в самом холодном месте - это двери!

Как мы решили эту проблему: мы месяц не закрывали деревянную дверь, т.о. она пришла в норму.

И сейчас, после бани, при любом морозе, мы настежь открываем уличную железную дверь и уже находясь дома, ждем звонка от системы Умный дом, о том, что датчики на нижней границе нормы и идем закрываем баню. Таким образом влага вся уходит.

В реальности мы начали открывать просто на 10 минут проветрить и забыли)). Хорошо, что нам позвонила система)). Теперь мы так и делаем - просто открываем и Умный дом позвонит нам, что температура опустилпсь до +3 градусов - идем закрывать!))

⚠️ Я бы перенесла кран с горячей водой из печного бака из парилки в помывочную.

-6

Довольно неудобно набирать кипяток в парилке, а потом идти с тазом в помывочную.

Водонагреватель у нас тоже есть, но я больше люблю тазики)))

⚠️ Сделали решетки на пол из липы, соответственно они почернели буквально за несколько месяцев.

Это мы их уже второй раз обработали
Это мы их уже второй раз обработали

Надо было изначально делать их из лиственницы. Но здесь есть одно НО: тогда они были бы неподъемные..

⚠️ Немного не рассчитали с дверью в туалет. Из-за бревна установили ее на 20 см дальше, чем нужно было. Таким образом туалет получился ни к чему большой, а вот душевая на эти самые 20 см меньше, чем могла бы быть.

⚠️ Не стоило заморачиваться с дорогущими сливами с воздушным замком на пружинке по 5 тыс.руб. 3 штуки.

Все равно в итоге сделали гидрозамок из U-образной трубы.

В душевой в доме, исходя из "банного" опыта же поставили самый простой слив за 300 или 500 рублей и такой же замок из U-образной трубы.

⚠️ Сделали бы окно в комнате отдыха выше.

Вот это окно. Диван мы отсюда убрали к другой стене
Вот это окно. Диван мы отсюда убрали к другой стене

Сейчас окно на уровне приблизительно 90 см, а надо бы было поднять его на 1-1,1 м. Когда диван стоял у окна, то при его сборке спинка упиралась в подоконник и шторы. Очень не удобно. Ну и окна меньшего размера более правильные с точки зрения сохранения тепла.

⚠️ Из мойки и туалета была сделана независимая вытяжка с канальными вентиляторами (достаточно дорогими). В итоге оба перегорели и не работают. Но проблем с вентиляцией нет и так. Как я уже писала выше, просто после бани проветриваем все. А сама вентиляция на зиму вообще закрывается клапаном.

⚠️ Сделана классическая витая проводка. Очень неудобные торчащие розетки итд.

В итоге в доме от такого решения отказались. Более:

Разочаровались в классической ПРОВОДКЕ для деревянного дома: почему и какая альтернатива?

Расскажите с чем вы сталкиваетесь при эксплуатации своей бани, что бы поменяли?

✅ Все мои статьи на тему строительства загородного дома и его эксплуатации находятся по тегу #загородный_дом_Беседка Подписывайтесь на хэшег, если вам интересны публикации на данную тематику.

___________________________

Ставьте 👍🏻 чтобы мои статьи были у вас в ленте

Моя страничка в инстаграм @zaytsevayv

Спасибо что со мной!

Ваша Беседка ☀️