Найти в Дзене

Проект двухэтажного загородного дома "Пион"

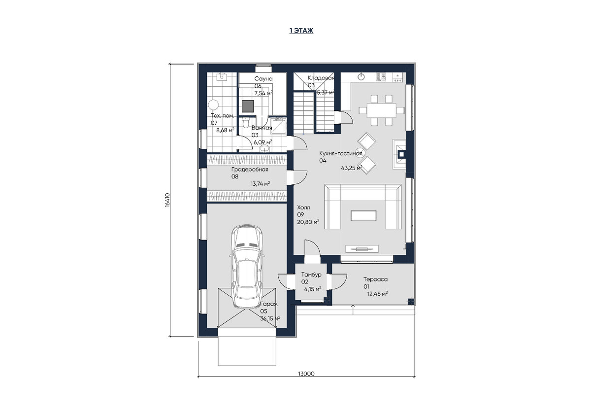
Представляем вашему вниманию прекрасный проект двухэтажного загородного дома "Пион". Этот дом имеет общую площадь 282.02 м2 и габариты 16.41 х 13 м. В его состав входят 3 просторные спальни, 2 санузла, кухня-гостиная площадью 43.25 м2, гараж площадью 36.15 м2 и терраса площадью 12.45 м2.

Дом "Пион" идеально подходит для комфортного проживания семьи из 4-5 человек. На первом этаже находится просторная дневная зона, которая включает большую кухню и гостиную-столовую, просторный холл, гардеробную, санузел и банного комплекс. Кроме того, на этом уровне имеется терраса и гараж.

На втором этаже уместно разместились 3 спальни и общая ванная комната. Две из спален располагают собственными гардеробными, а также на этом уровне есть зона освещения от второго света. Проект двухэтажного загородного дома "Пион" предлагает все необходимое для комфортной жизни и приятного проживания.

Понравился проект? Заказать проект или выбрать подобный можно по телефону: +79323212510. Звоните или пишите. Заявки принимаются по вотцап, телеграмм. Готовы рассчитать для вас смету!

Как построить дом в Тюмени?

Как построить дом в Москве?

Готовые дома в Тюмени

Готовые дома в Москве

Земельные участки в Тюмени

Задать вопрос в ТГ

И подписывайтесь на наш канал, чтобы не пропустить новые интересные проекты.

#проектдома #проектдвухэтажногодома #построитьдом #купитьдом

#двухэтажныйдом #лучшиедвухэтажныедома #дом #новыедома