Найти в Дзене

Свайно-винтовой фундамент с обвязкой из швеллера для двухэтажного барнхауса: проект и смета

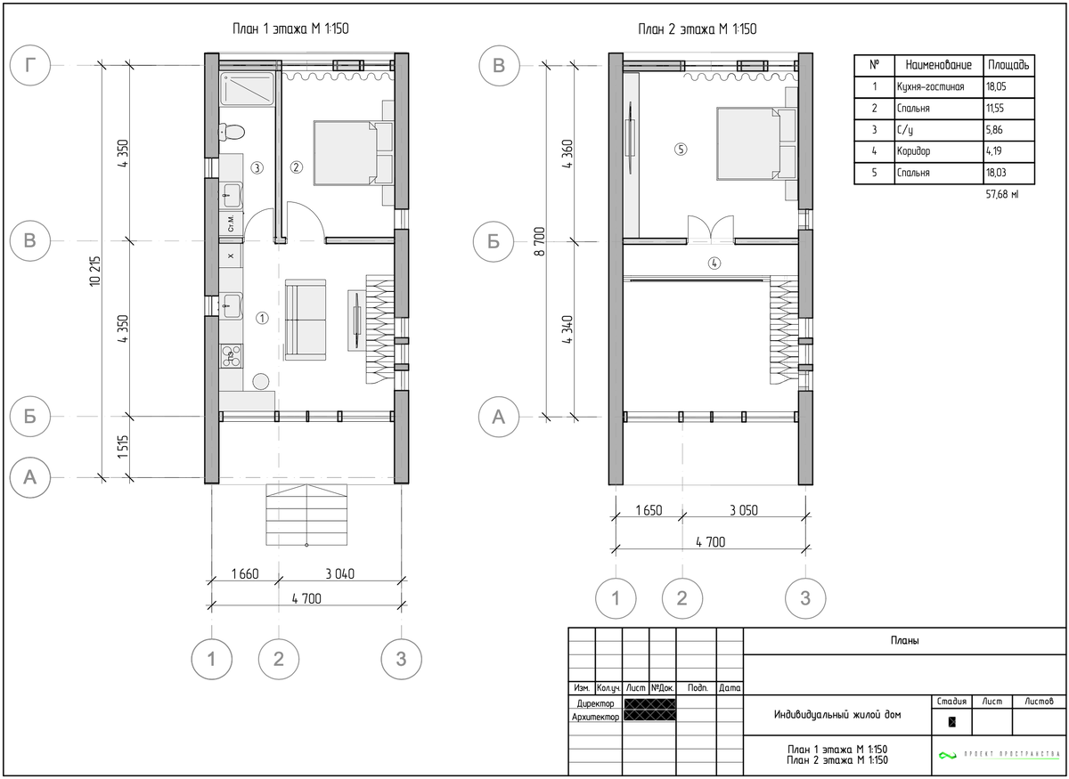
Продолжаем публиковать результаты предварительных расчетов стоимости фундамента, выполненных нами для клиентов. Сегодня показываем план и смету свайно-винтового фундамента для двухэтажного каркасного дома в стиле барнхаус общей площадью 57 кв. метров. Проект дома разработан компанией «Проект пространств» по индивидуальному заказу. На первом этаже – кухня-гостиная площадью 18 кв. метров, санузел и спальня. Еще одна спальня находится на втором этаже. В состав проекта входит предварительный план фундамента. Предварительный, потому что он основан только на параметрах строения, но не грунта. Всего для постройки проектом предусмотрено использование 32 винтовых свай диаметром 89 мм. Для предварительного расчета длину свай выбрали равной 2500 мм. Уточнить план можно будет после проведения геологических изысканий на участке. Они покажут глубину залегания плотных слоев и глубину промерзания, состав и агрессивность грунта. Проектом предусмотрен металлический ростверк, то есть обвязка свай металли

Продолжаем публиковать результаты предварительных расчетов стоимости фундамента, выполненных нами для клиентов. Сегодня показываем план и смету свайно-винтового фундамента для двухэтажного каркасного дома в стиле барнхаус общей площадью 57 кв. метров.

Проект дома разработан компанией «Проект пространств» по индивидуальному заказу. На первом этаже – кухня-гостиная площадью 18 кв. метров, санузел и спальня. Еще одна спальня находится на втором этаже.

-2

В состав проекта входит предварительный план фундамента. Предварительный, потому что он основан только на параметрах строения, но не грунта. Всего для постройки проектом предусмотрено использование 32 винтовых свай диаметром 89 мм. Для предварительного расчета длину свай выбрали равной 2500 мм. Уточнить план можно будет после проведения геологических изысканий на участке. Они покажут глубину залегания плотных слоев и глубину промерзания, состав и агрессивность грунта.

-3
-4

Проектом предусмотрен металлический ростверк, то есть обвязка свай металлическим профилем с п-образным сечением высотой 180 мм (швеллер 18П). Он свяжет сваи в единую конструкцию и послужит опорой для элементов будущей постройки.

-5
-6
-7

По предварительному плану из проектной документации для обвязки фундамента нужно 58 погонных метров швеллера. Эта суммарная длина всех отрезков, но она не отражает реальный расход швеллера. С учетом необходимости расположения мест стыковки профиля на сваях, а также минимальной и максимальной возможной длины профиля, для обвязки потребуется 72 метра швеллера.

-8

Расчет стоимости фундамента от «Королёвского завода свай» по ценам, актуальным на 3 апреля 2023 года представлен в смете. Стоимость свайно-винтового фундамента для барнхауса с обвязкой швеллером с учетом доставки материалов и бригады в Калужскую область всех и монтажа — 267 тысяч рублей.

В статье приведены выдержки из проекта барнахуса, разработанного компанией «Проект пространств» индивидуально для клиента. Расчет предварительной стоимости фундамента согласно проекту выполнен специалистами «Королёвского завода свай».

Наши расчеты для других проектов: