Найти в Дзене
INMYROOM

Уютная двушка 55 м² с терракотовым кубом (смотрите фото до и после)

Оглавление

Вкратце

Заказчики — молодая активная пара — обратились к Евгении Акимовой, чтобы полностью преобразить двухкомнатную квартиру площадью 55 кв. м. Это вторичка, изначально производила не очень приятное впечатление, но профессиональный дизайнер смогла подчеркнуть достоинства и скрасить недостатки.

 📷
📷

Подробности

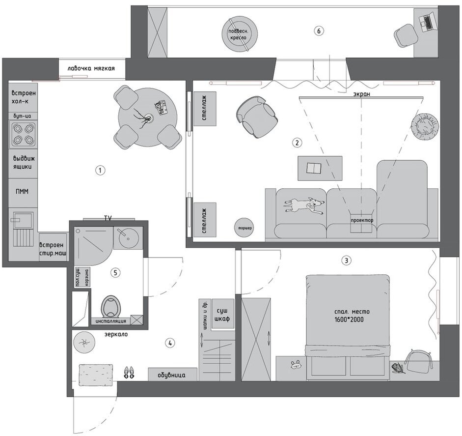
Изначально это была двухкомнатная квартира с изолированными комнатами — кухней, гостиной, спальней. Заказчики захотели объединить кухню и гостиную, поэтому проход из коридора в гостиную заложили, а вместо стены между кухней и гостиной сделали большой проем с раздвижными дверями. Спальня осталась практически неизменной, только сдвинули дверной проем в более удобное место, чтобы поместился шкаф нормальных размеров.

 📷
📷

 📷
📷

Кухня сделана на заказ. Вся техника встроена, в том числе холодильник. В целом мест для хранения довольно много. Но заказчики и не из «хламливых»: они с легкостью разместили все, что требуется, и легко поддерживают кухню в чистоте и порядке.

 📷
📷

 📷
📷

Для отделки выбрали функциональные практичные материалы. Все стены покрасили в один цвет, кроме терракотового куба. Для декора использовали молдинги: они хорошо зонируют и добавляют статусности интерьеру, если применять их с умом. На полу — практичный ламинат, во входной зоне и вдоль кухонного гарнитура положили керамическую плитку.

 📷
📷

В обычное время стол сдвинут в угол и его достаточно для двоих людей. Когда приходят гости, стол можно подвинуть в центр и сесть комфортно большой компанией. А еще тут есть мечта многих — уютный просторный подоконник с подушками и отличным видом из окна.

 📷
📷

 📷
📷

 📷
📷

Вся концепция проекта построена на двух моментах: терракотовый цвет, в который окрашен куб, ограниченный кухней, прихожей и санузлом, плюс яркий диван, на котором так удобно смотреть кино на проекторе.

 📷
📷

Лоджия утеплена, проведен теплый электрический пол — там оборудована зона хранения и зона кабинета. Дизайнер также использовала здесь терракотовый цвет, и все завязалось в единую картину.

«Я очень радуюсь тому, что клиенты, хоть и не с первого раза, но приняли идею терракотового куба. Эта яркая стена стала акцентом, который виден с разных точек квартиры. При этом куб не дробит пространство, а, наоборот, объединяет в единое целое», — говорит дизайнер.

Продумано несколько зон с хранением. При входе есть вешалка и тумба под обувь, а также большой шкаф — все делалось на заказ. Эта зона закрывает потребность в хранении вещей. Также предусмотрели шкаф в спальне, где размещены все повседневные вещи, и шкаф на лоджии, в котором хранятся чемоданы, лыжи и много хозяйственных предметов.

Больше фото тут:

Уютная двушка 55 м² с терракотовым кубом (смотрите фото до и после)