Добавить в корзинуПозвонить
Найти в Дзене
INMYROOM

До и после: 5 неочевидных приемов, которые преобразили типовую панельку

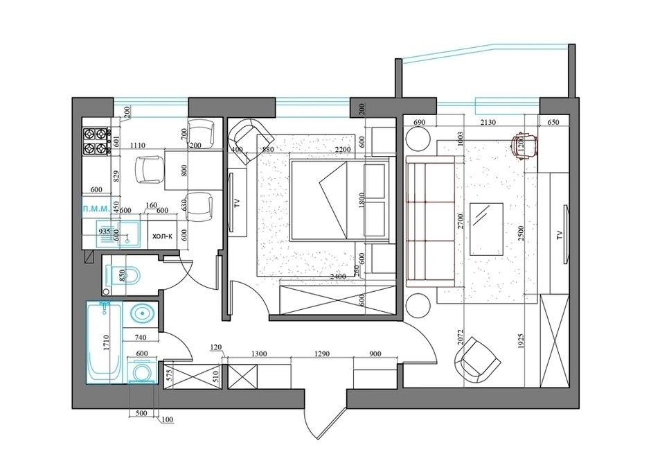
Потрясающее преображение квартиры в старом доме Панельные дома — настоящие ветераны российского жилого фонда. Первые «панельки» появились в конце 1950-х годов во время массового строительства при Хрущеве и до сих пор составляют значительную часть жилья в России. Типовая планировка, стандартные размеры окон и дверных проемов, невысокие потолки и общая компактность — все эти особенности делают оформление таких квартир настоящим вызовом для дизайнеров. Тип дома: панельный дом Дизайн: Мария Пивоварова Стилист: Марина Гусева Фото: Инна Каблукова Превратить стандартную двушку в панельном доме в стильное и уютное пространство без перепланировки — задача не из легких. Дизайнер Мария Пивоварова взялась за проект для мамы своей постоянной клиентки и доказала, что даже с обычной планировкой можно создать интерьер с характером. Квартира площадью 55 квадратных метров с типичной для панельного дома высотой потолков 2,5 метра требовала полного обновления. От «убитого» интерьера советских времен не ос
Оглавление

Потрясающее преображение квартиры в старом доме

Панельные дома — настоящие ветераны российского жилого фонда. Первые «панельки» появились в конце 1950-х годов во время массового строительства при Хрущеве и до сих пор составляют значительную часть жилья в России. Типовая планировка, стандартные размеры окон и дверных проемов, невысокие потолки и общая компактность — все эти особенности делают оформление таких квартир настоящим вызовом для дизайнеров.

Тип дома: панельный дом
Дизайн: Мария Пивоварова
Стилист: Марина Гусева
Фото: Инна Каблукова
 📷
📷

Превратить стандартную двушку в панельном доме в стильное и уютное пространство без перепланировки — задача не из легких. Дизайнер Мария Пивоварова взялась за проект для мамы своей постоянной клиентки и доказала, что даже с обычной планировкой можно создать интерьер с характером.

Квартира площадью 55 квадратных метров с типичной для панельного дома высотой потолков 2,5 метра требовала полного обновления. От «убитого» интерьера советских времен не осталось и следа. У заказчицы было всего несколько пожеланий: никаких белых дверей (потому что хватает их на работе в больнице), много мест для хранения и возможность сохранить несколько памятных вещей — старинную вазу и пару статуэток.

Что же превратило обычную панельку в стильное жилье? Рассмотрим 5 неочевидных приемов, которые использовала дизайнер.

Фото до ремонта:

-3
-4
-5
-6

1. Французская элегантность в типовой квартире

До: Обычные стены без декора, типовые плинтусы и стандартные двери создавали безликое пространство.

После: Дизайнер применила молдинги в гостиной и прихожей, добавив интерьеру французского шарма. Двери с французской решеткой цвета «матовый бисквит» стали продолжением этой идеи. Это простое решение сразу вывело квартиру из разряда типовых, придав ей особый характер.

«Молдинги — один из самых доступных способов преобразить стандартное пространство. Они добавляют глубины и создают ощущение дороже интерьера, даже если бюджет ограничен», — отмечает дизайнер.

 📷
📷
 📷
📷

2. Цветовые акценты против больничной белизны

До: Безжизненные, выцветшие стены без характера и индивидуальности.

После: Вместо белых стен — нейтральный фон с яркими акцентами. Главный цвет — глубокий синий, который появляется в мебели и текстиле. На кухне цветовую гамму разбавили мятный и оранжевый. В спальне — нежный пыльно-розовый. Такое решение сделало интерьер более живым и интересным.

«Цветовые акценты — это как специи в блюде. Важно найти баланс: слишком мало — и интерьер будет пресным, слишком много — и получится хаос», — объясняет Мария Пивоварова.

 📷
📷
 📷
📷

2. Обои с характером в спальне

До: Выцветшие, потрескавшиеся обои без выраженного стиля.

После: Зная любовь хозяйки к цветочным мотивам, дизайнер выбрала для спальни обои с акварельными листьями в сине-серых тонах. Они меняют свой оттенок в зависимости от освещения, добавляя комнате глубины и динамики. Такой прием сделал даже типовую комнату с невысокими потолками более интересной и стильной.

«Многие боятся активных принтов в маленьких помещениях. На самом деле, если правильно подобрать масштаб узора, обои могут визуально расширить пространство», — говорит дизайнер.

 📷
📷
 📷
📷
 📷
📷

3. Шкафы до потолка для максимального хранения

До: Стандартные шкафы с пустым пространством наверху, которое собирает пыль.

После: Чтобы увеличить места для хранения, дизайнер спроектировала шкафы, идущие до самого потолка. Особенно это заметно на кухне, где каждый сантиметр на счету. При этом часть шкафов сделали открытыми и со стеклянными фасадами — это визуально облегчает конструкцию.

«В панельках с невысокими потолками многие избегают высоких шкафов, думая, что они утяжелят пространство. На самом деле, если правильно спроектировать мебель, она может даже визуально «приподнять» потолок», — рассказывает Мария.

 📷
📷
 📷
📷

5. Интеграция памятных вещей в современный интерьер

До: Старые вещи часто выглядят неуместно в обновленном интерьере и превращаются в визуальный шум.

После: В проекте удалось органично вписать вазу с 30-летней историей и несколько памятных статуэток. Дизайнер не просто нашла для них место, а сделала их частью композиции, подобрав подходящие по стилю новые предметы.

«Именно личные вещи с историей делают интерьер по-настоящему живым. Мы не стали прятать вазу хозяйки, а наоборот, сделали ее акцентом в прихожей, подобрав картину, которая с ней перекликается», — объясняет дизайнер.

Результат: атмосферная квартира с характером

Обновленная квартира доказывает, что даже стандартная планировка панельного дома может стать основой для создания стильного и уютного интерьера. Правильный подбор отделочных материалов, цветовые акценты и продуманные места хранения превратили типовую двушку в пространство, которое отражает характер и предпочтения хозяйки.

«Главное в работе с типовыми панельками — это найти баланс между функциональностью и эстетикой. Даже без сноса стен и увеличения высоты потолков можно создать проект, который не будет выглядеть как типовая квартира», — подводит итог Мария Пивоварова.

 📷
📷
 📷
📷
 📷
📷

Сейчас читают: