Добавить в корзинуПозвонить
Найти в Дзене
Строим на Позитиве

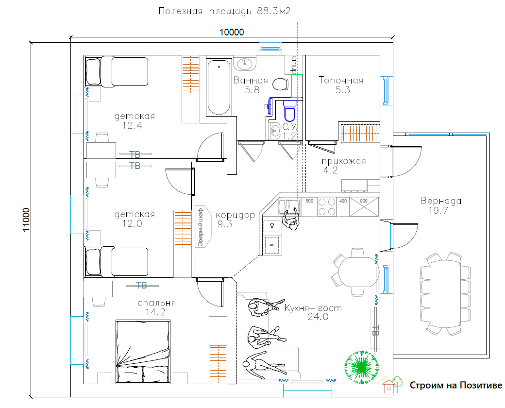
Одноэтажный дом с 3 спальнями площадью 88.3м2.

Представляю планировку загородного дома, с минимальными размерами для комфортного проживания семьи с двумя детьми. В этом проекте нет гардеробных, постирочной, кладовки и прочих второстепенных комнат, которые безусловно полезны, но совсем необязательны и значительно увеличивают размеры самого дома, а соответственно и стоимость его строительства и содержания. Это мой второй проект в таких размерах, который я публикую на канале. Первая планировка была с двумя спальнями и подходила не для всех семей с двумя детьми. Посмотреть первую версию можно в статье: Сложно сделать дом идеальным для всех, кому то он покажется слишком большим, кому то наоборот. С течением времени ситуация тоже меняется. Пока дети маленькие и живут с вами, дом может казаться недостаточно вместительным, а как только детишки выросли и разъехались, дом становится слишком огромным и затратным в содержании. Этот проект - попытка найти золотую середину. Дом, который не будет обременительным для хозяев, когда детям придет вр

Представляю планировку загородного дома, с минимальными размерами для комфортного проживания семьи с двумя детьми. В этом проекте нет гардеробных, постирочной, кладовки и прочих второстепенных комнат, которые безусловно полезны, но совсем необязательны и значительно увеличивают размеры самого дома, а соответственно и стоимость его строительства и содержания.

Это мой второй проект в таких размерах, который я публикую на канале. Первая планировка была с двумя спальнями и подходила не для всех семей с двумя детьми. Посмотреть первую версию можно в статье:

Сложно сделать дом идеальным для всех, кому то он покажется слишком большим, кому то наоборот. С течением времени ситуация тоже меняется. Пока дети маленькие и живут с вами, дом может казаться недостаточно вместительным, а как только детишки выросли и разъехались, дом становится слишком огромным и затратным в содержании. Этот проект - попытка найти золотую середину. Дом, который не будет обременительным для хозяев, когда детям придет время выпорхнуть из гнезда и обустраивать свою жизнь самостоятельно. И в то же время дом, в котором у всех членов семьи (для семей с двумя детьми) есть свое личное пространство.

Планировка ожноэтажного дома с 3 спальнями
Планировка ожноэтажного дома с 3 спальнями

На данном этапе, свои проекты я стараюсь делать простыми и универсальными. Простой прямоугольник с центральной несущей стеной, это понятный конструктив позволяющий построить дом, полностью своими руками.

Ширина дома составляет 10 метров, по центру расположена несущая стена, это дает возможность сделать кровлю максимально простой. С учетом оптимального свеса в 60см, и угла наклона ската кровли около 22 градусов, стропила получаются длинной 6 метров. (не нужно придумывать как сращивать стропила, усложняя конструкцию и увеличивая тем самым стоимость материала и работ)

-2

При необходимости данный проект дома можно легко увеличить до размеров 10x12. Площадь добавляется к помещению кухни-гостиной и жилым комнатам. Если размер участка и финансовые возможности позволяют, это хорошее решение расширить жилую площадь и при этом сохранить общую в пределах 100м2.

Вариант дома с размером 10 на 12
Вариант дома с размером 10 на 12

Планировка дома

  • Жилые комнаты - в варианте дома 10x11 получилось 3 спальни. Основная - 14.2м2 и две детские по 12м2. В варианте дома 10х12 комнаты немного побольше. Но в обоих вариантах комнаты достойных размеров.
  • Кухня-гостиная - компактная, но все что нужно поместилось. В кухне: большой холодильник, колонна с духовкой и свч, полноразмерная посудомойка и плита на 4 конфорки. В гостиной: небольшой угловой диванчик, ТВ (можно с электрокамином под ним) и осталось еще место для новогодней елочки в углу.
  • Ванна/туалет без лишнего шика, но минимально удобная комбинация. Вместительная ванная с окном, в комплектации - ванна, унитаз, умывальник и стиральная машинка. И отдельный туалет с маленькой раковиной. В данном проекте ванная комната соприкасается с жилой, не самое лучшее решение, но когда нет других вариантов - рабочее. Перегородку между ванной и комнатой я запланировал в 20см, этого вполне достаточно что бы сделать качественную звукоизоляцию.
  • Прихожая/коридор - прихожая с вместительным встроенным шкафом, а также пуфом и вешалкой. Прихожую можно отделить от коридора, а можно и не отделять, так как в данном проекте вход предполагается через застекленную веранду. В коридоре можно дополнительно разместить эркерный шкаф для всяких мелочей.
  • Топочная сделал минимальных размеров, дом небольшой и выделять много пространства для топочной нет необходимости. Но высоту придется сделать 2.85, что бы уложиться в минимальный объем, если отопление будет газовым.
  • Веранда можно построить сразу, а можно пристроить позднее на свайном фундаменте. Хорошее место для застолий в теплое время года. Если делать утепленной, то и зимой, во время приема гостей можно использовать.

Сейчас я работаю над проектом фундамента этого дома. Считаю материал и готовлю ориентировочную смету, по готовности размещу на канале.

А на этом все, ставьте лайки, подписывайтесь на канал, оставляйте комментарии.

Также вам может быть интересно: