Добавить в корзинуПозвонить
Найти в Дзене
Строим на Позитиве

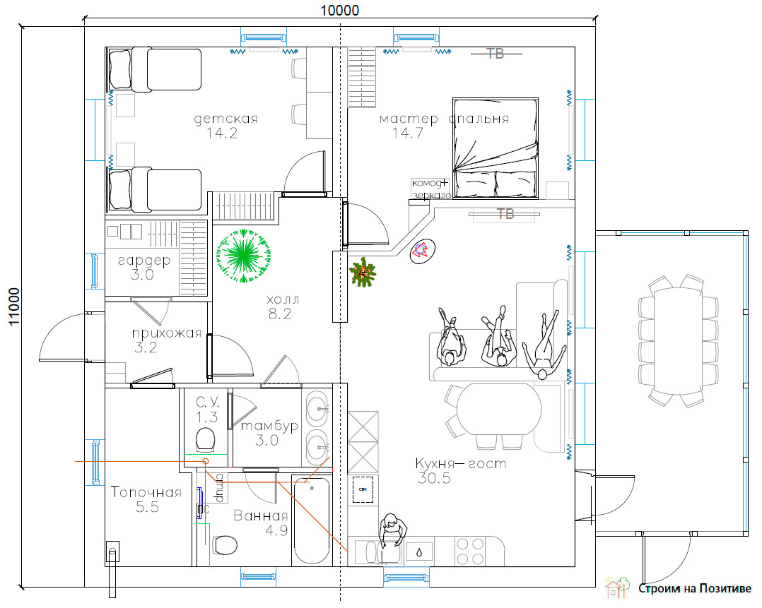
Планировка одноэтажного дома 10x11.

Продолжаю практиковаться в создании планировок домов, и сегодня на обзоре планировка небольшого одноэтажного дома из газобетона с двумя спальнями. На данный момент, работы над проектами домов я определил для себя как увлечение. Да, мне нравится этим заниматься в свободные минуты. Возможно не ту профессию я выбрал в свое время, но как говориться учится никогда не поздно, было бы желание. Пока я работаю над простыми проектами, с понятным конструктивом и простым исполнением. Дом, который в принципе можно построить своими руками, с помощью друзей, родственников или нанятых помощников и при этом уложиться в скромный бюджет. Особенно актуально сейчас, когда цены на квартиры взлетели до небес и тащат за собой цены на строительство домов. Причем если цены на материалы более менее стабилизировались и даже иногда падают (да-да бывает и такое, я прекрасно помню время когда качественный газоблок дешевле 10т.р. за м3 было сложно найти) то ценник на работников растет опережающими инфляцию темпами. В
Оглавление

Продолжаю практиковаться в создании планировок домов, и сегодня на обзоре планировка небольшого одноэтажного дома из газобетона с двумя спальнями. На данный момент, работы над проектами домов я определил для себя как увлечение. Да, мне нравится этим заниматься в свободные минуты. Возможно не ту профессию я выбрал в свое время, но как говориться учится никогда не поздно, было бы желание.

Пока я работаю над простыми проектами, с понятным конструктивом и простым исполнением. Дом, который в принципе можно построить своими руками, с помощью друзей, родственников или нанятых помощников и при этом уложиться в скромный бюджет. Особенно актуально сейчас, когда цены на квартиры взлетели до небес и тащат за собой цены на строительство домов. Причем если цены на материалы более менее стабилизировались и даже иногда падают (да-да бывает и такое, я прекрасно помню время когда качественный газоблок дешевле 10т.р. за м3 было сложно найти) то ценник на работников растет опережающими инфляцию темпами.

Вот такой проект загородного дома у меня получился, в размере 10*11.

Планировка одноэтажного дома 10x11
Планировка одноэтажного дома 10x11

Прихожая и гардеробная

С прихожей начинается дом, и у этого помещения особая роль, очаровать гостей с порога. Прихожая не должна быть тесной. В ней должны свободно помещаться встречающий, а то и несколько, а также гости. Прихожая изолированная. В условиях климата Подмосковья наличие двери между этим помещением и холлом считаю оправданным. В данной планировке я сделал отдельную гардеробную, это довольно модная тенденция, но не всегда оправдана особенно при ограниченном бюджете.

Отдельная гардеробная это - лишняя стена, дверь, отделка этой стены с обеих сторон, отдельное освещение, выключатель и т.д.

Прихожая и гардеробная
Прихожая и гардеробная

При этом, если в данном проекте убрать стену гардеробной, мы получим просторное помещение прихожей, да еще и с окном (идеальная прихожая должна быть с окном). Но, такие нюансы решают уже хозяева дома и при необходимости внесут корректировки в проект.

Холл - в данном проекте получился просторный. Можно диванчик поставить или определить здесь место для новогодней елки, а можно и шкафы дополнительные разместить.

Кухня гостиная

Главное помещение любого дома, всегда стараюсь выделить максимальную площадь. В данном проекте нет необходимости ставить дополнительный телевизор на кухне. Основной ТВ гостиной удобно просматривать и за обеденным столом

-3

Кухня с окном над рабочей поверхностью - сейчас это модно, и все больше людей делают такое окно. В проекте своего дома, как и здесь, я расположил окно возле мойки.

На мой взгляд это наиболее оптимальный вариант. В интернете одним из минусов такого расположения отмечают возможное попадание брызг на стекло окна. Для того что бы этот момент минимизировать, в своем доме я приподнял окно над уровнем столешницы на 30см.

В целом каждый сам решает - стоит делать окно над рабочей поверхностью или нет. Я рискнул и сделал, небольшое окошко, которое не так много место отняло у навесных шкафов. В этом проекте я тоже начертил такое окно, но его всегда можно заложить, если такое расположение не устраивает. Учитывая, что есть еще и дверь на веранду с окном, освещенность помещения в целом не пострадает.

Спальни

Для себя я определил 4 категории спален:

  • Крохотная - 8-10м2 годится только для детской, в случае разнополых детей и желании что бы комнаты детей были раздельные, в будущем становится кабинетом, кладовкой или другим подсобным помещением.
  • Маленькая - 11-12м2 отлично подходит в качестве гостевой, комнаты для родителей, детской для одного ребенка.
  • Оптимальная - 13-16м2 на мой взгляд, золотой размер для небольших частных домов, повторюсь, именно небольших. Для людей которые не хотят переплачивать за содержание дома и в тоже время жить в комфортных условиях.
  • Большая - 17м2 и более, отличный размер комнат, когда деньги не имеют весомого значения.
-4

В данном проекте комнаты из разряда оптимальных и позволят комфортно разместиться как хозяевам, так и детям.

Ванная, топочная, санузел.

Все эти комнаты, как и положено в оптимальном проекте, собраны в один блок. Топочная необходимых размеров для размещения газового котла (очень часто я вижу в проектах маленькие топочные площадью 3.5-4.5 м2, что для газовой котельной не подойдет) По нормам объем помещения в котором располагается газовый котел, должен быть не менее 15м3, что говорит нам о площади как минимум в 5м2, а лучше чуть более, потому что 3-ех метровые потолки есть не у всех.

Ванная и санузел в данном проекте раздельные, при этом есть дополнительный тамбур в котором можно расположить две раковины или раковину и стиральную машину. Это удобно и что бы заглянуть просто помыть руки или закинуть белье в стиральную машинку, нет необходимости тревожить человека принимающего горячую ванну.

Ванная, топочная, с.у.
Ванная, топочная, с.у.

Вход в помещения санузла и ванную сделан в самом правильном месте - холле. Мне не очень нравится когда такой вход выполняют из прихожей, и совсем плохо если дверь в уборную ведет из гостиной или кухни.

Полезная площадь этого дома составляет 88.5м2, на летний период эта площадь увеличивается за счет застекленной веранды. Саму веранду можно выполнить позднее, если бюджет ограничен.

На этом обзор этого домика заканчиваю. Со временем, начну делать проекты конструктива, просчитывать количество материала и примерную стоимость коробки дома по этой планировке.

На этом все, ставьте лайки, подписывайтесь на канал, пишите комментарии.

Так же вам может быть интересно: