Добавить в корзинуПозвонить
Найти в Дзене
Строим на Позитиве

Оптимальная планировка дома. Как я делал проект.

В процессе поиска идеальной планировки дома я начертил множество проектов. Но в итоге понял - абсолютного идеала достичь невозможно. И уж тем более, нельзя угодить всем. Кому то обязательно не понравится то, что ты считаешь своим лучшим вариантом. В этой статья расскажу как я создавал оптимальную планировку своего дома, возможно кому то это поможет найти свой оптимальный вариант. Ведь в конечном итоге, он у каждого свой, и зависит от множества факторов. Работать над проектом я начинал с блока кухня-санузел-котельная. Эти три помещения рекомендуется располагать как можно ближе друг к другу, что бы уменьшить стоимость и облегчить монтаж коммуникаций. Особое внимание уделить канализации, ведь ее необходимо прокладывать с уклоном. И для каждого диаметра труб, он свой. Определяя габариты и конфигурацию кухни, я рекомендую сразу проставлять мебель на плане. Вообще расстановка мебели на этапе проектирования, крайне полезна для любого помещения. Даже если вы еще не знаете какая именно мебель у
Оглавление

В процессе поиска идеальной планировки дома я начертил множество проектов. Но в итоге понял - абсолютного идеала достичь невозможно. И уж тем более, нельзя угодить всем. Кому то обязательно не понравится то, что ты считаешь своим лучшим вариантом.

В этой статья расскажу как я создавал оптимальную планировку своего дома, возможно кому то это поможет найти свой оптимальный вариант. Ведь в конечном итоге, он у каждого свой, и зависит от множества факторов.

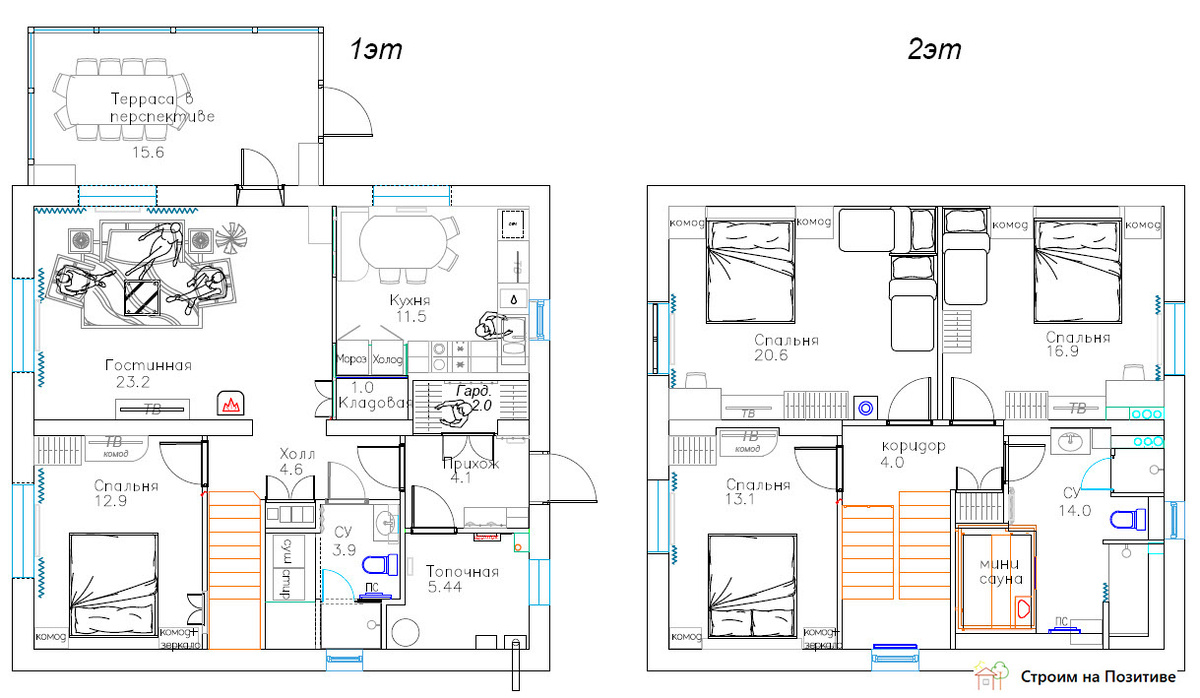
Планировка двухэтажного дома 150м2
Планировка двухэтажного дома 150м2

Работать над проектом я начинал с блока кухня-санузел-котельная. Эти три помещения рекомендуется располагать как можно ближе друг к другу, что бы уменьшить стоимость и облегчить монтаж коммуникаций. Особое внимание уделить канализации, ведь ее необходимо прокладывать с уклоном. И для каждого диаметра труб, он свой.

Кухня

Определяя габариты и конфигурацию кухни, я рекомендую сразу проставлять мебель на плане. Вообще расстановка мебели на этапе проектирования, крайне полезна для любого помещения. Даже если вы еще не знаете какая именно мебель у вас будет. Просто берите типовые размеры кроватей, шкафов, тумбочек, комодов, ванн, душевых кабин и т.д.

Но вернемся к кухне, для меня были важны следующие параметры.

  • Наличие морозильника в дополнение к обычному холодильнику или вариант сайд бай сайд. У меня большой сад, где то надо хранить урожай, а погреба нет, пусть будет в замороженном виде. Зимой, милое дело, сделать вкусный компот из ягод. Больше склоняюсь к двум разным агрегатам. Сайд бай сайд будет значимо дороже, да и ремонтировать его, или поменять на новый, сложнее.
  • Наличие посудомоечной машины - я уже к ней привык, но пока не решил с размером. В квартире у нас установлена посудомойка шириной 45см, в принципе хватает, но иногда приходиться запускать по 2 раза в день. В доме есть возможность установить полноценную - 60см, но пока еще думаю, может и 45см хватит.
  • Телевизор на кухне - супруга любит что то смотреть, вернее даже больше слушать во время стряпни. Не так то просто разместить телевизор на кухне правильно, что бы он не мешал и его было удобно смотреть.
  • Возможность установки большого обеденного стола - привык к такому в квартире, стоит большой, удобный, раскладной стол. Причем все время в разложенном состоянии. Все члены семьи могут удобно расположиться не мешая друг другу. Сам бывает сижу вечерами с ноутбуком за этим столом, потягивая виски.
  • Диванчик на кухне - опять привычка или моя хотелка. Квартира у нас двухкомнатная, и спокойно посидеть вечером за просмотром фильма или сериала можно только на кухне (в одной комнате супруга смотрит свое, в другой дети спят). Но иногда хочется и слегка развалится, и тут дивначик как нельзя кстати. Вообще, удивительным образом планировка кухни в доме похожа на планировку кухни в квартире, только с улучшениями. Вот она, сила привычки.
  • Достаточно места для хранения - любая кухня это такой мини склад. Посуда, всякая кухонная утварь, специи и крупы, чего там только нет. И что бы это органично разместить, нужно достаточно места. Не люблю когда вещи которые не влезают в шкафчики, постепенно начинают заполнять места на рабочем столе или полках, рядом с предметами интерьера.
Рассматриваю два варианта планировки кухни, с кладовой и без.
Рассматриваю два варианта планировки кухни, с кладовой и без.

От чего отказался - барная стойка. Мне кажется если она гармонично не вписывается в кухню, то незачем и стараться, можно и обойтись.

На данный момент рассматриваю 2 варианта планировки кухни - с кладовой и без. Хорошо иметь отдельное место где можно разместить бутыли для кулера, консервы, крупы, какие то закрутки и т.д. Но вытянутая форма кладовой кажется не очень удобной. А вы как думаете, нужна кладовая?

Гостиная

Гостиная, по моему мнению - главное место в доме. Она должна быть просторной и удобной. Изначально я планировал гостиную совмещенную с кухней, чтоб было одно большое открытое пространство. Но на кухне у меня запланирована газовая плита. А правила безопасности требуют, либо наличие достаточной вентиляции, (на 35м2 это примерно 3 вентканала круглого сечения по 160мм в диаметре) либо дверь и возможность обойтись 1 вентканалом d160мм. Пока выбрал ставить легкую перегородку из гипса и дверь. Если очень захочется можно и снести в последствии.

Важные параметры гостиной:

  • Большой ТВ - или даже домашний кинотеатр, безусловно да.
  • Место для посиделок - Большой угловой диван, или диван с парой кресел. Уютное место посидеть в компании или поиграть в настольные игры.
  • Журнальный столик - я не читаю журналы, но куда то же надо поставить кружку пива и миску чипсов. Скорее всего будет круглый.
  • Камин - всегда мечтал о камине, хотя бы небольшом. Ломаю голову взять дровяной в камне или 3д электро камин с эффектом пламени.
  • Место для новогодней елки - надо все предусмотреть, и куда поставить новогоднюю красавицу тоже.

Планировка гостинной
Планировка гостинной

Санузел

Самое главное, в частном доме должно быть 2 санузла, тем более когда в семье 3 девочки. Ну и конечно не забываем про оптимизацию коммуникаций. Санузлы следует располагать рядом. А если на разных этажах, то друг над другом.

Унитаз и раковина - ну это понятно.

Душевая - у меня получилось две душевых. На первом этаже это само собой, а на втором, поставил потому что решил делать сауну. Хорошо из сауны под холодный душ и обратно в жар сауны.

Ванная - для меня наличие ванны обязательно. Разместил на втором этаже, там и места в санузле хватает, и спален больше.

Сушильная машина - у самого никогда не было. На работе имеется, удобная вещь. Стиральную и сушильную машину буду размещать под лестницей. От санузла возможно отделю декоративной занавеской.

Мини сауна - вот такая блажь. Видел в нескольких домах и тоже захотелось, почему нет. Мастерить буду сам и обязательно опишу процесс.

Санузлы моего дома.
Санузлы моего дома.

В обоих санузлах предусмотрены небольшие окна. В частном доме, если есть возможность, лучше сделать.

Топочная

С топочной все просто, это место для размещения инженерии дома. минимальный размер при газовом отоплении 5+ квадратных метров, в зависимости от высоты потолков. При потолках в 3 метра можно ограничится 5м2. Считайте что бы в помещении было 15м3.

Ввод коммуникаций в дом уместнее всего организовать через топочную. Там можно повесить электрощит, установить водоподготовку, предусмотреть ревизию для канализации. Также в ней можно разместить шкаф слаботочки, комплект резервного питания (Инвертор и несколько аккумуляторов)

Читал в комментариях, что в топочной можно установить стиральную и сушильную машину. Ну не знаю, если у вас дом маленький а топочная большая, может быть.

Раньше я и сам думал, что еще можно разместить в топочной? Мне казалось, что слишком много места отведено для котла. Пока я не стал проектировать топочную. Оказалось что в ней довольно много оборудования надо разместить, и места едва хватает.

Прихожая

Прихожая в условиях климата Подмосковья - должна быть. При моих габаритах дома, прихожая получилась не такой большой как хотелось. Пришлось откусить кусочек от кухни, что бы сделать мини гардеробную для хранения верхней одежды и обуви.

В прихожей для меня было важно разместить:

  • Шкаф с зеркалом и ящичками для разных мелочей - как правило там лежат: ложка для обуви, ключи, перчатки и прочая мелочь. А в зеркало удобно посмотреть перед выходом или наоборот, по приходу в дом.
  • Вешалка с мягким пуфом - для вещей частого использования и для гостей.
  • Вместительный шкаф (мини гардеробная) для хранения - верхней одежды и обуви.
  • Шкаф ниша - в холле смог найти местечко где его разместить. Вероятнее всего там будет хранится всякая полезная мелочевка для уборки по дому, инструменты, запасные лампочки, батарейки и прочее.
Прихожая и холл
Прихожая и холл

Вероятно, дополнительно в холле размещу еще и небольшую антресоль.

Спальни

Со спальнями дело обстояло следующим образом. Две самые большие спальни я отвел дочерям. Важным моментом являлось наличие места для установки детской кровати, а то и двух. Дети быстро растут, старшей уже 19 и до внуков недалеко.

В остальном спальни как спальни.

Кровать двуспальная - минимум 160см шириной, лучше 180см. Проходы вокруг кровати - минимальный 60см, лучше 70-80см.

Прикроватные тумбочки - решил заменить комодами, как более вместительными. Лампу для чтения книг можно и на комод поставить, а еще в нем можно хранить нижнее белье и прочие мелочи.

Тумба под ТВ - возможно тоже заменю вместительным комодом, но еще не решил. Мне то особо много места не надо, а вот у девчонок столько шмотья, пусть сами решают. Мне не так важно на чем будет стоять ТВ - на тумбе, комоде или вообще висеть на стене.

Шкаф для хранения с вешалками - куда без него.

Спальни
Спальни

В комнате на первом этаже, есть возможность разместить подвесные шкафы для хранения (например спальных принадлежностей) над изголовьем кровати. А также есть ниша под лестницей. Я всегда стремлюсь использовать пространство по максимуму.

Также хочется отметить размещение окна относительно кровати. Оно должно быть с боку, другие варианты мне не нравятся.

В заключении хочу сказать, проектируя дом я старался сделать его как можно компактнее, но при условии размещения в нем всего выше перечисленного. Хотел уложиться в размер 10х9 метров, не получилось. Пришлось еще немного расширить. В итоге дом стал 10.2х9.2 метра.

Читал некоторые комментарии - зачем тебе такой большой дом. Скорее всего никто не будет приезжать и т.д.

Во первых, я не считаю его большим, 150м2 это не так много для дома. А во вторых, если строить дом маленьким, вы заранее обрекаете себя на одиночество. Вряд ли ваши повзрослевшие дети приедут к вам всей семьей, зная что места удобно разместиться нет.

Классический загородный дом - это 3-4 комнаты. В 2-ух комнатах со временем станет тесновато, дети быстро растут. Предполагать что дети вырастут и сами себе построят, можно, почему нет. Но цены на строительство стремительно растут, а детям еще и машину покупать, и квартиру, и обустраивать ее. И скорее всего им вообще будет не до строительства. Лет так до сорока минимум.

Примерно так я рассуждал планируя строительство своего дома. А на этом все, ставьте лайки, подписывайтесь на канал, оставляйте комментарии.

Также вам может быть интересно: