Добавить в корзинуПозвонить
Найти в Дзене
GREY HOUSE

Фотоотчет о строительстве каркасного дома

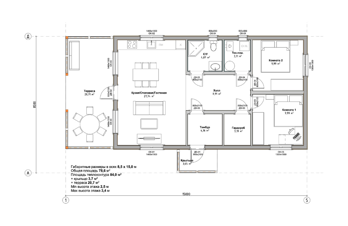
Технические характеристики дома: - Площадь: 118 м2 - Габариты: 8,5х15 м - Высота потолка: 2,5-3,5 м - Количество спален - 2 - Терраса- 20 м2 Срок строительства -2 месяца Приглашаем на просмотр дома 8 и 9 марта! 1. Подготовка 2. Организация строительства 3. Фундамент 4. Основание и пол дома 5. Стены 6. Перегородки 7. Окна и двери 8. Кровля 9. Терраса Приглашаем на просмотр дома который состоится 8-9 сентября в пос. Семейный Некст 2 , Солнечногорский р-н, Московская обл. Запись на просмотр обязательна - What’s App Наши преимущества: 1. Бригады: постоянные, история строительства (фотоотчеты), можно выбрать понравившуюся бригаду, можно посетить строящиеся объекты, почитать отзывы клиентов
2. Документация: детальная смета, чертежи дома в соответствии с нормами, разработанные конструктором
3. Премиальное качество и разумная цена Стоимость дома - https://grey-house.ru/object/next/ ***
Все новости читайте в нашем телеграм-канале Подписывайтесь на нашу группу Вконтакте И, конечно же, подписывай
Оглавление

Технические характеристики дома:

- Площадь: 118 м2

- Габариты: 8,5х15 м

- Высота потолка: 2,5-3,5 м

- Количество спален - 2

- Терраса- 20 м2

Срок строительства -2 месяца

Приглашаем на просмотр дома 8 и 9 марта!

Планировка дома

Дом Химос
Дом Химос

Визуализация дома Химос

Монтаж фундамента

Строительство дома

Обвязка фундамента
Обвязка фундамента
Монтаж чернового пола
Монтаж чернового пола
Монтаж нулевого перекрытия
Монтаж нулевого перекрытия
Строительство каркаса дома
Строительство каркаса дома
Строительство перегородок
Строительство перегородок
Монтаж стропильной системы
Монтаж стропильной системы
Монтаж стропильной системы
Монтаж стропильной системы
Монтаж пароизоляции
Монтаж пароизоляции
Утепление кровли
Утепление кровли
Монтаж металлочерепицы
Монтаж металлочерепицы
Монтаж ветрозащиты
Монтаж ветрозащиты
Монтаж фасада
Монтаж фасада
Обрешетка пола для настила OSB
Обрешетка пола для настила OSB
Подшивка потолка террасы
Подшивка потолка террасы
Подшивка свесов кровли
Подшивка свесов кровли


Комплектация дома

1. Подготовка

  • Выезд инженера на участок
  • Геодезия и анализ грунтов
  • Эскизное проектирование
  • Разработка проекта (АР/КР)

2. Организация строительства

  • Размещение бригады строителей в собственной бытовке
  • Доставка и хранение материалов на объекте
  • Технический надзор
  • Фото/видео фиксация хода работ

3. Фундамент

  • Выезд мастера для замера фундамента и определения длины свай
  • Бетонные сваи 150х150 мм длиной 3 м
  • Металлические оголовки
  • Доставка и монтаж свай

4. Основание и пол дома

  • Обвязочный брус 150х150 мм
  • Половые лаги - сухая строганная доска 35х195 мм
  • Обработка антисептиком Neomid/Medera
  • Ветро-влаго защита Изоспан
  • Черновой пол 25 мм
  • Пароизоляция Ютафол (Чехия) с проклейкой стыков скотчем Delta
  • Утепление Кнауф 200мм
  • Металлическая сетка от грызунов
  • Покрытие пола - ОСП 18 мм по обрешетке из доски 20х100 мм

5. Стены

  • Стойки - сухая строганая доска 35х145 мм
  • Ветрозащитная мембрана Изоспан
  • Бруски вентзазора 20х40 мм
  • Утепление Технониколь 200мм
  • Отделка снаружи - Скандинавская доска с заводской покраской
  • Отделка внутри - евровагонка 12,5 мм "АБ"

6. Перегородки

  • Доска сухая строганная 35х95 мм
  • Утепление Кнауф 100мм
  • Отделка внутри - евровагонка 12,5 мм "АБ"

7. Окна и двери

  • Окна ПВХ 60 мм
  • Двери ПВХ 60 мм

8. Кровля

  • Тип кровли - металлочерепица
  • Марка - GrandLine 0,45 мм PE
  • Ветрозащита Изоспан AQ
  • Утепление Кнауф 200мм
  • Контробрешетка - брусок 40 мм
  • Обрешетка - доска обрезная 25х100 мм
  • Обработка антисептиком Neomid/Medera
  • Подшивка свесов - софиты
  • Ветровая и торцевая доска - доска сухая строганая двойная

9. Терраса

  • Покрытие пола - терраса доска 28 мм лиственница палубная/вельвет
  • Декоративное ограждение - доска 45х95-145 мм
  • Отделка потолка - Скандинавская доска с заводской покраской

Приглашаем на просмотр дома который состоится 8-9 сентября в пос. Семейный Некст 2 , Солнечногорский р-н, Московская обл. Запись на просмотр обязательна - What’s App

Наши преимущества:

1. Бригады: постоянные, история строительства (фотоотчеты), можно выбрать понравившуюся бригаду, можно посетить строящиеся объекты, почитать отзывы клиентов
2. Документация: детальная смета, чертежи дома в соответствии с нормами, разработанные конструктором
3. Премиальное качество и разумная цена

Стоимость дома - https://grey-house.ru/object/next/

***
Все новости читайте в нашем телеграм-канале

Подписывайтесь на нашу группу Вконтакте

И, конечно же, подписывайтесь на нас в «Дзене»

Наши контакты:
Телефон:
8-495-504-71-33
mail@grey-house.ru
Сайт:
grey-house.ru