Найти в Дзене

Планировки пяти одноэтажных домов 130 - 140 м2, и подборка готовых проектов

В прошлой публикации рассматривали дома до 130 м2, продолжаем наращивать площадь. Планировка одноэтажного дома 130-140 м² может быть гибкой: от классики до современных экспериментов. Главное — учесть потребности семьи и грамотно распределить пространство, чтобы каждый метр работал на ваш комфорт. Эта площадь позволяет разместить 3-5 спален в разной композиции, просторную дневную зону, подсобные площади. ✔️ Все проекты в подборке - готовые. Можно заказать, перейдя на сайт по ссылкам под планами, и получить рабочую документацию для строительства в течение 1-2 дней у автора-архитектора. Проект современного одноэтажного дома 11 х 17 для длинного участка, без террасы. Три спальни, совмещенная кухня-гостиная (в галерее 2 разных планировки В) Подробнее о доме в статье 👇 ✅ Проект дома готовый. Порядок заказа чертежей на основном сайте Проект квадратного одноэтажного дома 13 х 13 из газобетона, с 4 спальнями по разные стороны гостиной, без террасы. В галерее 4 планировки Подробнее о доме в ста
Оглавление

В прошлой публикации рассматривали дома до 130 м2, продолжаем наращивать площадь.

Планировка одноэтажного дома 130-140 м² может быть гибкой: от классики до современных экспериментов. Главное — учесть потребности семьи и грамотно распределить пространство, чтобы каждый метр работал на ваш комфорт. Эта площадь позволяет разместить 3-5 спален в разной композиции, просторную дневную зону, подсобные площади.

✔️ Все проекты в подборке - готовые. Можно заказать, перейдя на сайт по ссылкам под планами, и получить рабочую документацию для строительства в течение 1-2 дней у автора-архитектора.

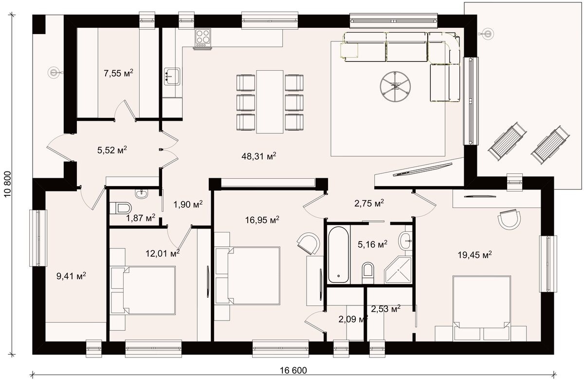
1. САРДИНИЯ 132 м2 - для длинного участка

Проект современного одноэтажного дома 11 х 17 для длинного участка, без террасы. Три спальни, совмещенная кухня-гостиная (в галерее 2 разных планировки В)

Подробнее о доме в статье 👇

САРДИНИЯ 132 м2 - проект современного одноэтажного дома 11х17 для длинного участка
Инваполис - проекты рациональных домов 23 апреля 2021

✅ Проект дома готовый. Порядок заказа чертежей на основном сайте

2. ТАГАНРОГ 135 м2 - квадратный 13х13

Проект квадратного одноэтажного дома 13 х 13 из газобетона, с 4 спальнями по разные стороны гостиной, без террасы. В галерее 4 планировки

Подробнее о доме в статье 👇

ТАГАНРОГ 135 м2 - проект одноэтажного дома 13х13 из газобетона, с 4 спальнями, без террасы
Инваполис - проекты рациональных домов 31 августа 2022

✅ Проект дома готовый. Порядок заказа чертежей на основном сайте

3. БОРА-БОРА 135 м2 - с большими детскими

Проект удобного одноэтажного дома с мастер-спальней и двумя большими детскими

-3

Подробнее о доме в статье 👇

БОРА-БОРА 135 м2 - проект удобного одноэтажного дома с тремя большими спальнями
Инваполис - проекты рациональных домов 3 августа 2021

✅ Проект дома готовый. Порядок заказа чертежей на основном сайте

4. ВИЛЛА ВАЛЛЕТТА 140 м2 - с эркерами

Проект итальянского одноэтажного дома с двумя эркерами, 4 спальни и совмещенная гостиная. В галерее - три варианта плана

Подробнее о доме в статье 👇

Итальянский дом с эркерами - ВИЛЛА ВАЛЛЕТТА 140 м2
Инваполис - проекты рациональных домов 16 июля 2020

✅ Проект дома готовый. Порядок заказа чертежей на основном сайте

5. ТОЛЬЯТТИ 140 м2 - как Таганрог, но с террасой

Проект просторного одноэтажного дома с террасой, с тремя или четырьмя комнатами. С несущими стенами.

-5

Подробнее о доме в статье 👇

✅ Проект дома готовый. Порядок заказа чертежей на основном сайте

✔️ Все проекты в подборке - готовые. Можно заказать, перейдя на сайт по ссылкам под планами, и получить рабочую документацию для строительства в течение 1-2 дней у автора-архитектора.
Напоминаем, что на основном сайте 👀 каталог из более чем 200 готовых проектов домов, половина из них - одноэтажные.

► Если Вам интересны наши работы, подписывайтесь на канал ИНВАПОЛИС-ДЗЕН, смотрите обзоры проектов, участвуйте в обсуждениях с авторами.

► Также следить за новостями можно в ТЕЛЕГРАММ-КАНАЛЕ ИНВАПОЛИС