Найти в Дзене

ТОЛЬЯТТИ 140 м2 - проект просторного одноэтажного дома с террасой

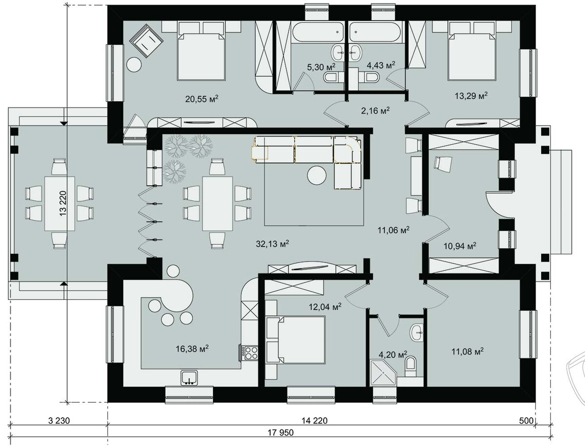
ТОЛЬЯТТИ - проект просторного 4-комнатного капитального дома 140 м2 с террасой, с четырехскатной крышей, стенами из газобетона и облицовочного кирпича. Дом рассчитан на строительство на участке шириной от 20 метров и проживание семьи из 4-6 человек. ПЛАНИРОВКА Середину дома занимают просторная прихожая, холл и гостиная со столовой и террасой. Справа от входа - две изолированных комнаты, - мастер-спальня с собственной ванной и комната поменьше. Слева - жилая комната, кладовая или котельная и, и кухня. Под крышей есть холодный чердак, удобный для трассировки коммуникаций. Планировка обеспечивает правильное зонирование помещений и комфортное пребывание всех жильцов. Общие помещения объединены в единое пространство и взаимно просматриваются. Оформить помещения можно в классическом стиле или на современный лад. ВНЕШНИЙ ВИД В отделке стен совместили облицованные натуральным камнем цокольную часть, кирпичные стены и немного светлых деталей, выполненных из штукатурки или пенополиуретана. Фаса
Оглавление

ТОЛЬЯТТИ - проект просторного 4-комнатного капитального дома 140 м2 с террасой, с четырехскатной крышей, стенами из газобетона и облицовочного кирпича.

Дом рассчитан на строительство на участке шириной от 20 метров и проживание семьи из 4-6 человек.

ПЛАНИРОВКА

Середину дома занимают просторная прихожая, холл и гостиная со столовой и террасой. Справа от входа - две изолированных комнаты, - мастер-спальня с собственной ванной и комната поменьше. Слева - жилая комната, кладовая или котельная и, и кухня. Под крышей есть холодный чердак, удобный для трассировки коммуникаций.

-2

Планировка обеспечивает правильное зонирование помещений и комфортное пребывание всех жильцов. Общие помещения объединены в единое пространство и взаимно просматриваются.

Парадная обеденная группа размещена в гостиной, а будничные завтраки могут происходить в кухне - в ней вполне помещается небольшой стол или барная стойка. Кухня может быть отделена перегородкой от гостиной.
Парадная обеденная группа размещена в гостиной, а будничные завтраки могут происходить в кухне - в ней вполне помещается небольшой стол или барная стойка. Кухня может быть отделена перегородкой от гостиной.

Оформить помещения можно в классическом стиле или на современный лад.

Гостиная вмещает большой диван перед телевизором. В зависимости от семейного уклада, - вместо телевизора можно сделать камин, а телевизор перенести в зону столовой.
Гостиная вмещает большой диван перед телевизором. В зависимости от семейного уклада, - вместо телевизора можно сделать камин, а телевизор перенести в зону столовой.

ВНЕШНИЙ ВИД

В отделке стен совместили облицованные натуральным камнем цокольную часть, кирпичные стены и немного светлых деталей, выполненных из штукатурки или пенополиуретана.

-5

Фасады дома могут быть светлые с темным декором, или наоборот. Характер отделки оставляет простор для творчества будущих хозяев. Четырехскатная крыша и терраса с колоннами добавляет стилю средиземноморские нотки.

КОНСТРУКТИВНЫЕ РЕШЕНИЯ

Фундамент - монолитная лента до глубины промерзания (возможно изменение конструкции «по месту»)
Стены – 300 мм газоблок с утеплением и облицовкой фасадным кирпичом
Перекрытие - пол по грунту, чердачное перекрытие - деревянное утепленное
Крыша – четырехскатная холодная, «конвертом»

СОСТАВ ГОТОВОГО ПРОЕКТА ДОМА

Рабочая документация для проекта одноэтажного дома 140 м2 ТОЛЬЯТТИ разработана в типовом составе - паспорт для согласования в органах контроля за строительством, и строительно – конструктивный раздел (рабочая документация) для строительства

  • Информацию для заказа чертежей Вы можете найти на странице дома на нашем основном сайте.
  • Другие проекты одноэтажных домов ИНВАПОЛИС здесь...
  • Если Вам интересны наши проекты, подписывайтесь на канал ИНВАПОЛИС-ДЗЕН, смотрите обзоры и подборки домов, задавайте вопросы авторам в комментариях.