Добавить в корзинуПозвонить
Найти в Дзене

Пять одноэтажных коттеджей 120 - 130 м2, - планировки и подборка проектов.

В прошлой публикации рассматривали дома площадью до 120 м2, продолжаем увеличивать метраж представленных домов. Сегодня пять проектов - три квадратных дома и два длинных. Здесь, как обычно, показываем только планировки. Подробности проекта можно изучить, перейдя по ссылке на соответствующую статью. !! Все проекты - готовые. Заказать документацию на строительство можно на нашем основном сайте. Это проект дома 12 на 14 с эксплуатируемым чердаком. Фасады в классическом стиле и холл с колоннами. ✅ Проект дома готовый, предоставляется в кратчайший срок. Стоимость и порядок заказа чертежей - на сайте Проект современного одноэтажного дома 12 х 12 с тремя спальнями и террасой. В галерее три варианта планировок 👇 ✅ Проект дома готовый, предоставляется в кратчайший срок. Стоимость и порядок заказа чертежей - на основном сайте Проект коттеджа с 3 спальнями, изолированной кухней и студией на чердаке ✅ Проект дома готовый, предоставляется в кратчайший срок. Стоимость и порядок заказа чертежей -
Оглавление

В прошлой публикации рассматривали дома площадью до 120 м2, продолжаем увеличивать метраж представленных домов.

Сегодня пять проектов - три квадратных дома и два длинных.

Здесь, как обычно, показываем только планировки. Подробности проекта можно изучить, перейдя по ссылке на соответствующую статью.

!! Все проекты - готовые. Заказать документацию на строительство можно на нашем основном сайте.

1. ОДНОЭТАЖНЫЙ С СЮРПРИЗОМ 120 м2

Это проект дома 12 на 14 с эксплуатируемым чердаком. Фасады в классическом стиле и холл с колоннами.

ОДНОЭТАЖНЫЙ С СЮРПРИЗОМ - проект дома 12 на 14 с эксплуатируемым чердаком
Инваполис - проекты рациональных домов 26 января 2022

✅ Проект дома готовый, предоставляется в кратчайший срок. Стоимость и порядок заказа чертежей - на сайте

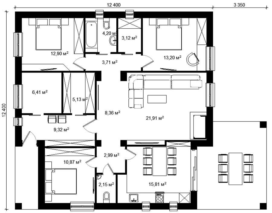
2. МАДЕЙРА 122 м2

Проект современного одноэтажного дома 12 х 12 с тремя спальнями и террасой. В галерее три варианта планировок 👇

МАДЕЙРА 122 м2 - проект современного одноэтажного дома 12х12 с тремя спальнями и террасой
Инваполис - проекты рациональных домов 16 июля 2021

✅ Проект дома готовый, предоставляется в кратчайший срок. Стоимость и порядок заказа чертежей - на основном сайте

3. ГЕОРГИН 122 м2

Проект коттеджа с 3 спальнями, изолированной кухней и студией на чердаке

ГЕОРГИН 122 м2 - проект коттеджа с 3 спальнями и студией на чердаке
Инваполис - проекты рациональных домов 21 октября 2021

✅ Проект дома готовый, предоставляется в кратчайший срок. Стоимость и порядок заказа чертежей - на основном сайте

4. БОРГО 124 м2

Проект современного одноэтажного дома 11 х 18 с тремя спальнями, из поризованного камня и кирпича. В галерее три варианта планировок 👇

БОРГО 124 м2 - проект современного одноэтажного дома 11х18 с тремя спальнями, из поризованного камня и кирпича.
Инваполис - проекты рациональных домов 20 февраля 2021

✅ Проект дома готовый, предоставляется в кратчайший срок. Стоимость и порядок заказа чертежей - на основном сайте

5. АТОЛЛ-ГРАФИТ 130 м2

Проект одноэтажного дома с тремя спальнями, для длинного участка. В галерее четыре варианта планировок 👇

✅ Проект дома готовый, предоставляется в кратчайший срок. Стоимость и порядок заказа чертежей - на основном сайте

Напоминаем, у нас есть каталог 👀 https://www.invapolis.ru/project-house/ из более чем 200 готовых проектов домов

► Чтобы не пропускать публикации, палец 👍, и подписывайтесь на канал :)

► В Телеграмм и ВК публикуем анонсы новых статей и краткие обзоры проектов