Добавить в корзинуПозвонить
Найти в Дзене

Апгрейд старого проекта - пример

Самый простой путь обзавестись проектом дома - выбрать из каталога типовых готовых. Как это сделать грамотно - можно почитать здесь. 👇 Не всегда получается выбрать подходящий готовый проект для строительства. Часто что-то нравится, а что-то не устраивает. Или не хватает...
И не все готовы связываться с индивидуальным проектированием - останавливает стоимость, срок, необходимость общения с архитектором и волнения на счет того, что вдруг результат не устроит.
Почитать об индивидуальном проектировании - нюансы процесса 👇 В таких случаях спасает адаптация готового проекта под свои нужды, корректировка. Это дешевле индивидуального проектирования, а результат более подходящий чем в типовом варианте. Нашим клиентам приглянулся дом Плёс. 👇 Внешне, по площади и составу комнат подошёл. Но хотелось, во первых - террасу, которой у него нет, а во-вторых, одну спальню побольше для себя. А две имеющиеся одинаковые - для детей. Менять проект сильно, дополняя дом капитальной террасой, не захотели,
Оглавление

Самый простой путь обзавестись проектом дома - выбрать из каталога типовых готовых. Как это сделать грамотно - можно почитать здесь. 👇

КАК ВЫБРАТЬ ПРОЕКТ - 11 признаков хорошего дома
Инваполис - проекты рациональных домов 27 марта 2022

Не всегда получается выбрать подходящий готовый проект для строительства. Часто что-то нравится, а что-то не устраивает. Или не хватает...
И не все готовы связываться с
индивидуальным проектированием - останавливает стоимость, срок, необходимость общения с архитектором и волнения на счет того, что вдруг результат не устроит.
Почитать об индивидуальном проектировании - нюансы процесса 👇

В таких случаях спасает адаптация готового проекта под свои нужды, корректировка. Это дешевле индивидуального проектирования, а результат более подходящий чем в типовом варианте.

Сегодня - одна небольшая адаптация.

Нашим клиентам приглянулся дом Плёс. 👇

ПЛЁС 110 м2 - проект классического особнячка на 3 спальни
Инваполис - проекты рациональных домов 13 марта 2022

Внешне, по площади и составу комнат подошёл. Но хотелось, во первых - террасу, которой у него нет, а во-вторых, одну спальню побольше для себя. А две имеющиеся одинаковые - для детей.

Терраса

Менять проект сильно, дополняя дом капитальной террасой, не захотели, это бы потребовало больших корректив в конструктивной части и пересмотра фасада. Решили обойтись "малой кровью", допроектировать легкую деревянную постройку 5х4 метра на собственном фундаменте на винтовых сваях. В самом доме для этого пришлось немного изменить центральную часть фасада, чтобы устроить выход.

На фото ниже было/стало и сама терраса.

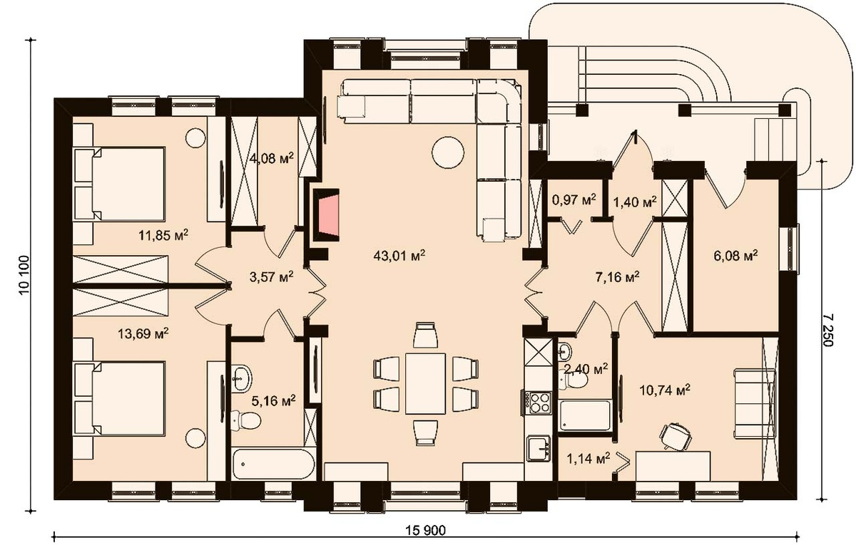
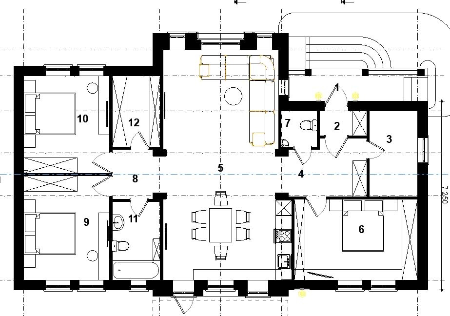
Планировка

Сначала клиенты хотели увеличить ширину дома, потому что это казалось единственным способом увеличить комнату рядом со входом и превратить ее в полноценную спальню. Но связанная с этим необходимость увеличить и другую половину дома (для сохранения внешней симметрии) напрягала... Совместными раздумьями архитекторы и будущие жильцы пришли к решению просто перенести санузел (тем более второе помывочное место эта семья не хотела), и за счет освободившегося пространства увеличить комнату. В итоге лишних трат и глобальных корректив избежали, а задачу решили.

На фото планировки: было/стало. и третий вариант, от которого отказались - с увеличенной шириной дома

В общем, если вам нравится какой-то дом, но устраивает не всё - не стесняйтесь, обращайтесь к авторам, вместе найдёте оптимальное решение :)

► Чтобы не пропускать наши публикации, реагируйте лайком 👍, подписывайтесь на канал, пишите комментарии, тогда нейросети будут показывать нас вам чаще :)