Добавить в корзинуПозвонить
Найти в Дзене
INMYROOM

До и после: Как найти дополнительные метры в типовой квартире

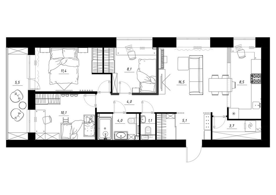
5 неочевидных приемов из реального проекта Четырехкомнатная квартира 78 квадратных метров в кирпичном доме 1978 года в подмосковном Реутове стала примером того, как можно увеличить полезную площадь без перепланировки. Дизайнер Елена Бунак поделилась приемами, которые помогли найти дополнительное пространство в типовой планировке. Первый неожиданный прием — использование подоконников. «Если у вас хорошая высота и глубина подоконников, обязательно используйте это», — советует дизайнер. На кухне и в детской сделали столешницы из массива дуба глубиной 70 сантиметров. В них предусмотрели специальные вырезы для циркуляции воздуха от радиаторов. Получились полноценные рабочие места, не занимающие дополнительной площади. «Кладовка с функцией постирочной образовалась путем объединения трех кусочков: немножко взяли из кладовки при кухне, немножко от шкафа в прихожей и кусочек коридора», — рассказывает дизайнер. В результате появилось полноценное хозяйственное помещение со стиральной и сушильно
Оглавление

5 неочевидных приемов из реального проекта

Четырехкомнатная квартира 78 квадратных метров в кирпичном доме 1978 года в подмосковном Реутове стала примером того, как можно увеличить полезную площадь без перепланировки. Дизайнер Елена Бунак поделилась приемами, которые помогли найти дополнительное пространство в типовой планировке.

Главное из статьи:

  • Подоконники превратились в рабочие места;
  • Кладовка выросла из трех небольших пространств;
  • Правильная мебель увеличила функционал узких помещений;
  • Вертикальное пространство использовано максимально;
  • Каждый угол работает на пользу.
 📷
📷

Как подоконник стал рабочим столом

Первый неожиданный прием — использование подоконников. «Если у вас хорошая высота и глубина подоконников, обязательно используйте это», — советует дизайнер. На кухне и в детской сделали столешницы из массива дуба глубиной 70 сантиметров. В них предусмотрели специальные вырезы для циркуляции воздуха от радиаторов. Получились полноценные рабочие места, не занимающие дополнительной площади.

 📷
📷

 📷
📷

Три маленьких пространства превратились в одно функциональное

«Кладовка с функцией постирочной образовалась путем объединения трех кусочков: немножко взяли из кладовки при кухне, немножко от шкафа в прихожей и кусочек коридора», — рассказывает дизайнер. В результате появилось полноценное хозяйственное помещение со стиральной и сушильной машинами, зоной для сушки белья и гладильной доской.

Узкая кухня: как сделать её удобной

Кухня шириной два метра казалась безнадежной. Решение нашлось в правильной расстановке: прямая линия гарнитура вдоль одной стены и раздвижная стеклянная перегородка, отделяющая обеденную зону. «Мы учли необходимость того, чтобы рабочая зона была увеличена и был спланирован грамотно рабочий треугольник: холодильник, раковина, плита», — объясняет дизайнер.

-5
-6
-7
-8
-9
-10

Вертикальное хранение решает все

В детской комнате площадью всего 10 квадратных метров организовали хранение игрушек и учебных принадлежностей с помощью вертикальных систем. Использовали обычный кухонный рейлинг для хранения фломастеров и канцелярии. Под кроватями разместили выдвижные ящики для игрушек.

-11
-12

 📷
📷

Обратите внимание на видео:

Как сделать прихожую вместительной

«Я неделю выспрашивала у заказчиков полный список того, что они планируют хранить», — делится дизайнер. В результате появилась продуманная система: место под верхнюю одежду, секция для длинных пуховиков, сетки для обуви, зона для сменной обуви и спортивного инвентаря, полки для сумок. При этом прихожая не выглядит загроможденной.

-14
-15
 📷
📷
 📷
📷

Спрятать коммуникации с пользой

В ванной комнате из технической необходимости сделали дизайнерский прием. Трубу холодного водоснабжения нужно было закрыть коробом, поэтому сделали симметричные короба с двух сторон. «Визуально это кажется интересным ходом, хотя на самом деле мы отталкивались от технической необходимости», — объясняет дизайнер.

 📷
📷
 📷
📷
 📷
📷

Многофункциональные элементы экономят место

Мебель, выполняющая несколько функций, помогает экономить пространство. В гостиной столик служит и пуфиком. В спальне кровать оснащена подъемным механизмом для хранения. В детской рабочий стол легко превращается в место для игр.

 📷
📷
 📷
📷
 📷
📷
 📷
📷

Опыт этой квартиры показывает, что даже в типовой планировке можно найти дополнительные квадратные метры. Главное — внимательно проанализировать пространство и потребности жильцов. Каждый сантиметр может работать на пользу, если подойти к планированию творчески, но рационально.

Сейчас читают: