Добавить в корзинуПозвонить
Найти в Дзене
TheFoodHubGroup

Ресторан на Павелецком вокзале STREET FOOD формата

Приветствуем вас на профессиональном канале ресторанного бизнеса управляющей компании ресторанами TheFoodHubGroup. +79067282801 ВНИМНЕ ЭТО ВАЖНО СМОТРИТЕ ВИДЕО ДО КОНЦА. ЭТО МИНУЕТ ЛИШНИЕ ВОПРОСЫ. АГЕНТОВ ПРОСЬБА НЕ ЗВОНИТЬ! Сегодня у нас появилось новое предложение в аренду помещения под общепит. Место локации с высоким и постоянным трафиком. В непосредственной близости от Павелецкого выказала и недавно открывшегося центра притяжения ТЦ Павелецкий. Улица Кочевническая связывает садовое кольцо с Павелецким вокзалом, метро павелецкая и торговым центром. Поэтому проходимость очень высокая и постоянная. На данном этапе мы проводим, помещение имеет черновую отделку, это дает возможность вам, как новым арендаторам, возможность заложить или указать мокрые точки и по вашему проекту сделать электроразведки. Всегда легче сделать все зразу, чем потом переделывать. Для тех, кто не знаком с нашей компанией расскажем, чем мы можем быть полезными для вас в бедующем. Мы занимаемся профессионально рес

Приветствуем вас на профессиональном канале ресторанного бизнеса управляющей компании ресторанами TheFoodHubGroup.

+79067282801

ВНИМНЕ ЭТО ВАЖНО

СМОТРИТЕ ВИДЕО ДО КОНЦА.

ЭТО МИНУЕТ ЛИШНИЕ ВОПРОСЫ.

АГЕНТОВ ПРОСЬБА НЕ ЗВОНИТЬ!

Сегодня у нас появилось новое предложение в аренду помещения под общепит.

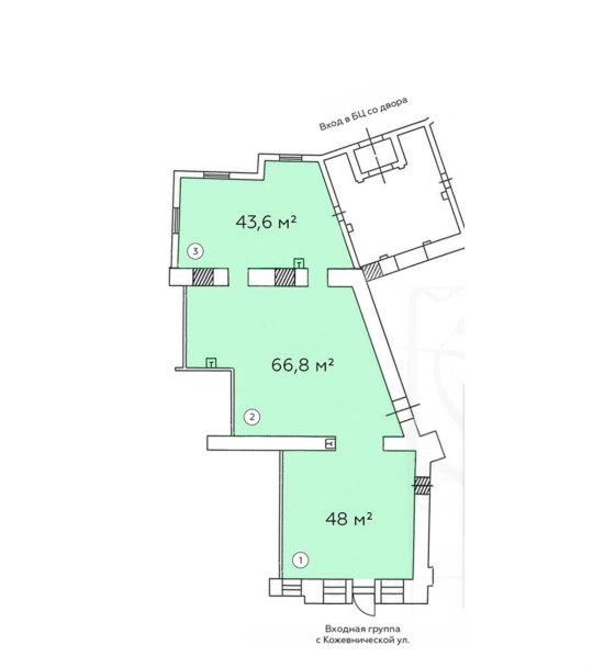
Место локации с высоким и постоянным трафиком. В непосредственной близости от Павелецкого выказала и недавно открывшегося центра притяжения ТЦ Павелецкий.

Улица Кочевническая связывает садовое кольцо с Павелецким вокзалом, метро павелецкая и торговым центром. Поэтому проходимость очень высокая и постоянная.

На данном этапе мы проводим, помещение имеет черновую отделку, это дает возможность вам, как новым арендаторам, возможность заложить или указать мокрые точки и по вашему проекту сделать электроразведки. Всегда легче сделать все зразу, чем потом переделывать.

Для тех, кто не знаком с нашей компанией расскажем, чем мы можем быть полезными для вас в бедующем.

Мы занимаемся профессионально ресторанным бизнесом уже больше 20 лет.

· Мы создаем рестораны с 0.

· Что это значит?

· Обсуждаем ваши предпочтения к проектору и формату. Концепции.

· Подбираем помещение под заданный формат, на это уходит от месяца до полугода.

· Разрабатываем концепцию бедующего ресторана, рельсы по которым должен двигаться ресторан, что бы проект получился целостным.

· Разрабатываем дизайн проект, включая, расстановку кухонного оборудования.

· Подбираем подираем персонал, обучаем и проводим тренинги по вину, пиву и ресторанному этикету.

· Настраиваем бухгалтерский учет и учет движения, товара.

· В нашей команде работают лучшие специалисты PR продвижения, которые сотрудничают с самыми известными изданиями о ресторанном бизнесе.

· Конечно, мы разрабатываем меню, винную и барную карту. У нас много ресторанов и взаимодействия с поставщиками многолетнее, что позволяет нам иметь скидки на уровне сетевых проектов.

· Мы так же проводим ребрендинг плохо работающих ресторанов и берем проекты с долгами под управление.

· Арендодателям мы поможем сдать помещение надежным арендаторам под общественное питание.

· Мы поможем продать ресторан, как как готовый бизнес.

Вернемся к сегодняшнему предложению.

В помещении уже есть выводы под вентиляцию. Улица при входе в помещение после генеральной реконструкции и увеличена, что позволят сделать летнюю террасу.

На входе витринное окно от потолка до пола. А фасад есть возможность декорировать под вашу концепции. Так помещение угловое, ваш проект будет виден с любой точки павелецкой площади.

По нашему мнению, идеальное помещение под стритфуд формат с умеренными ценами. В Loft интерьер с современными элементами.

Возможно, пивной ресторан, в общем любой формат, рассчитанный на широкий потребительский спрос, “народный ресторан-бар”.

Исторически в этом помещении находился ресторан более 20 лет.

Локация проверенная.

Конкурентная среда стреловая “Вареничная N1”, Чайхана “Айва”

Мощность электричества 100 кВт. Здание не жилое. Есть возможность установить мангал и работать 24 на 7.

Каникулы предоставляем, цену и прочие моменты аренды, обсуждаем с надежными и уверенными в себе и бизнесе арендаторами.