Добавить в корзинуПозвонить
Найти в Дзене

Почему я сознательно ухудшил проект своего дома? У меня не было выбора.

Друзья, всем привет! С вами Сергей Горбунов - автор одноименного канала про строительство и обустройство загородного дома. Для тех кто еще на меня не подписан, вкратце напомню, что дом я строил своими силами, но на начальном этапе мы планировали строить с фирмой-подрядчиком, и даже заключили договор и нам возвели фундамент. Итак, мы нашли подрядчика, определились с проектом одноэтажного дома 9х11, заключили договор и начали монтаж фундамента. Вот изначальный проект дома, который мы планировали построить: В целом в данном проекте нас все устраивало, и я до сегодняшнего дня считаю данную планировку очень удачной: Мы даже посмотрели дом такого же проекта уже на этапе строительства и нам все понравилось. Сам фундамент под этот дом был свайно-ростверковый с плитами перекрытия. Смотрите иллюстрацию: И вот тут, уже после расставания с фирмой-подрядчиком и обращения за консультацией к независимым экспертам, по поводу качества строительных работ, нам указали на очень грубую ошибку в проекте. О

Друзья, всем привет! С вами Сергей Горбунов - автор одноименного канала про строительство и обустройство загородного дома.

Наша кухня-гостиная - площадь 40 кв. м.
Наша кухня-гостиная - площадь 40 кв. м.

Для тех кто еще на меня не подписан, вкратце напомню, что дом я строил своими силами, но на начальном этапе мы планировали строить с фирмой-подрядчиком, и даже заключили договор и нам возвели фундамент.

Итак, мы нашли подрядчика, определились с проектом одноэтажного дома 9х11, заключили договор и начали монтаж фундамента.

Вот изначальный проект дома, который мы планировали построить:

Наш изначальный проект дома. @ Горбунов Сергей
Наш изначальный проект дома. @ Горбунов Сергей

В целом в данном проекте нас все устраивало, и я до сегодняшнего дня считаю данную планировку очень удачной:

  • есть тамбур при входе;
  • есть небольшая котельная, где можно разместить и удобно обслужить котел, бойлер и все необходимое инженерное оборудование. Еще бы я там обязательно сделал раковину и подвел канализацию.
  • кухня-гостинная 4х8 метров и две спальни по 12 кв. м каждая.
  • Плюс еще заключается в том, что входная группа находится под навесом крыши.

Мы даже посмотрели дом такого же проекта уже на этапе строительства и нам все понравилось.

Это стены дома, который мы смотрели на этапе строительства перед заключением договора. @ Горбунов Сергей
Это стены дома, который мы смотрели на этапе строительства перед заключением договора. @ Горбунов Сергей

Сам фундамент под этот дом был свайно-ростверковый с плитами перекрытия. Смотрите иллюстрацию:

Проект фундамента, если это можно назвать проектом. @ Горбунов Сергей
Проект фундамента, если это можно назвать проектом. @ Горбунов Сергей

И вот тут, уже после расставания с фирмой-подрядчиком и обращения за консультацией к независимым экспертам, по поводу качества строительных работ, нам указали на очень грубую ошибку в проекте.

Оказывается, что фактически несущие внутренние стены дома опираются на плиты перекрытия, что является недопустимым. Фактически, подрядчик сознательно сэкономил и вместо двух лент фундамента внутри дома залил только одну по середине.

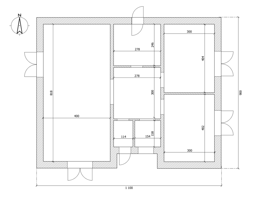
Поэтому вполне логичным, что мы изменили планировку дома под существующий фундамент. В итоге у нас появилась одна несущая стена, которая находилась как и положено на фундаменте:

Вот что у нас получилось в итоге. Фото автора.
Вот что у нас получилось в итоге. Фото автора.

Также в одном из проектных бюро, нам предлагали еще вот такую планировку:

Вариант планировки от которого мы отказались? @ Горбунов Сергей
Вариант планировки от которого мы отказались? @ Горбунов Сергей

А вы бы какую планировку выбрали, оказавшись на нашем месте?

Подробнее что у нас получилось можно посмотреть в видео - фактически это экскурсия по нашему дому уже с завершенным ремонтом:

Если вы давно читаете мои статьи, но еще не подписаны, то есть отличный повод подписаться на канал Сергей Горбунов в Яндекс.Дзене, чтобы не пропустить новые публикации. Спасибо за прочтение!

Собрал для вас все статьи про свой загородный дом по тегу: #горбунов_дом

Читайте также: