Найти в Дзене
Столярка дома

Отдаю чертежи проверенного временем универсального верстака для домашней мастерской

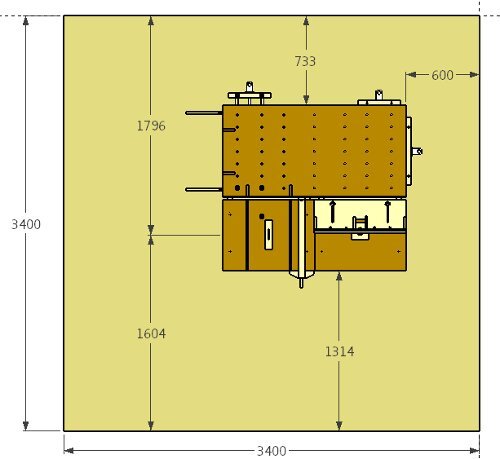
Это рабочее место с модулями для распиловки, фрезерования, тисками для закрепления деталей, местом для хранения инструмента, а также с модулем для фуганка и рейсмуса. Это основное приспособление, устройство, станки вокруг и с помощью которого работаю в своей домашней мастерской. Служит мне это рабочее место уже почти 6 лет. За это время какие-то элементы намного изменялись или дополнялись, но в целом конструкция осталась без изменения. Конструкцию я разрабатывал модульную, чтобы данный верстак можно было размещать помещениях разного размера, в том числе и маленьких. Ниже предлагаю посмотреть планы возможной конфигурации верстака с размерами для разных помещений. (Листайте галерею) За время работы на этом верстаке я сделал несколько изменений, которые не затрагивают основную конструкцию. Заменил столешницу верстака. Для распиловочного модуля поменял рабочую поверхность, добавил Т-трек для углового упора и добавил магнитный пускатель для включения пилы. Для фрезерного модуля также обно

Это рабочее место с модулями для распиловки, фрезерования, тисками для закрепления деталей, местом для хранения инструмента, а также с модулем для фуганка и рейсмуса.

Чертеж универсального верстака. Разработка автора
Чертеж универсального верстака. Разработка автора

Это основное приспособление, устройство, станки вокруг и с помощью которого работаю в своей домашней мастерской. Служит мне это рабочее место уже почти 6 лет. За это время какие-то элементы намного изменялись или дополнялись, но в целом конструкция осталась без изменения.

Конструкцию я разрабатывал модульную, чтобы данный верстак можно было размещать помещениях разного размера, в том числе и маленьких.

Ниже предлагаю посмотреть планы возможной конфигурации верстака с размерами для разных помещений. (Листайте галерею)

За время работы на этом верстаке я сделал несколько изменений, которые не затрагивают основную конструкцию.

Заменил столешницу верстака.

Для распиловочного модуля поменял рабочую поверхность, добавил Т-трек для углового упора и добавил магнитный пускатель для включения пилы.

Для фрезерного модуля также обновил рабочую поверхность, добавил трек для каретки и переделал упор.

Подробнее можно посмотреть в ранней публикации.

На этом верстаке удачно разместился фуговально-рейсмусовый станок. Одно из креплений для съемного модуля я опустил ниже и теперь этот станок занял свое место на верстаке.

Новое место для фуговально-рейсмусового станка. Фото автора
Новое место для фуговально-рейсмусового станка. Фото автора

Упор фуганка легко снимается, чтобы можно было без проблем пользоваться циркуляркой. Хранится упор под фуганком, подвешиваясь в уголках, на которых стоит станок.

Также сделал новые тиски для верстака.

Новые тиски перед установкой столешницы. Фото автора
Новые тиски перед установкой столешницы. Фото автора

Подробно о конструкции этих тисков можно посмотреть здесь.

Недавно также сделал комплект выдвижных ящиков, которые установил внутрь основного стола. Ящики предназначены для различной мелочевки.

Выдвижные ящики для верстака. Фото автора
Выдвижные ящики для верстака. Фото автора

Чертежи этого рабочего места можно скачать по ссылкам ниже. В архиве PDF файл с чертежами и 3D модель для программы SketchUp.

Скачать с Яндекс - диска

Скачать с Google - диска

Ещё в дополнение: когда менял рабочую поверхность на распиловочном и фрезерном модуле отказался от регулировки модуля с помощью винтов. Эти модули у меня стоят на одном месте, только иногда снимаются, поэтому выровнял эти модули с основным столом для конкретного места. А в чертежах показан способ регулирования съёмного модуля при установке в любом предусмотренном месте.

Спасибо что дочитали. Буду рад вашей поддержке в виде лайка и подписки на канал. И смотрите другие публикации на канале.

Александр.

P.S. Приглашаю также на свой сайт.