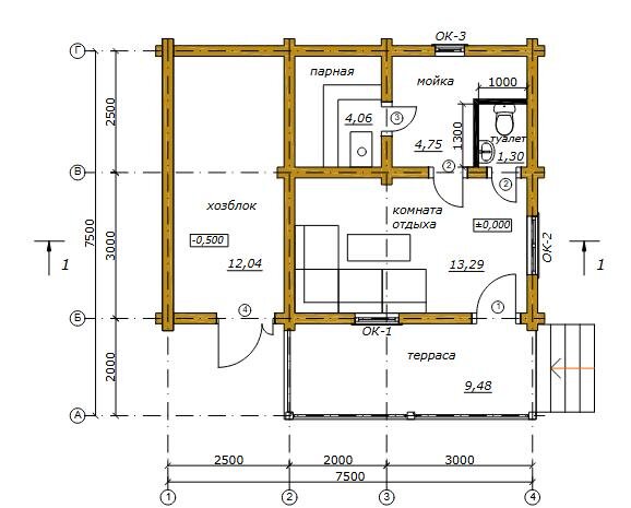
Я сделала несколько видео и статей о планировании и зонировании нашего участка (эскиз ландшафтного дизайна я выполняла сама) [1]. Но в этих статья и видео часто спрашивают о планировке нашей дачи и бани. Сегодня расскажу о последней. Я уже показывала нашу баню изнутри [2]. Но сегодня расскажу о планировке. Планировку бани делали сами. Изначально баня планировалась так, чтобы можно было и разместить гостей, если они не влезут в наш дом (и такое бывает, представьте)). Так же вместе с баней у нас совмещен хозблок (сарай), который изначально планировался холодным. Ну и небольшая веранда-терраса, где можно посидеть и остыть, во время банных процедур. В итоге у нас получился следующий вариант планировки: В принципе всё сделали по проекту. Первый год мы сами ночевали в этой бане вчетвером. И, как всегда бывает, после начала эксплуатации, вылезли и недостатки проекта [3]. Улучшения проекта Зимой эту зону заметает снегом по грудь, и не пройти ни к дровам ни к аварийному туалету. В принципе, эт
Планировка бани: какие ошибки допустили и что бы мы изменили сейчас
19 июля 202119 июл 2021
3537
3 мин
