Добавить в корзинуПозвонить
Найти в Дзене

Высолы на стенках набережных Санкт-Петербурга - обратная сторона природоохранного законодательства

Гранитные набережные Санкт-Петербурга - урбанистическая достопримечательность Северной Венеции и важнейший элемент градостроительного ландшафта, объекты культурного наследия. "Одевать" берега дельты Невы в гранитные высокие подпорные стенки начали с 1780 года. Историческая конструкция большинства набережных Санкт-Петербурга представляет собой массивную бутовую кладку из известняковых блоков, скрепленных между собой известковым раствором и уложенных на деревянные сваи. Снаружи бутовая кладка облицована гранитными блоками, поверху которых уложены тротуарные плиты и установлены кордонные камни с декоративным металлическим ограждением, закрепленным в гранитные тумбы. Пример "нетиповой" конструкции набережной для Санкт-Петербурга смотрите в статье "Набережную вокруг стадиона "Петровский" разобрали до основания. Как это было". Плачущие набережные Подобно тому, как растекается тушь по щекам с ресниц заплаканных девушек, по гранитным стенкам набережных течёт известковый раствор. У набережных
Оглавление

Гранитные набережные Санкт-Петербурга - урбанистическая достопримечательность Северной Венеции и важнейший элемент градостроительного ландшафта, объекты культурного наследия. "Одевать" берега дельты Невы в гранитные высокие подпорные стенки начали с 1780 года.

Историческая конструкция большинства набережных Санкт-Петербурга представляет собой массивную бутовую кладку из известняковых блоков, скрепленных между собой известковым раствором и уложенных на деревянные сваи. Снаружи бутовая кладка облицована гранитными блоками, поверху которых уложены тротуарные плиты и установлены кордонные камни с декоративным металлическим ограждением, закрепленным в гранитные тумбы.

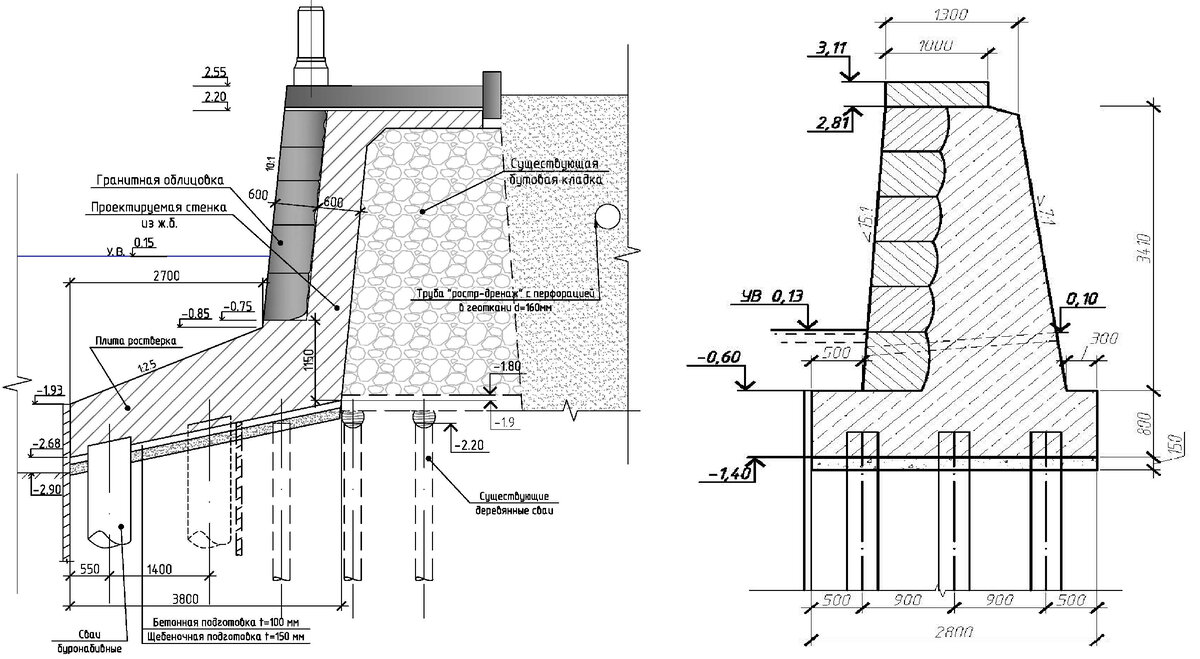
Конструкции набережной: справа - историческая конструкция подпорной стенки на деревянных сваях; слева - конструкция, усиленная ж.б. каблуком на буронабивных сваях
Конструкции набережной: справа - историческая конструкция подпорной стенки на деревянных сваях; слева - конструкция, усиленная ж.б. каблуком на буронабивных сваях

Пример "нетиповой" конструкции набережной для Санкт-Петербурга смотрите в статье "Набережную вокруг стадиона "Петровский" разобрали до основания. Как это было".

Плачущие набережные

Подобно тому, как растекается тушь по щекам с ресниц заплаканных девушек, по гранитным стенкам набережных течёт известковый раствор. У набережных Питера ранимая душа? Возможно. Но "подлечить душу" набережным, как оказалось, не так уж и просто.

Ни у кого не возникает вопросов, если белые подтёки "украшают" стенки набережных, которых никто давно не ремонтировал. Совсем другое дело, если подтёки появляются на вновь отреставрированных участках.

Тому пример 100-метровый участок правого берега набережной канала Грибоедова от Харламова до Ново-Никольского моста, запроектированный ГУП "Ленгипроинжпроект" в 2011, ремонтно-реставрационные работы по которому были проведены в 2013 году ЗАО "ПИЛОН". Набережная буквально заливается известковыми слезами!

Состояние отремонтированного участка
Состояние отремонтированного участка

Неужели ничего нельзя было сделать, имея современные строительные материалы? - задастся вопросом человек, непосвящённый в петербургские тайны градостроительства.

Простое решение не пропустила Главгосэкспертиза

В 2013-2014 мне посчастливилось принять участие в разработке проектной документации на капремонт набережной канала Грибоедова от дома 133 до Могилёвского моста, правый берег.

Гениальным конструктором-гидротехником Матвеевой Н.В. было предложено решение "осчастливить' набережную дренажом за стенкой, дабы она больше не плакала. КГИОП был в восторге, надеясь что хоть этот небольшой участок набережной будет без унылых известковых подтёков.

Дренажный выпуск в стенке набережной
Дренажный выпуск в стенке набережной

Суть работы дренажа заключается в быстрой разгрузке воды через отверстия в гранитной стенке, чтобы предотвратить фильтрацию воды через стыки между блоками. Но эксперту это не понравилось: он узрел в нём нарушение Водного кодекса.

Все увещевания проектировщиков о том, что вытекающая из дренажных отверстий вода та же самая, что и в канале, не помогли. Эксперт стоял насмерть и готовил отрицательное заключение. Пришлось исключать из сметной документации устройство дренажа за стенкой набережной и собственно из проекта тоже.

А исторически набережные всегда включали за стенкой дренажную призму для разгрузки грунтовых вод. Может быть её (призму) включить в предмет охраны?

Фрагмент чертежа М-120095 участка набережной левого берега реки Мойка между Большим и Малым Конюшенными мостами.
Фрагмент чертежа М-120095 участка набережной левого берега реки Мойка между Большим и Малым Конюшенными мостами.

Нужны поправки в Водный кодекс

Грязная вода в канале Грибоедова, примеси нефтепродуктов которой оставляют тёмный след на гранитных блоках и репутации "блюдителей" Водного Кодекса - это очевидность, от которой уже не отмыться. В то же время, когда уровень воды в канале поднимается, он поднимается и за стенкой набережной по физическому закону сообщающихся сосудов. Вода проникает в разуплотнения бутовой кладки и при разгрузке обратно в канал, когда уровень воды снова понизится, вымывает за собой из кладки известковый раствор и соли (примеси гидротехнического бетона, ремонтных и инъекционных смесей), дополняющие вертикальными пятнами нефтяные загрязнения по уровню воды. Красота!

Дренаж за стенкой набережной, изолированный от ливневой канализации, отводил бы воду гораздо быстрее обратно в канал, при этом концентрация примесей солей и известкового раствора была бы значительно меньше. И не нужно бояться, что устройство прямых выпусков повлечет за собой обратное переувлажнение грунта при подъемах воды в канале.

Почему дренаж за стенкой набережной нельзя было подключить к городской канализации

Если рассматривать вопрос о подключении такого дренажа к коммунальным сетям канализации, то по сути это тоже самое, если бы реку направить на очистные сооружения ГУП "Водоканал Санкт-Петербурга". Нешуточное дело и такое же дорогое:

- договор на водоотведение между пользователем объекта СПб ГБУ "Мостотрест" и ГУП "Водоканал Санкт-Петербурга" был бы на миллионы рублей в год;

- потребовалась бы постоянная перекачка воды насосами в коммунальную канализацию, так как лоток трубы в колодцах на набережной находится выше уровня воды в канале и самого дренажа, что привело бы к внушительным затратам на электроэнергию и эксплуатацию насосного оборудования.

Даже если бы у СПб ГБУ "Мостотрест" нашлись бы на это средства, ГУП "Водоканал Санкт-Петербурга" отказал в выдаче условий на подключение - нагрузка на очистные сооружения города возросла бы многократно. Представьте себе, если все набережные города подключили бы к очистным сооружениям!

Проблема локальных очистных сооружений

Казалось бы, проблему водоотведения могут решить очистные сооружения, находящиеся непосредственно на набережной. Для очистки дренажных вод, дабы удовлетворить эколога в экспертизе, достаточно запроектировать фильтры-патроны в смотровые колодцы на набережной.

Однако, тут своя загвоздка:

  1. Конструктивная. Дренажная труба запроектирована чуть выше нормального уровня воды в канале, но при подъёме воды полностью затапливается, что негативно скажется на работе фильтр-патронов, они быстро выйдут из строя и не будут работать.
  2. Эксплуатационная. Нахождение на объекте очистных фильтров-патронов подразумевает проведение регулярного мониторинга с отбором проб из контрольного колодца, находящегося после колодца с очистными и перед водовыпуском в канал. Пользователю потребуются дополнительные средства, чтобы содержать штат лаборатории.
  3. Юридическая. В рамках адресной программы, за счет которой осуществляется финансирование капитального ремонта набережной, устройство очистных сооружений является не целевым использованием бюджетных средств.

Выход есть!

Выход из сложившейся ситуации с набережными один - разрешить устройство дренажа за стенкой набережной на законодательном уровне (п.4 ст.44 ВК РФ). При этом в законодательном акте должно быть ясно прописано, что на дренаж, выполняющий функцию быстрой разгрузки вод за стенкой набережной, требования природоохранного законодательства не распространяются! При этом дренаж за стенкой набережной должен быть надежно изолирован от других водопроводящих сетей.

Но, к сожалению, никто из чиновников не будет брать на себя ответственность подобной инициативы, потому что по этой же причине посовики вынуждены пользоваться нормами строительства 80-х годов, закладывать в проект организации строительства морально устаревшую технику с низкой по сегодняшним меркам производительностью. Но это уже совсем другая история.

До новых встреч на канале Кругозор Проектировщика!