Найти в Дзене
INMYROOM

Как создать нескучный и жизнерадостный интерьер с базовой отделкой

Оглавление

Дизайнеры из Solo Design Studio оформили светлый современный интерьер двушки 54 кв. м, с яркими акцентами и деталями в мебели или аксессуарах для молодой заказчицы. Пространство получилось уютным, практичным, подходящим как для одного человека, так и для пары. Дизайнеры рассказали INMYROOM подробности ремонта.

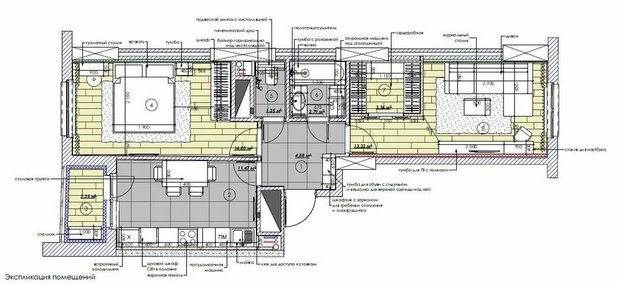
Планировка

Планировка квартиры — традиционная «распашонка». Кухня и одна из комнат выходят на одну сторону, вторая комната — на другую. Окна кухни и одной из комнат выходят во двор, поэтому эта комната была выбрана в качестве спальни, хотя и находится рядом с кухней.

Практически единственное изменение в планировке — добавили гардеробную комнату в гостиной. Выделили для нее часть площади, так как хотелось дополнительного пространства для хранения не только вещей, но и бытовых предметов.

 📷
📷

Кухня

Кухню изготовили на заказ. Высота потолков достаточная, поэтому гарнитур сделали в два уровня шкафов с верхним глубоким рядом до потолка. Бытовую технику — холодильник и духовой шкаф с СВЧ — разместили в колоннах. Кухня линейная, чтобы комфортно разместить все приборы и оставить свободное место для рабочей поверхности и хранения.

Был вопрос с доступом к стоякам водоснабжения, которые находятся в углу кухни. Здесь предусмотрели лючок.

 📷
📷

 📷
📷

На полу в прихожей и кухне использовали керамогранит — наиболее практичное решение.

Основным материалом для отделки стен стала краска нейтрального светло-серого оттенка. За ней легко ухаживать, и в дальнейшем ее можно будет обновить. Также для декорирования стен в кухне использовали декоративную покраску с эффектом шелка. Она не только прекрасно моется и чистится, но и дает интересный эффект игры света и тени — это делает поверхность более выразительной.

 📷
📷

Гостиная

В гостиной и спальне для отделки стен были применены рейки — в гостиной они деревянные, плюс покрашенные в цвет стены, а в спальне — только деревянные.

 📷
📷

 📷
📷

Основную зону хранения организовали в гостиной, выделив место под гардеробную комнату. Так удалось избежать большого количества шкафов в каждой комнате, а также разместить все предметы для уборки и длительного хранения в отдельном помещении, скрытом от глаз.

 📷
📷

 📷
📷

Спальня

В спальне разместили большую двуспальную кровать, макияжный столик с зеркалом и прикроватную тумбу. Цветовая палитра спокойная, в серых тонах. При этом интерьер не выглядит скучно за счет ярких деталей и декора.

Санузел

Санузел раздельный. В ванной комнате, помимо раковины с тумбой и ванны, мы разместили стиральную машину и полотенцесушитель над ней. В санузле над инсталляцией — накопительный водонагреватель.

В качестве отделки для ванной комнаты выбрали керамогранит под мрамор итальянской фабрики Marazzi в сочетании с мелкоформатной плиткой испанской фабрики Equipe с укладкой рисунком «елочка». На полу использовали керамогранит российской фабрики Italon под дерево.

В санузле нет мокрых зон, поэтому сочетали керамогранит и декоративную штукатурку под шелк.

Особенностью стали дверцы для доступа к стоякам. Одним из требований заказчицы был свободный доступ к стоякам канализации и водоснабжения не просто через люк, а именно от верха и до низа. Поэтому мы предложили сделать мебельные дверцы для свободного доступа в любое время.

Прихожая

Системы хранения были предусмотрены по максимуму в каждом помещении. В прихожей, поскольку она небольшая и в нее выходят целых пять дверей, удалось разместить только открытую вешалку, банкетку и небольшой шкаф для хранения. В спальне разместился шкаф для одежды.

Больше фото тут:

Как создать нескучный и жизнерадостный интерьер с базовой отделкой