Найти в Дзене
INMYROOM

Кухня в брежневке: 3 варианта планировки + оформление интерьера

Хотите больше лайфхаков и идей для ремонта? Ставьте лайки и подписывайтесь, чтобы ничего не пропустить! 🙏 ➡️ Мы в телеграм: t.me/inmyroom Готовые идеи планировки и стильного оформления с расстановкой мебели. Основной проблемой при ремонте квартир в брежневке становятся несущие стены, из-за которых расширить кухню невозможно. Но это не помешает сделать пространство максимально функциональным и красивым. Совместно с дизайнерами Леруа Мерлен разработали три готовых варианта планировки кухни, которые помогут решить проблемы небольшого помещения. Вводные данные Типовая двушка в панельном доме площадью 49 кв.м. Компактная кухня – 6,8 кв.м, к которой ведет коридор от прихожей. Вход на кухню перенести нельзя. 1. Угловая кухня
Один из самых распространенных вариантов планировки кухни в брежневке. При таком расположении мебели получается удобный рабочий треугольник и остается достаточно места на столешнице для приготовления пищи. В данном случае зоны размещены нестандартно: мойку расположили н
Оглавление

Хотите больше лайфхаков и идей для ремонта? Ставьте лайки и подписывайтесь, чтобы ничего не пропустить! 🙏

➡️ Мы в телеграм: t.me/inmyroom

Готовые идеи планировки и стильного оформления с расстановкой мебели.

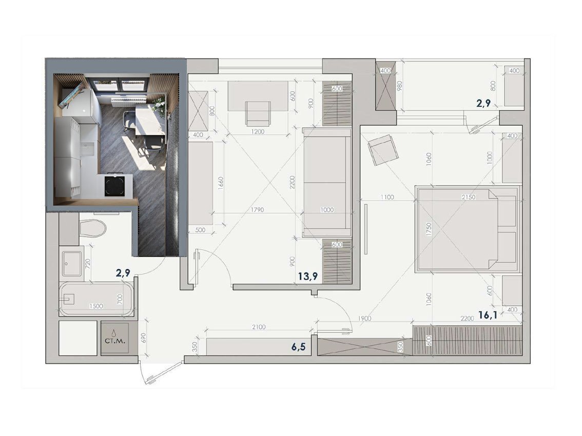
Основной проблемой при ремонте квартир в брежневке становятся несущие стены, из-за которых расширить кухню невозможно. Но это не помешает сделать пространство максимально функциональным и красивым. Совместно с дизайнерами Леруа Мерлен разработали три готовых варианта планировки кухни, которые помогут решить проблемы небольшого помещения.

Вводные данные

Типовая двушка в панельном доме площадью 49 кв.м. Компактная кухня – 6,8 кв.м, к которой ведет коридор от прихожей. Вход на кухню перенести нельзя.

1. Угловая кухня

-2

Один из самых распространенных вариантов планировки кухни в брежневке. При таком расположении мебели получается удобный рабочий треугольник и остается достаточно места на столешнице для приготовления пищи.

В данном случае зоны размещены нестандартно: мойку расположили не в углу, а перенесли в центр столешницы. Варочную панель из 4х конфорок вместе с вытяжкой установили напротив окна. Холодильник поставили у окна, чтобы его было удобно открывать.

Верхние шкафы в сочетании с открытыми полками, повесили только вдоль одной стены.

Обеденную зону организовали в углу у окна. Такое расположение стола оставляет больше свободного пространства в центре кухни и не загромождает проход.

Плюсы планировки: мойка с комфортным доступом, удобный рабочий треугольник, достаточно места для хранения.

Минусы планировки: небольшая обеденная зона, угловой шкаф, для которого понадобится специальная выкатная система.

Кому подойдет: одному или паре жильцов, которые любят готовить, но редко приглашают гостей на ужин.

Как может выглядеть интерьер

-3

Хорошим вариантом для данной планировки может стать трендовый стиль – джапанди. Он предполагает удобство, разумный минимализм и использование натуральных природных материалов.

-4

Единство пространства создают лаконичные кухонные фасады с деревянной текстурой и панели под дерево, которые заменяют фартук и доходят до потолка.

Стену, смежную с коридором, оформили имитацией натурального камня, а в обеденной зоне сделали рейки. Эта комбинация создает антивандальное покрытие, которое поможет надолго сохранить ремонт.

-5
-6

В стиле джапанди не используется много цветов и фактур. В этом интерьере основой сделали – деревянную фактуру. И дополнили ее серым и белым цветом.

2. Кухня с барной стойкой

-7

Основа этой планировки: линейный гарнитур и барная стойка у окна вместо подоконника. Основная часть кухни спроектирована симметрично: варочная панель и духовой шкаф в центре, а по бокам остальные шкафы. Рядом с вытяжкой повесили шкафы с открытыми полками.

Столешница гарнитура переходит в барную стойку. Ее можно использовать не только для приёма пищи – это полноценная рабочая зона.

Интересное решение – встроить мини-холодильник в шкаф под барной зоной.

Плюсы планировки: большая рабочая зона, функциональное пространство, много места для хранения.

Минусы планировки: сложный доступ к шкафу под столешницей, маленький холодильник, неудобно доставать посуду с верхних полок.

Кому подойдет: одному человеку или паре, которые мало готовят и не собирают гостей на кухне.

Как может выглядеть интерьер

-8

Для этого варианта выбрали кантри стиль. Он подходит не только для загородных домов, а вполне адаптируется под интерьер квартиры.

-9

Нежно-голубые фасады гармонично сочетаются с фартуком “пэчворк”, а черные детали придают интерьеру графичности.

Отличным решением для кантри стиля будет отделка окна под дерево.

-10

Совет INMYROOM: Создать дизайн-проект кухни, смету и совершить покупки для ремонта теперь можно в одном месте - строительном гипермаркете Леруа Мерлен. Запишитесь на бесплатную консультацию к специалистам магазина, которые помогут спроектировать кухню с учетом ваших пожеланий и возможностей бюджета. Вам также предоставят список товаров, которые понадобятся для ремонта. Их можно найти в оффлайн-магазине или в интернете с доставкой на дом. Также вы можете воспользоваться услугами сборки и установки кухонного гарнитура и бытовой техники.

3. Компактная линейная кухня

-11

Этот вариант планировки позволяет оставить достаточно свободного места в помещении, так как все шкафы и техника располагаются только вдоль одной стены. Гарнитур спроектирован симметрично: по краям высокие шкафы со встроенной техникой, а посередине – столешница с мойкой и варочной панелью на две конфорки.

Чтобы визуально разгрузить зону кухни, верхние шкафы с зеркальными фасадами, расположили по центру.

Плюсы планировки: довольно большая зона хранения, удобное расположение духового шкафа, можно при необходимости поставить раскладной стол.

Минусы планировки: маленькая рабочая зона, нет места для отдельно стоящей бытовой техники.

Кому подойдет: семейной паре, которая мало готовит, но любит принимать гостей.

Как может выглядеть интерьер

-12
-13

Данному виду планировки подойдет неоклассика. Этот стиль гармонично смотрится даже в небольших помещениях. Фасады глубокого синего цвета с фрезеровкой хорошо сочетаются со столешницей и фартуком под мрамор, а серебристая фурнитура придает интерьеру лоска.

В отделке можно скомбинировать несколько видов обоев и молдинги.

-14
-15

leroymerlin.ru. Реклама. ООО Леруа Мерлен Восток. ИНН 5029069967

Понравилась статья? Ставьте лайк и подписывайтесь на канал INMYROOM.RU, чтобы видеть наши публикации в своей ленте!