Добавить в корзинуПозвонить
Найти в Дзене
ДЕНЕЖНЫЙ МЕШОК

Банную печь на дровах, для быстрого нагрева парилки, придумал и запатентовал россиянин

Оглавление
Фото: pixabay.com
Фото: pixabay.com
Недавно ездил в гости к знакомым, которые живут в частном доме, и меня пригласили попариться в небольшой домашней баньке.
Однако, оказалось, что банька их хоть и хороша по всему, а прогревается очень долго. Ждать прогрева бани порядка двух-трех часов - увы! - оказалось довольно утомительно.

Вот и попросили они меня посмотреть в патентной базе - какие есть современные технические решения, позволяющие ускорить время прогрева банного помещения за счет конструктивных особенностей печи.

В это связи, мое внимание привлекла разработка нашего соотечественника, Билалова Рафиса Канафейевича, уже запатентованная в качестве полезной модели.

Полезная модель так и называется "ПЕЧЬ БАННАЯ" (патент № 201371).

Автор полезной модели и правообладатель по патенту - Билалов Рафис Канафейевич.

Вот как, согласно патентной документации, выглядит схематически запатентованная печь (общий вид):

© Билалов Рафис Канафейевич, ПМ - 201371.
© Билалов Рафис Канафейевич, ПМ - 201371.

А так выглядит покомпонентное изображение печи:

© Билалов Рафис Канафейевич, ПМ - 201371.
© Билалов Рафис Канафейевич, ПМ - 201371.
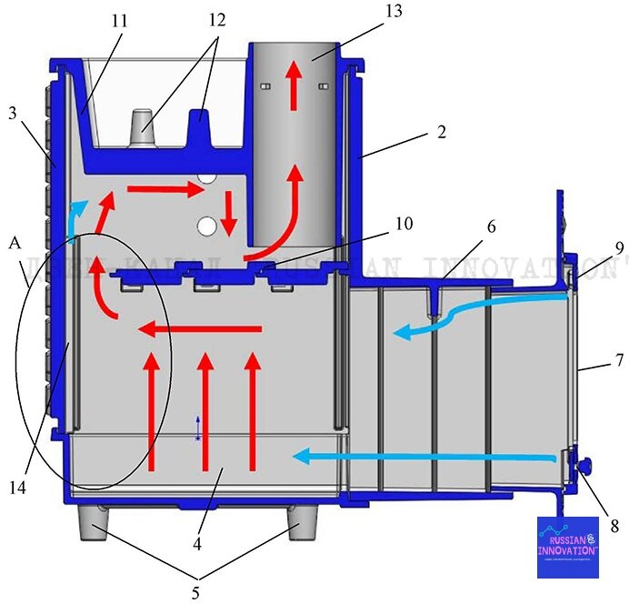
Характерная особенность печи заключается в наличии колпака, который расположен между топкой и каменкой (см. поз. 11 на схеме) и оборудован воздуховодом (см. поз. 14 на схеме), который обеспечивает подачу вторичного воздуха.
При этом, топка и колпак разделены пламегасителем (см. поз. 10 на схеме), а непосредственно внутри колпака расположен теплообменник.

По утверждению автора полезной модели, предложенное конструктивное исполнение печи позволит добиться существенного повышения температуры нагрева печи, а, следовательно, повысит КПД печи и сократит время нагрева парилки.

По-моему, довольно интересное решение.

А как на ваш взгляд?

Ознакомиться подробнее с техническими характеристиками данной полезной модели вы можете здесь.

Спасибо за лайк и подписку на канал!

#печи #отопление #полезные модели #дрова #бани

Печи
176,1 тыс интересуются