Добавить в корзинуПозвонить
Найти в Дзене

Легко ли продать квартиру с дорогим дизайнерским ремонтом. Часть 1

Приведу пример двух квартир разной площади, продающихся в настоящее время в Перми. Объединяет их то, что обе квартиры предназначены для семьи с детьми и в обеих сделан дорогой дизайнерский ремонт.
Тем не менее, сегодня эти две гордости своих хозяев выставлены на продажу.

Приведу пример двух квартир разной площади, продающихся в настоящее время в Перми. Объединяет их то, что обе квартиры предназначены для семьи с детьми и в обеих сделан дорогой дизайнерский ремонт.

Тем не менее, сегодня эти две гордости своих хозяев выставлены на продажу.

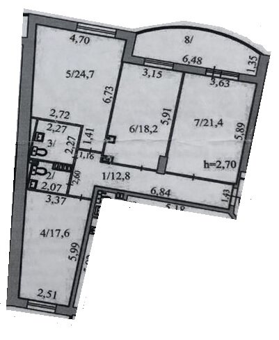
Первая квартира 103 кв. м., 11 млн. руб.

Комнаты: Кухня-гостиная, спальня, детская, санузел, ванная, гардеробная.

Стоит отметить, что данная квартира изначально была просто трехкомнатной. На этапе котлована цена на такие квартиры продавались застройщиком примерно за 5 млн.

Планировка от застройщика
Планировка от застройщика

Собственники объединили кухню с гостиной, произвели демонтаж и монтаж перегородок в комнатах, сместили некоторые дверные проемы.

Из объявления
Из объявления

В квартире был выполнен дизайнерский ремонт в классическом стиле.

Новую планировку хозяева почему-то не согласовали...

А привлечь ипотечные средства в случае, если перепланировка не согласована, покупателю такой квартиры не получится.

Продавцу остается только ждать покупателя с наличными, который влюбится в данную квартиру. Вот только сделок без привлечения заемных средств в последнее время все меньше. В среднем по стране за наличные приобретается не более 20% квартир.

Наверняка это один из факторов, почему эта квартира продается уже более года.

Помимо неузаконенной перепланировки, другим критичным фактором, отдаляющим продажу квартиры при ее высокой стоимости является тот факт, что собственники своей перепланировкой сократили количество комнат - то есть уменьшили функционал квартиры, а для многих покупателей - снизили ее ценность.

Квартира лишилась дополнительной комнаты-спальни, в которой мог бы разместиться еще один член семьи. И если формат евротрёшки вполне подходит для семьи с одним ребенком, то в случае если детей в семье больше, от него придется отказаться. Да и семья с одним ребенком может в итоге найти евротрёшку меньшей площади с аналогичным функционалом комнат, и не переплачивать за лишние квадратные метры.

Для продажи собственники привлекают уже третье агентство недвижимости, но результата пока нет. Цена в объявлении тоже не снизилась. Аналогичные квартиры, но полноценные трешки и с ремонтом попроще можно купить на 2 млн. руб. дешевле.

Как вы считаете, каковы перспективы продажи такой квартиры? И стоит ли кухня в 1 млн. руб. потраченных на нее денег?

Про вторую квартиру с дизайнерским ремонтом читайте в следующей статье.